Predaj domu 7+kk • 150 m² bez realitkyWaldblickstr. 30, , Bavorsko
Waldblickstr. 30, , BavorskoMHD 5minút pešo • Parkovanie • GarážNovostavba v modernej výstavbe. Energeticky úsporné tepelné čerpadlo s podlahovým kúrením na všetkých poschodiach. Plne zariadený suterén s vlastným vchodom a dvojgaráž vrátane veľkej záhrady s terasou. Perfektné spojenie s diaľnicou A94 do Mníchova – cca 60 minút jazdy
Dom disponuje približne 150 m² obytnou plochou, navyše cca 70 m² upraveného suterénu s vlastným vchodom (využiteľné ako samostatný byt) a dvojgaráž.
Pôdorys a rozloženie miestností
Prízemie (EG):
– Otvorený obývací a jedálenský priestor s prístupom na terasu a do záhrady
– Kancelária/Home office
– Spižíreň
– Sprchová kúpeľňa
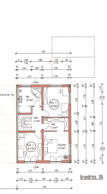
I. poschodie (OG):
– 3 spálne
– Veľká kúpeľňa s vaňou
– Svetlý chodba
Suterén (KG):
– Upravený ako samostatný byt s vlastným vchodom
– Veľký obývací a jedálenský priestor
– 2 ďalšie izby
– Sprchová kúpeľňa
Simbach am Inn sa nachádza idylicko pri hranici s Rakúskom a zároveň ponúka výborné dopravné spojenie. Diaľnica A94 umožňuje rýchle prepojenie do Mníchova za cca 1 hodinu. Obchody, školy, materské školy a zdravotná starostlivosť sú v okolí. Okolitá príroda ponúka množstvo rekreačných možností – od cyklotrás pozdĺž Innu až po výlety do blízkeho Rakúska.
– Podlahové kúrenie na všetkých 3 poschodiach
– Trojsklo
– Vysokokvalitné dlaždice a podlahové krytiny
– Moderné kúpeľne so vstavanými sprchami bez prahu
– Terasa so záhradnou časťou
– Dvojgaráž + parkovacie miesta
– Tepelné čerpadlo (nízke prevádzkové náklady)
– Optické pripojenie (Glasfaser)
– Pozemok s dlhodobým prenájmom (zostávajúca doba: 95 rokov)
– Ročný poplatok za dlhodobý prenájom: 736 €
– Ihneď k nastěhovaniu
Parametre nehnuteľnosti
| Vek | Nad 50 rokov |
|---|---|
| Stav | Novostavba |
| Číslo inzerátu | 975855 |
| Úžitková plocha | 150 m² |
| Celkové poschodia | 2 |
| Dostupné od | 12. 1. 2026 |
|---|---|
| Dispozícia | 7+kk |
| PENB | A - Mimoriadne úsporné |
| Plocha pozemku | 368 m² |
| Cena za jednotku | 3 833 € / m2 |
Čo táto nehnuteľnosť ponúka?
| Pivnica | |
| Parkovanie | |
| Terasa |
| Garáž | |
| MHD 5 minút pešo |
V okolí nehnuteľnosti nájdete
Stále hľadáte to pravé?
Nastavte si strážneho psa. Ponuky vybrané na mieru dostanete súhrnne 1× denne e-mailom. S Premium profilom máte po ruke rovno 5 strážcov a keď sa niečo objaví, informujú vás obratom.











