
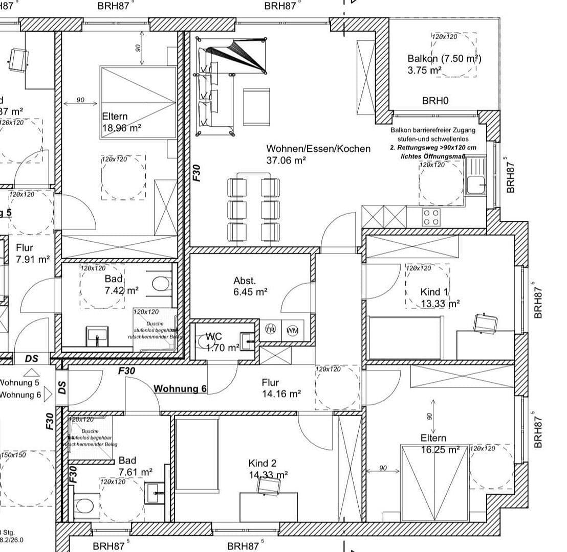
Prenájom bytu 4+1 • 109 m² bez realitkyWissinger Mark 21, , Dolné Sasko
Wissinger Mark 21, , Dolné SaskoMHD 6minút pešo • ParkovanieVitajte vo vašom novom domove! Tento kvalitný 4-izbový novostavba byt v 1. nadzemnom podlaží vás oslní premysleným dispozíciou, svetlými priestormi a moderným, energeticky úsporným vybavením. S obytnou plochou približne 108,72 m² ponúka byt dostatok miesta pre rodiny, páry s väčšími priestorovými požiadavkami alebo náročných profesionálov. Vďaka štandardu KfW-40-QNG, tepelnej čerpadlo a fotovoltaickej elektrárni profitujete z veľmi nízkych prevádzkových nákladov – udržateľne a pripravené na budúcnosť.
Kľúčové údaje na prvý pohľad:
• Obytná plocha: cca 108,72 m²
• Izby: 4
• Podlažie: 1. nadzemné podlažie
• Nájomné (bez zahrnutých poplatkov): 1.400 €
• Prevádzkové náklady: 150 €
• Parkovacie miesto: 50 €
• Celkové nájomné: 1.600 €
Byt sa nachádza v pokojnej lokalite vo Wissinger Mark s dobrou dostupnosťou do Osnabrücku. Obchody, školy, materské školy aj zdravotná starostlivosť sú dostupné v krátkej vzdialenosti. Verejná doprava je dostupná pešo.
• Energeticky efektívne podľa štandardu KfW-40 QNG
• Fotovoltaická elektráreň a tepelné čerpadlo – nízke prevádzkové náklady, udržateľná energia
• Schüco okná, trojsklo, vonkajšia časť čierna / vnútorná biela
• Elektrické rolety vo všetkých miestnostiach
• Podlahové kúrenie pre príjemnú atmosféru bývania
• Moderné, štýlové kúpeľne
• Kvalitné podlahové krytiny
• Balkon alebo terasa pri každom byte
• Parkovacie miesto (50 €/mesiac, vrátane 1 bicyklového stojana)
• Bicyklové stojany pre všetkých obyvateľov
• Novostavba – pripravené na nastahovanie od 01.02.2026
Požiadavky pre nájomcov:
Pre prenájom bytu sú potrebné nasledujúce dokumenty:
• 3 aktuálne mzdové potvrdenia
• Aktuálny výpis zo SCHUFA
Parametre nehnuteľnosti
| Vek | Nad 50 rokov |
|---|---|
| Stav | Novostavba |
| Poschodie | 1. poschodie |
| PENB | A - Mimoriadne úsporné |
| Cena za jednotku | 13 € / m2 |
| Dostupné od | 1. 2. 2026 |
|---|---|
| Dispozícia | 4+1 |
| Číslo inzerátu | 975634 |
| Úžitková plocha | 109 m² |
Čo táto nehnuteľnosť ponúka?
| Balkón | |
| Parkovanie | |
| Terasa |
| Bezbariérový prístup | |
| MHD 6 minút pešo |
V okolí nehnuteľnosti nájdete
Stále hľadáte to pravé?
Nastavte si strážneho psa. Ponuky vybrané na mieru dostanete súhrnne 1× denne e-mailom. S Premium profilom máte po ruke rovno 5 strážcov a keď sa niečo objaví, informujú vás obratom.



