Predaj bytu 3+1 • 89 m² bez realitkyFriedrich-Pieper-Str. 6, , Severné Porýnie - Westfálsko
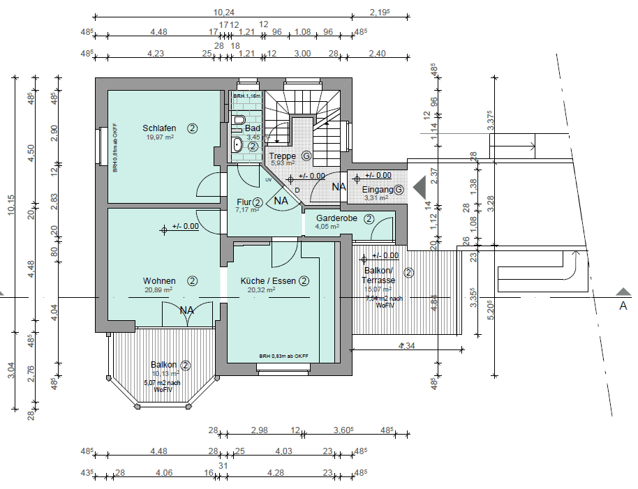
An ponuke je približne 88,5 m² veľký, bezbariérový 3-izbový byt s veľkým krytým balkónom (10 m²) a dodatočnou terasou o rozlohe 15 m² v exkluzívnej vilovej štvrti Friedrichshöhe/Am Königsberg v Detmold-Heiligenkirchen.
Stav budovy zodpovedá novostavbe, pretože všetky inštalácie, podlahy, steny, stropy, kúpeľne, dvere, kúrenie aj strecha boli zrekonštruované.
Ďalšie informácie o ďalších vlastníckych bytoch vo Vile nájdete na www.villa-sonnenblick.com.
V rámci komplexnej rekonštrukcie Vily "Sonnenblick" dosiahla budova energetickú triedu B. Inštalované je vzduchové/tepelné čerpadlo, ktoré zásobuje podlahové kúrenie aj teplú vodu. Vila, postavená v roku 1905, očarí prvkami z pôvodnej doby výstavby v spojení s najmodernejšou technológiou.
Spoločný pozemok má rozlohu 802 m².
Byt sa vyznačuje prírodným, tichým prostredím medzi exkluzívnymi vilami a ponúka výhľad na Hermannsdenkmal. Aj LWL skanzen je vzdialený len niekoľko minút.
Obzvlášť je potrebné spomenúť rodinne priateľské bývanie a veľmi dobrú infraštruktúru. Autobusová linka 701 je vzdialená približne 200 m a krásne centrum Detmoldu sa dá bicyklom dosiahnuť za 10 minút.
V Heiligenkirchen nájdete všetky obchody a zariadenia pre každodenné potreby (Rewe, lekáreň, lekári, pošta, čerpacia stanica, materská škola, školy a pod.).
Byt je vybavený podlahovým kúrením a multimediálnymi pripojeniami vo všetkých miestnostiach. Budova disponuje vysoko moderným vzduchovým tepelne čerpadlom so centrálnym zásobovaním teplou vodou.
K bytu patrí okrem krytého balkóna aj veľká terasa o rozlohe 15 m², určená na exkluzívne využitie.
Súkromný predaj – bez maklérov!
Parametre nehnuteľnosti
| Vek | Nad 50 rokov |
|---|---|
| Dispozícia | 3+1 |
| PENB | B - Veľmi úsporné |
| Cena za jednotku | 4 045 € / m2 |
| Stav | Po rekonštrukcii |
|---|---|
| Číslo inzerátu | 975609 |
| Úžitková plocha | 89 m² |
Čo táto nehnuteľnosť ponúka?
| Balkón | |
| Pivnica | |
| MHD 2 minúty pešo |
| Bezbariérový prístup | |
| Parkovanie |
V okolí nehnuteľnosti nájdete
Stále hľadáte to pravé?
Nastavte si strážneho psa. Ponuky vybrané na mieru dostanete súhrnne 1× denne e-mailom. S Premium profilom máte po ruke rovno 5 strážcov a keď sa niečo objaví, informujú vás obratom.














