
Prenájom bytu 2+1 • 82 m² bez realitkyHauptstraße 2, , Severné Porýnie - Westfálsko
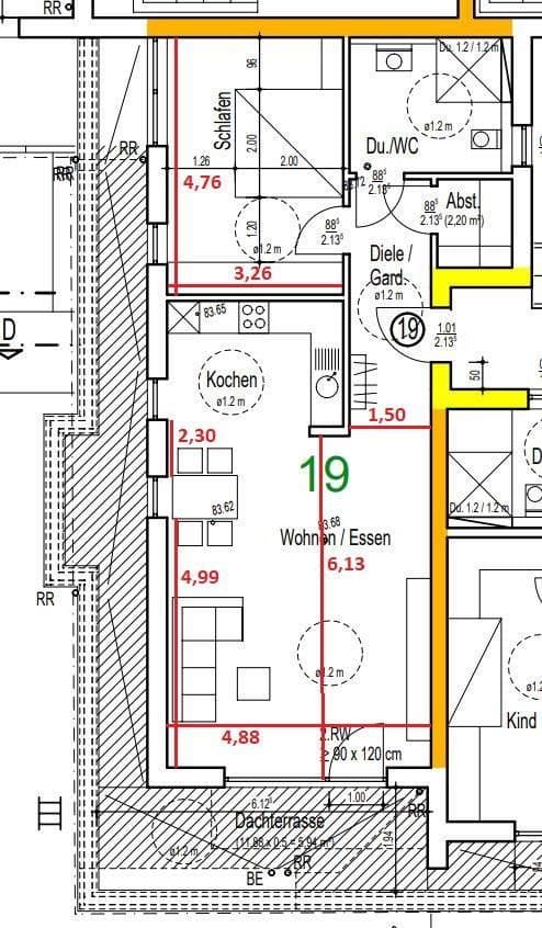
Hauptstraße 2, , Severné Porýnie - WestfálskoMHD 3 minúty pešo • Výťah • ParkovanieTáto exkluzívna 2-izbová bytosť s približne 76 m² obytného priestoru sa nachádza v 2. poschodí moderného domu viacerých bytov postaveného podľa normy KfW 55 v Siegburg-Kaldauen. Byt disponuje balkónom o rozlohe približne 12 m² s výhľadom na Siebengebirge a les.
Medzi luxusné vybavenie patrí parkety v obývacej izbe a spálni, ako aj veľké dlaždice v ostatných miestnostiach.
Všetky miestnosti sú vybavené podlahovým kúrením.
Sprchová kúpeľňa je na rovine s podlahou, má okno a kúrenie s držiakom na uteráky.
Parkovacie miesto je z bytu viditeľné.
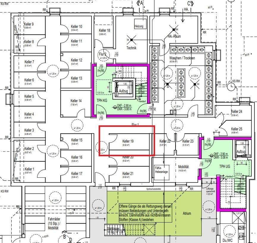
Výťah uľahčuje prístup k bytu, ktorý je navyše bezbariérový. K dispozícii je vysoko kvalitná vstavaná kuchyňa so spotrebičmi značky Bosch a kúrenie prebieha cez centrálnu kúrenie, ktorej náklady sú zahrnuté v prevádzkových nákladoch. Vlastná pivnica o rozlohe 6,5 m² poskytuje ďalší úložný priestor.
Byt je k dispozícii od 1.1.2026. Domáce zvieratá nie sú povolené.
Siegburg-Kaldauen, nachádzajúci sa v srdci okresu Rhein-Sieg, ponúka výbornú infraštruktúru. Množstvo obchodov, lekárov a reštaurácií je dosiahnuteľných pešo. Spojenie s verejnou dopravou je vynikajúce, s rýchlymi spojeniami do Kolína nad Rýnom a Bonnu. V blízkosti sa nachádzajú zelené plochy a možnosti na rekreáciu.
Byt je veľmi kvalitne vybavený. Okrem výťahu a vysoko kvalitných podláh je kúpeľňa zariadená aj nábytkom. Je vybavená zrkadlom, dolným skrinkom a kúrením s držiakom na uteráky.
Parametre nehnuteľnosti
| Vek | Nad 50 rokov |
|---|---|
| Stav | Novostavba |
| Poschodie | 2. poschodie |
| Úžitková plocha | 82 m² |
| Dostupné od | 1. 1. 2026 |
|---|---|
| Dispozícia | 2+1 |
| Číslo inzerátu | 975420 |
| Cena za jednotku | 16 € / m2 |
Čo táto nehnuteľnosť ponúka?
| Balkón | |
| Pivnica | |
| Parkovanie |
| Bezbariérový prístup | |
| Výťah | |
| MHD 3 minúty pešo |
V okolí nehnuteľnosti nájdete
Stále hľadáte to pravé?
Nastavte si strážneho psa. Ponuky vybrané na mieru dostanete súhrnne 1× denne e-mailom. S Premium profilom máte po ruke rovno 5 strážcov a keď sa niečo objaví, informujú vás obratom.






























