Predaj domu 4+1 • 104 m² bez realitkyGriegweg 23a Geretsried Geretsried Bayern 82538
Griegweg 23a Geretsried Geretsried Bayern 82538MHD 3 minúty pešo • Parkovanie • GarážZa predaj je ponúkaná čiastočne zrekonštruovaná dvojdomovka z roku 1970 na pozemku o veľkosti 397 m².
Obytná plocha je približne 104 m² a rozdeľuje sa na prízemie a poschodie. Navyše ponúka podkrovie ďalší priestor na dokončenie. V suteréne sa nachádza zrekonštruovaná, vykurovaná izba pre voľnočasové aktivity.
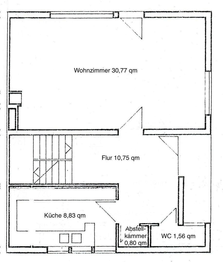
V prízemí sa nachádza obývacia izba s parketou z dubových lamiel, kuchyňa, samostatné WC a skladovacia komora. Z obývacej časti je priamy prístup do záhrady. Dom disponuje dvoma záhradami: predzáhradou a väčšou záhradou v zadnej časti s približne 16 m² terasou – ideálna na oddych alebo rodinné aktivity.
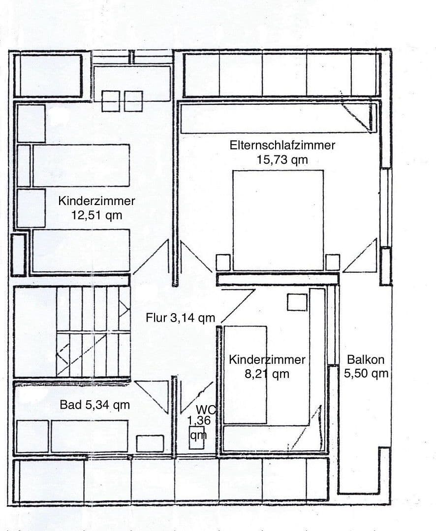
Na poschodí sa nachádza spálňa, dve detské izby, kúpeľňa s vaňou a samostatné WC a prístup na balkón. Podlahy vo všetkých izbách na tejto úrovni boli v roku 2018 vymenené za vinylové.
Podkrovie momentálne zahŕňa veľkú miestnosť s oknom, avšak je zatiaľ nevykurované a ponúka rôzne možnosti dokončenia.
V suteréne sa okrem kotolne, práčovne a skladovacích priestorov nachádza zrekonštruovaná, vykurovaná izba pre voľnočasové aktivity s vinylovou podlahou a oknom (svetelný otvor), ktorá je v súčasnosti využívaná ako izba pre mládež.
K domu patrí garáž a ešte dve dodatočné parkovacie miesta priamo pred ňou. Garáž je potrebná na rekonštrukciu, pričom kupná cena pre ňu je 10 000 €.
Nehnuteľnosť je v súčasnosti ešte obývaná výrobky, ktorá sa chce zmenšiť a plánuje v blízkej dobe vystahovanie po predaji.
Údaje o plochách:
Obytná plocha je približne 104 m² a zahŕňa aj čiastočne (25 %) započítanú terasu a balkón.
Okrem toho sú k dispozícii približne 49 m² užitkovej plochy v suteréne a približne 35 m² užitkovej plochy v nevykurovanom podkroví.
V spálňach, detských izbách aj v kúpeľni sa čiastočne nachádzajú šikmé stropy (stenné skosy).
Všetky údaje o rozlohe sú založené na vlastnom výpočte a poskytované bez záruky.
Nehnuteľnosť sa nachádza v pokojnej obytné oblasti v ustálenom sídelnom území, tzv. Musikerviertel v Geretsried, ktoré je známe svojou rodinne prívetivou atmosférou.
Základná škola, stredná škola, materské školy, supermarket, lekáreň, reštaurácie, kostol a autobusová zastávka sú všetky v pešej vzdialenosti.
Poloha je ideálna pre rodiny s deťmi, ktoré ocenia pokojné prostredie s dobrou infraštruktúrou.
- Väčšina okien bola približne v roku 2014 rekonštruovaná (trojsklo)
- Vonkajšie parapety z granitu
- Elektrické žalúzie v obývacej izbe
- Vinylová podlaha na poschodí (2018)
- Vstavaná kuchyňa (približne 2010)
- Vykurovaná izba pre voľnočasové aktivity v suteréne s oknom (svetelný otvor)
- Podkrovie s možnosťou dokončenia (momentálne nevykurované)
- Terasa a niekoľko záhradných priestorov
Parametre nehnuteľnosti
| Vek | Nad 50 rokov |
|---|---|
| Dispozícia | 4+1 |
| PENB | G - Mimoriadne nehospodárne |
| Plocha pozemku | 397 m² |
| Cena za jednotku | 7 202 € / m2 |
| Stav | Pred rekonštrukciou |
|---|---|
| Číslo inzerátu | 975413 |
| Úžitková plocha | 104 m² |
| Celkové poschodia | 4 |
Čo táto nehnuteľnosť ponúka?
| Balkón | |
| Garáž | |
| MHD 3 minúty pešo |
| Pivnica | |
| Parkovanie | |
| Terasa |
V okolí nehnuteľnosti nájdete
Stále hľadáte to pravé?
Nastavte si strážneho psa. Ponuky vybrané na mieru dostanete súhrnne 1× denne e-mailom. S Premium profilom máte po ruke rovno 5 strážcov a keď sa niečo objaví, informujú vás obratom.













