
Predaj bytu 3+1 • 79 m² bez realitkyHengtestr. 38, , Severné Porýnie - Westfálsko
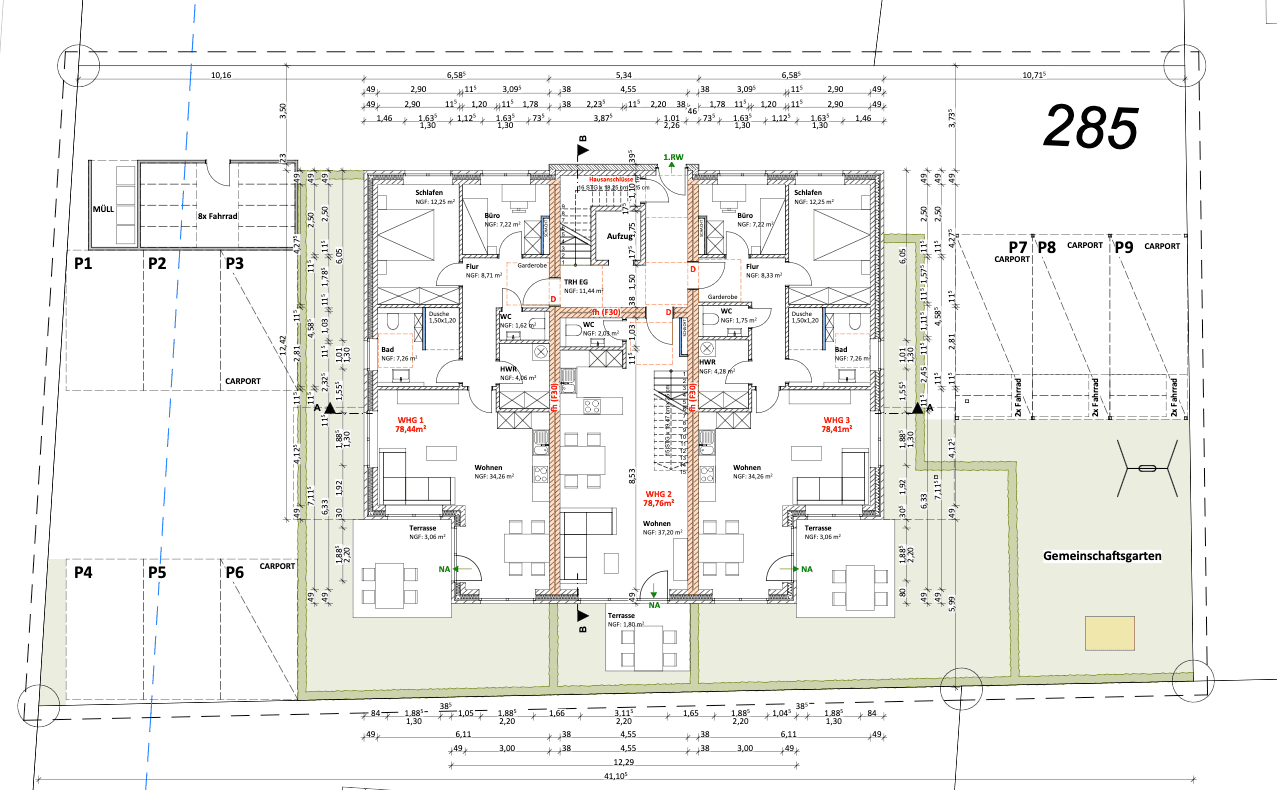
Na adrese Hengtestr. 38 v Coesfelde realizuje spoločnosť HESKAMP + EFFING GmbH moderný viacrodinný dom so šiestimi vysoko kvalitnými bytmi na vlastníctvo. Projekt zaujme premyslenou architektúrou, efektívnymi dispozíciami a pokojnou polohou – ideálnou nielen pre vlastníkov, ale aj pre investorov. Tri byty majú súkromné záhradné podiely, vrátane dvojpodlažného bytu (byt č. 2) s približne 78,67 m² a terasou so záhradou. K dispozícii bude od začiatku roku 2027.
Bytový dom sa nachádza na pokojnej bočnej ulici v Coesfelde – centrálne, no zároveň príjemne odľahle. Supermarkety, lekári, lekárne, kaviarne a autobusové spoje sú dostupné pešo; centrum mesta je len približne 750 metrov vzdialené.
Všetky jednotky sú dôsledne navrhnuté pre komfortné, bezbariérové bývanie: výťah, prístup bez prahov a sprchy na úrovni podlahy zabezpečujú vysokú kvalitu bývania v každom veku. Budova vzniká ako energeticky efektívny novostav podľa aktuálneho štandardu GEG. Parkovacie miesta sú priamo pri dome – každý parkovací priestor je za príplatok 10 000 € (carports nie sú zahrnuté). Exkluzívnejšie podlahové krytiny budú možné za prirážku, podrobný stavebný popis bude neskôr k dispozícii.
Nákup je vhodný ako pre vlastné bývanie, tak aj ako investícia; kombinácia modernej výbavy, udržateľnej výstavby a solídnych dispozícií ponúka dobré predpoklady pre dlhodobo stabilný prenájom. Sú k dispozícii možnosti podpory KfW a možnosť zvýšených odpisov. Predaj prebieha bez sprostredkovateľa, bez provízie.
Parametre nehnuteľnosti
| Vek | Nad 50 rokov |
|---|---|
| Stav | Novostavba |
| Číslo inzerátu | 975388 |
| Cena za jednotku | 5 051 € / m2 |
| Dostupné od | 1. 4. 2027 |
|---|---|
| Dispozícia | 3+1 |
| Úžitková plocha | 79 m² |
Čo táto nehnuteľnosť ponúka?
| Výťah | |
| MHD 4 minúty pešo |
| Parkovanie | |
| Terasa |
V okolí nehnuteľnosti nájdete
Stále hľadáte to pravé?
Nastavte si strážneho psa. Ponuky vybrané na mieru dostanete súhrnne 1× denne e-mailom. S Premium profilom máte po ruke rovno 5 strážcov a keď sa niečo objaví, informujú vás obratom.




