Predaj domu • 554 m² bez realitky, Bavorsko
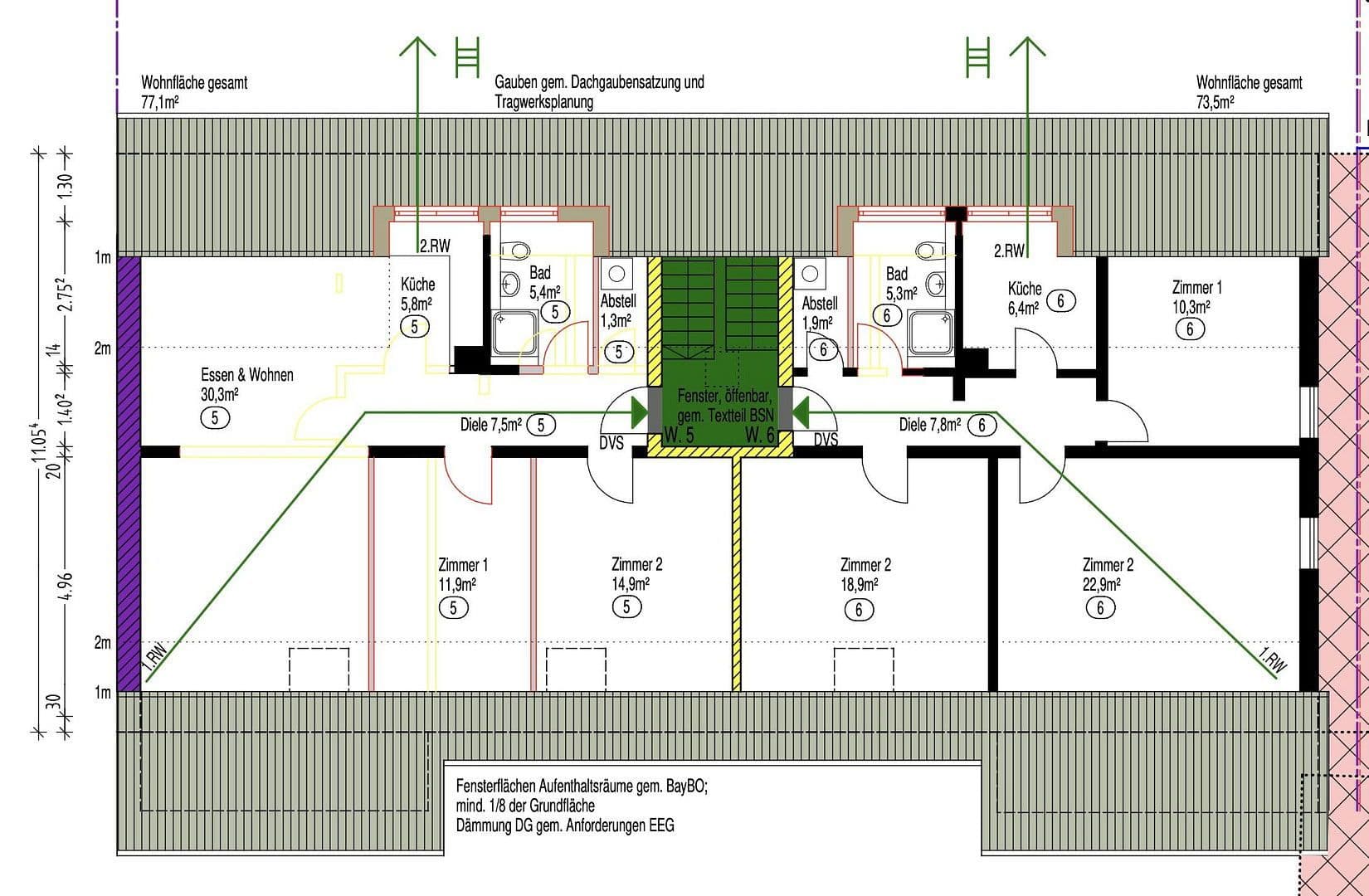
Pri tejto nehnuteľnosti ide o viacfamilový dom so štyrmi resp. šiestimi obytnými jednotkami s celkovou obytnou plochou približne 554 m². Potenciál spočíva v zateplení podkrovia (čiastočne už zatepleného, vrátane elektroinštalácie, teplej vody, izolácie) na 2 byty. Budova bola postavená v roku 1960 a nachádza sa na pozemku s rozlohou cca 821 m². Presný výmer sa ešte uskutoční.
Dom disponuje pivnicou, prízemím, poschodím a podkroviem. Byty sú prístupné prostredníctvom centrálneho schodiska. Vybavenie zodpovedá solídnemu štandardu. Pre tento dom je potrebná vlastná montáž vykurovacieho systému, doposiaľ bola zásoba tepla zabezpečovaná cez susednú budovu.
Nehnuteľnosť sa nachádza na južnom okraji mesta Herzogenaurach – pokojne a zároveň v srdci diania. Obchody, školy, materské školy a zastávky verejnej dopravy sú pohodlne dosiahnuteľné pešo. O pár minút sa dostanete aj do centra mesta so svojimi obchodmi, reštauráciami a kaviarňami.
Herzogenaurach je známy nielen svojím pôvabným historickým centrom, ale aj ako lokalita významných spoločností, ako sú Adidas, Puma a skupina Schaeffler. Mesto tak ponúka ideálnu kombináciu vysokej kvality života a ekonomickej sily. Vďaka blízkosti diaľnice A3 sú rýchlo dostupné mestá Erlangen a Norimberg, čo umožňuje optimálne prepojenie pracovného, voľnočasového a bytového života.
Lokalita tak spája všetko, čo charakterizuje moderné bývanie: pokoj v každodennom živote, krátke vzdialenosti k všetkým dôležitým zariadeniam a vynikajúce spojenie s regiónom.
Väčšina bytov je ideálna pre páry alebo rodiny! Do budúcnosti je tiež možná využiteľnosť menších jednotiek cez špeciálne prenajímatelské modely, napríklad prenájom pre expatov. Najväčšími priamymi zamestnávateľmi sú Schäffler, Puma, Adidas, Siemens, Areva, FAU (Friedrich-Alexander-Universität).
- Pivničný priestor
- Nie je chránená ako samostatná pamiatka/ v rámci ochrannej zóny celku
- Dostatočný počet parkovacích miest a garáží
- Elektroinštalácia bola u všetkých jednotiek už modernizovaná
- Balkónová inštalácia/ terasy a priestranné záhradné plochy – do budúcnosti priraditeľné
- Možnosť rozšírenia podkrovných priestorov o ďalšie 2 byty
Údaje podľa § 5 TMG
G & T Immobilien GmbH
Konatelia: Sebastian Gleißner a Maximilian Troll
Kolbstr. 10,
90513 Zirndorf
Okresný súd: Amtsgericht Fürth
Obchodný register: HRB 14758
Kontakty
Telefón: +49 151 20105030
E-mail: verwaltung@smg-holding.de
Parametre nehnuteľnosti
| Vek | Nad 50 rokov |
|---|---|
| PENB | F - veľmi nehospodárne |
| Plocha pozemku | 821 m² |
| Cena za jednotku | 2 130 € / m2 |
| Číslo inzerátu | 974829 |
|---|---|
| Úžitková plocha | 554 m² |
| Celkové poschodia | 3 |
Čo táto nehnuteľnosť ponúka?
| Balkón | |
| Parkovanie | |
| Terasa |
| Pivnica | |
| MHD 1 minúta pešo |
V okolí nehnuteľnosti nájdete
Stále hľadáte to pravé?
Nastavte si strážneho psa. Ponuky vybrané na mieru dostanete súhrnne 1× denne e-mailom. S Premium profilom máte po ruke rovno 5 strážcov a keď sa niečo objaví, informujú vás obratom.


















