Predaj bytu 3+1 • 115 m² bez realitkyHalle Giebichenstein Sachsen-Anhalt 06114
Obe remisové domy sa nachádzajú centrálne vo dvore. Boli postavené medzi rokmi 2023 a 2025 priplatením existujúcich remis a ponúkajú moderný dizajn, kvalitné materiály a energeticky účinné vybavenie s tepelným čerpadlom a tepelnou izoláciou vo fasádnej klinkerovej optike (energetický certifikát A+).
Parkovacie miesto alebo miesto v garáži je možné voliteľne zakúpiť priamo pred domácou vchodovou časťou.
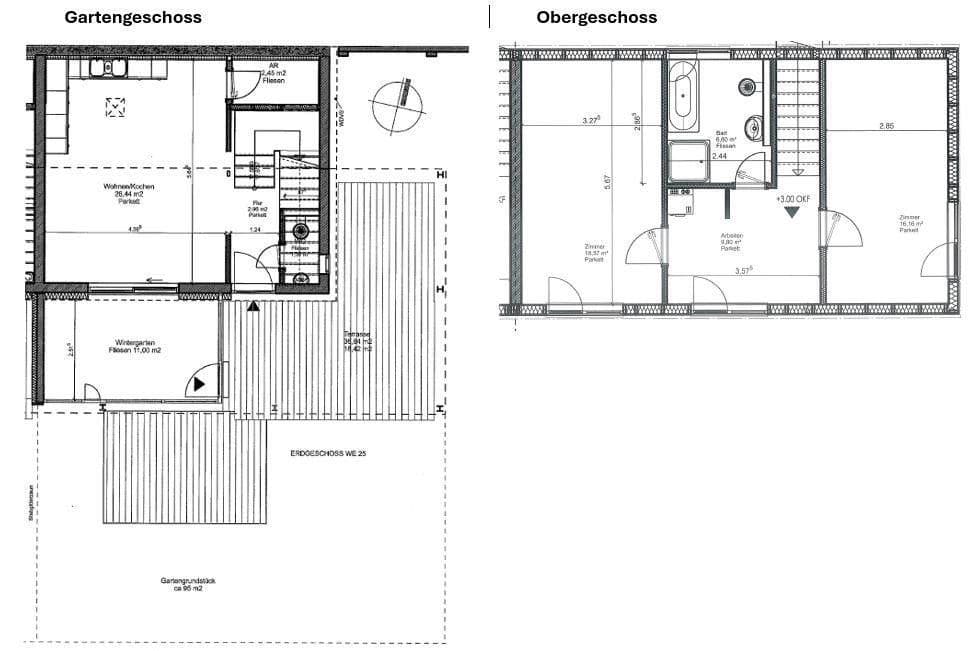
Pravý dom (WE 25) sa rozprestiera na dvoch podlažiach: Na záhradnom podlaží sa nachádza otvorený obývací a jedálenský priestor s predinštalovanými kuchynskými prípojkami. Naväzuje naň kvalitná zimná záhrada, vybavená podlahovým kúrením a všetkými multimediálnymi prípojkami. Zo zimnej záhrady je možné cez dve možnosti vstúpiť na terasu a do záhrady. Záhrada je vysadená trávnikom a živým plotom. Ovocný strom a magnólia už na mieste stoja.
Na zabezpečenie súkromia boli v prízemí inštalované textilné obrazovky so súčasnou funkciou ochrany pred pohľadom a slnečným žiarením. Tieto obrazovky je možné elektricky ovládať pomocou diaľkových ovládačov. Sú navrhnuté tak, aby zvnútra smerom von bola zabezpečená priehľadnosť.
Do vstupnej časti je zahrnutá aj hostinská toaleta. Veľké okná od podlahy po strop a strešné okno nad kuchyňou zabezpečujú dostatok denného svetla a cirkuláciu vzduchu.
Na hornom poschodí sa nachádzajú dve spálne, moderná kúpeľňa s vaňou a sprchou, ako aj práčovňa s prípojkami pre práčku a sušičku a ďalšími úložnými priestormi.
Kúpeľne sú vybavené podlahovým kúrením a podlahy sú pokryté kvalitným dubovým parkietom.
Mozartova ulica sa tiahne horizontálne od východne situovaného Paulusviertelu smerom k západne ležiacej Saale cez mestskú časť Giebichenstein v severnom centre mesta.
Mestská časť Giebichenstein získala svoje meno podľa priamo pri rieke Saale ležiaceho hradu Giebichenstein, ktorý bol postavený už v 12. storočí. Na jeho areáli sa od roku 1919 dodnes nachádza časť umeleckého kampusu umeleckej vysokej školy v Halle. Výstavba tejto časti mesta pochádza prevažne z 19. storočia a od roku 1990 bola postupne rekonštruovaná. V okolí zóny a smerom k brehu Saale dominujú vilaštýlové budovy s predzáhradami a cenným stromovým porastom. Vďaka blízkosti Saale a čiastočne historickým parkovým a zeleným plochám (Amtsgarten, Reichardts Garten, Heinrich-Heine-Park) patrí táto mestská časť medzi najzelenšie štvrte. Mestská časť má približne 10 000 obyvateľov.
Číslo domu 18 na Mozartovej ulici predstavuje veľmi pokojné sídlo, priamo oproti zadnej časti prírodovedného múzea.
V blízkej Reilovej ulici sa nachádza niekoľko zastávok električiek a autobusov.
Volkspark, ďalšie parkové plochy a aj rieka Saale sú dostupné pešo do menej než 500 metrov.
Domy na Mozartovej ulici č. 16, 17 a 18 boli postavené v 30. rokoch jednotným staviteľským štýlom a dnes tvoria zrekonštruovaný a chránený pamätihodný obytný komplex. Tri predné domy boli postavené bez bočných krídiel alebo priečnych nadstavieb, vďaka čomu vznikol za domami priestranný dvorný priestor. Medzi tieto patria aj remisové priestory, ktoré sa ponúkajú pri čísle 18.
Remisové priestory boli prebudované na moderný dvojdom. Samotný dvor je priestranný a udržiavaný v zelenej estetike. V ďalších remisách sa nachádzajú bicyklové státia, technické vybavenie domu a garáž. K remisám je prístup možný cez vratový priechod čísla 18.
V rámci nadstavby strešných podlaží na troch predných domoch boli okrem novej pokrývky tiež zrekonštruované fasády, vstupné časti, schodiská, spoločná elektroinštalácia, vratový priechod a ďalšie prvky.
Garáž alebo prípadne parkovacie miesto vo dvore je možné (pozri Expozíciu).
Parametre nehnuteľnosti
| Vek | Nad 50 rokov |
|---|---|
| Stav | Po rekonštrukcii |
| Číslo inzerátu | 974630 |
| Úžitková plocha | 115 m² |
| Dostupné od | 20. 12. 2025 |
|---|---|
| Dispozícia | 3+1 |
| PENB | A - Mimoriadne úsporné |
| Cena za jednotku | 4 435 € / m2 |
Čo táto nehnuteľnosť ponúka?
| Pivnica | |
| Parkovanie | |
| Terasa |
| Garáž | |
| MHD 2 minúty pešo |
V okolí nehnuteľnosti nájdete
Stále hľadáte to pravé?
Nastavte si strážneho psa. Ponuky vybrané na mieru dostanete súhrnne 1× denne e-mailom. S Premium profilom máte po ruke rovno 5 strážcov a keď sa niečo objaví, informujú vás obratom.
















































