Predaj bytu 3+1 • 72 m² bez realitkyBremerhaven Geestendorf Bremen 27570
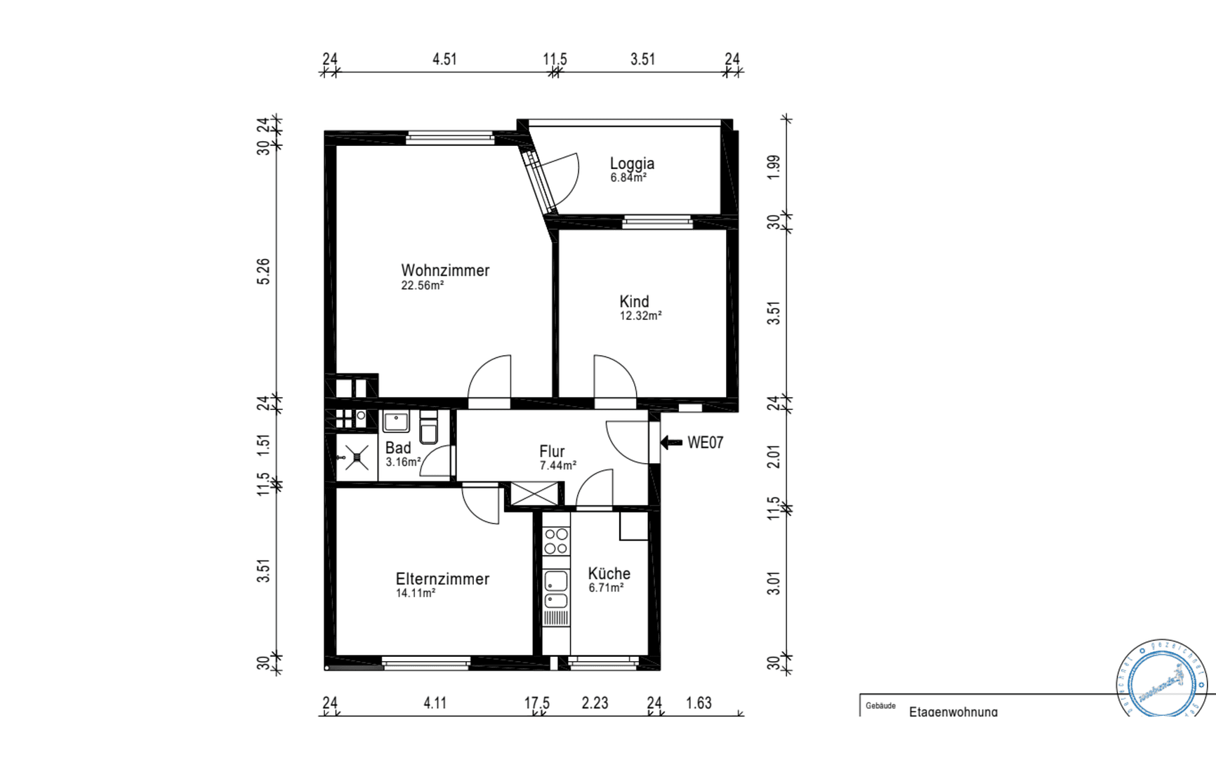
Svetlá 3-izbová bytosť sa nachádza v 3. poschodí na ľavej strane udržiavaného viacrodinného domu a ponúka obytnú plochu približne 70 m². Pôdorys je klasický a efektívny: priestranný obývací priestor, spálňa, izba pre deti/prácovňa, samostatná kuchyňa, kúpeľňa a zároveň krásna veľká loggia – ideálna pre slobodných, páry alebo malú rodinu. K bytu patrí pivnica a veľký podkrovný priestor. Dom zahŕňa celkovo 8 obytných jednotiek.
Nehnuteľnosť sa nachádza v ulici Kehdinger Straße v obľúbenej štvrti Geestemünde v Bremerhavene. Lokalita sa vyznačuje centrálnou a zároveň pokojnou obytnou atmosférou. Drevený prístav a kostol, ako aj týždenný trh, sú doslova za rohom.
3-izbový byt v 3. poschodí ponúka funkčné a overené vybavenie, ktoré bolo nedávno kompletne zrekonštruované:
- Kompletná elektroinštalácia 2025
- Nová kúpeľňa 2025
- Nová podlaha a steny – čerstvo zrekonštruované 2025
Prvé nasťahovanie po rekonštrukcii.
K bytu taktiež patria veľký podkrovný priestor a pivnica.
Kuchyňa a nábytok nie sú zahrnuté v kúpnej cene.
Parametre nehnuteľnosti
| Vek | Nad 50 rokov |
|---|---|
| Stav | Po rekonštrukcii |
| Poschodie | 3. poschodie z 3 |
| PENB | G - Mimoriadne nehospodárne |
| Cena za jednotku | 2 083 € / m2 |
| Dostupné od | 19. 12. 2025 |
|---|---|
| Dispozícia | 3+1 |
| Číslo inzerátu | 974415 |
| Úžitková plocha | 72 m² |
Čo táto nehnuteľnosť ponúka?
| Balkón | |
| MHD 1 minúta pešo |
| Pivnica |
V okolí nehnuteľnosti nájdete
Stále hľadáte to pravé?
Nastavte si strážneho psa. Ponuky vybrané na mieru dostanete súhrnne 1× denne e-mailom. S Premium profilom máte po ruke rovno 5 strážcov a keď sa niečo objaví, informujú vás obratom.










