Prenájom kancelárie • 393 m² bez realitkyWaldershoferstr. 49/51, , Bavorsko
Waldershoferstr. 49/51, , BavorskoMHD 2 minúty pešoGebäude/ Priestory:
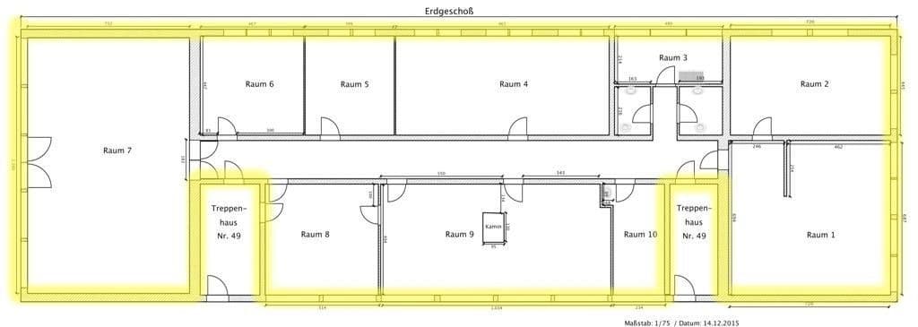
• Obchodné priestory sa nachádzajú v prízemí,
s celkovou rozlohou 393 m²,
ktorá je tiež deliteľná!
V už ekologicky zrekonštruovanej, vizuálne príťažlivej budove.
• Pokojná, čistá, udržiavaná budova
o rozdelení na zasedaciu miestnosť, serverovňu, kuchyňu, dámske/pánske WC, 6 ďalších miestností rôznych veľkostí, sklad alebo registračnú miestnosť s veľkými dvojnými dverami von, pre nakládku a pod.
o A najväčšiu úsporu nákladov predstavuje existujúca sieť pre všetky pracovné miesta.
o Vlastná serverovňa.
o Prítomný medený aj optický (vlákienkový) pripojiteľ až k serveru.
• Bytovo-kancelárska budova postavená z masívnych materiálov s miestnosťami s prekrásnym prienikom svetla.
• Rozloženie miestností je variabilné a môže byť po dohode prispôsobené požiadavkám jednotlivých užívateľov, možnosť všestranného využitia.
• Dostatočná reklamná plocha na budove aj vedľa nej.
• Veľká výkladná skriňa aj veľká oknomantažová plocha využiteľná ako výkladné okno.
• Parkovacie miesta pre niekoľko osobných vozidiel, zamestnancov/klientov, až do 14 kusov.
V susednej ulici je k dispozícii dodatočná ponuka parkovacích miest.
• Ústredné vykurovanie na olej
• Samostatné dámske a pánske WC na tejto úrovni.
• Viaceré vstupové možnosti do budovy.
Ostatné:
• Energetický preukaz (značka energetickej náročnosti 89 kWh/m²a)
• Bez sprostredkovateľa, bez provízie
• Voľné od pravdepodobne júla 2026, prípadne podľa dohody.
• Ďalšie informácie Vám radi poskytneme na vyžiadanie.
• Budova sa nachádza na vjazde do obce, na ceste Staatsstraße 2177, hlavnej prístupovej ceste z Waldershofu do Marktredwitz. V bezprostrednej blízkosti firiem Cube, Scherdel, ABM Greiffenberger, Sievert, (zmiešaná zóna). Budova je centrálnou a len 500 m od centra mesta.
• Je tu optimálne dopravné spojenie, s krátkou vzdialenosťou
k diaľnici A93 a ceste B303.
• Zastávka autobusov pri hraniciach pozemku, ako aj železničné spojenie je dostupné pešo za niekoľko minút.
• Príjazd k budove je priestranný a vhodný aj pre nákladné vozidlá. Je k dispozícii nakladacia rampa.
• V bezprostrednej blízkosti (100 m) sa nachádza supermarket s mäsiarenským oddelením a teplým pultom, poskytujúci každodenné zásobovanie pre zamestnancov.
Obchodné priestory sa nachádzajú v už ekologicky zrekonštruovanej, vizuálne príťažlivej budove.
• Pokojná, čistá, udržiavaná budova
o rozdelení na zasedaciu miestnosť, serverovňu, kuchyňu, dámske/pánske WC,
6 ďalších miestností rôznych veľkostí, sklad alebo registračnú miestnosť s
veľkými dvojnými dverami von, pre nakládku a pod.
o A najväčšiu úsporu nákladov predstavuje existujúca sieť pre všetky
pracovné miesta.
o Vlastná serverovňa.
o Prítomný medený aj optický (vlákienkový) pripojiteľ až k serveru.
• Bytovo-kancelárska budova postavená z masívnych materiálov s jasnými, svetlom naplnenými
miestnosťami.
• Rozloženie miestností je variabilné a môže byť po dohode prispôsobené požiadavkám jednotlivých užívateľov, možnosť všestranného využitia.
• Dostatočná reklamná plocha na budove aj vedľa nej.
• Veľká výkladná skriňa využiteľná ako výkladné okno.
• Parkovacie miesta pre niekoľko osobných vozidiel, zamestnancov/klientov, až do 14 kusov.
V susednej ulici je k dispozícii dodatočná ponuka parkovacích miest.
• Ústredné vykurovanie na olej.
• Samostatné dámske a pánske WC na tejto úrovni.
• Viaceré vstupové možnosti do budovy.
Ostatné:
• Energetický preukaz (značka energetickej náročnosti 89 kWh/m²a)
• Bez sprostredkovateľa, bez provízie
• Voľné od pravdepodobne júla 2026, prípadne podľa dohody.
• Ďalšie informácie Vám radi poskytneme na vyžiadanie.
Parametre nehnuteľnosti
| Vek | Nad 50 rokov |
|---|---|
| Stav | Dobrý |
| Plocha kancelárie | 393 m² |
| Dostupné od | 1. 7. 2026 |
|---|---|
| Číslo inzerátu | 974406 |
| Cena za jednotku | 0 € / m2 |
Čo táto nehnuteľnosť ponúka?
| MHD 2 minúty pešo |
V okolí nehnuteľnosti nájdete
Stále hľadáte to pravé?
Nastavte si strážneho psa. Ponuky vybrané na mieru dostanete súhrnne 1× denne e-mailom. S Premium profilom máte po ruke rovno 5 strážcov a keď sa niečo objaví, informujú vás obratom.














