Prenájom nebytového priestoru • 399 m² bez realitkyMarktstraße 33, , Severné Porýnie - Westfálsko
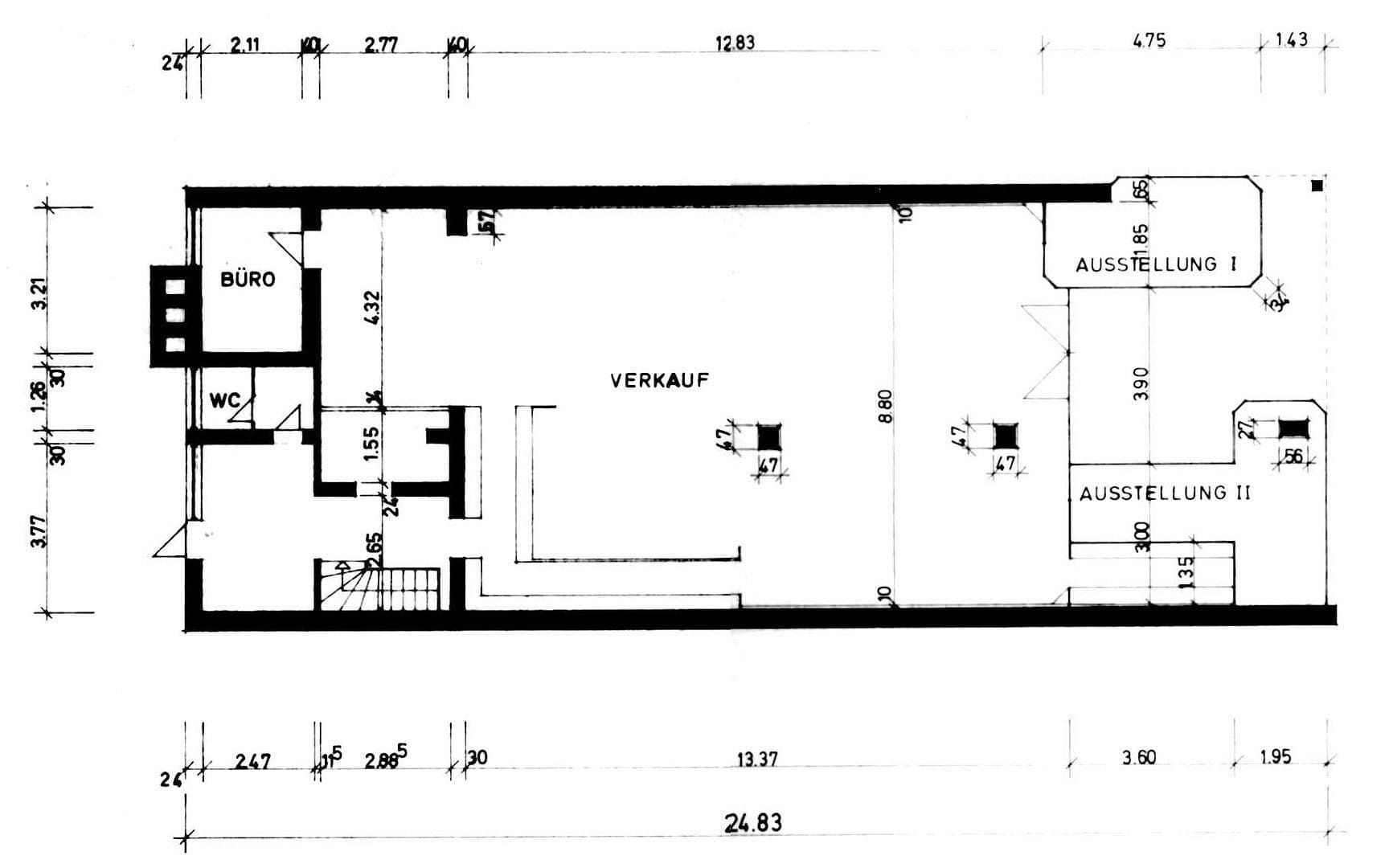
Priestor obchodu spája všetko, čo potrebuje atraktívna lokalita v centre mesta: približne 122 m² predajného priestoru v prízemí s veľkou, svetlou výkladnou pasážou láka okoloidúcich priamo z pešej zóny. Za predajným priestorom nájdete praktické skladové priestory (cca 46 m²) aj priestranný suterén (cca 193 m²), ktoré sú pripravené pre uskladnenie tovaru alebo prípravu akcií. Samostatná kancelária a personálne WC zjednodušia každodenný chod. Vďaka prehľadnému dispozíciu sa priestor dá flexibilne prispôsobiť – či už pre módne obchody, obchody s obuvou, konceptové obchody, kozmetické štúdiá, biobutiky, obchody s darčekmi a dekoráciami, optiky, mobilné obchody, kníhkupectvá alebo aj ako showroom pre poskytovateľov služieb, začínajúcich podnikateľov a online predajcov s kamenným obchodom. Lokalita je výborná pre franchisových partnerov, zakladateľov, prevádzkovateľov viacerých predajní alebo podnikateľov, ktorí vedú svoj biznis osobne.
Lokalizácia priamo v centre mesta Höxtern, hneď pri rušnej pešej zóne medzi trhovým námestím a ulicou Weser. Miesto profitovalo z vysokej prechádzajúcej frekvencie vďaka okolitým špecializovaným obchodom, kaviarňam a stánkom týždenného trhu.
Momentálne preverované pre obchod s obuvou:
• cca 122 m² predajného priestoru v prízemí + 37 m² výkladnej pasáže
• cca 46,5 m² sklad v prízemí, navyše cca 192,5 m² suterénneho priestoru
• široká, svetlá výkladná okná v pešej zóne
• prehľadný, obdĺžnikový pôdorys – flexibilné využitie
• samostatná kancelária a sanitačné priestory sú k dispozícii
Dostupné podľa dohody. Podmienky na vyžiadanie.
Parametre nehnuteľnosti
| Dostupné od | 19. 12. 2025 |
|---|---|
| Číslo inzerátu | 974334 |
| Plocha pozemku | 200 m² |
| Poschodie | Podlahy nie sú špecifikované |
|---|---|
| Plocha nebytového priestoru | 399 m² |
| Cena za jednotku | 0 € / m2 |
Čo táto nehnuteľnosť ponúka?
| Pivnica | |
| MHD 1 minúta pešo |
| Parkovanie |
V okolí nehnuteľnosti nájdete
Stále hľadáte to pravé?
Nastavte si strážneho psa. Ponuky vybrané na mieru dostanete súhrnne 1× denne e-mailom. S Premium profilom máte po ruke rovno 5 strážcov a keď sa niečo objaví, informujú vás obratom.





