
Prenájom nebytového priestoru • 1300 m² bez realitkyAhornstr. 9, , Brandenbursko
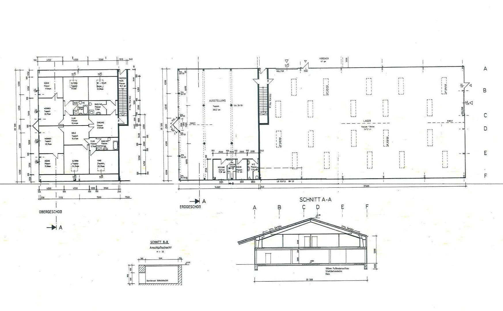
Ahornstr. 9, , BrandenburskoMHD 6minút pešoSklad prízemie – 700 m² za 6,80 € za m²
Výstava / kancelária prízemie – 300 m² za 8,70 € za m²
Kancelária / bývanie 1. poschodie – 300 m² za 8,70 € za m²
Elektrické posúvacie brány – priejazd: šírka 4,00 m x výška 4,30 m
Ceny uvedené bez DPH, pripočítava sa zákonná DPH a poplatky za služby.
- Bez stĺpov
- Oplotené
- Prístup pre nákladné vozidlá
- Silný elektrický prúd
- 3 optické káble
Sklad je vybavený vysokými regálmi, ktoré je možné odstrániť alebo prispôsobiť vašim požiadavkám.
Kancelárske priestory môže prenajímateľ upraviť podľa vašich predstáv.
Na zadnej strane haly sa nachádza záhradný priestor, ktorý je ideálny na oddych počas prestávky alebo vo večerných hodinách.
Dostatočné parkovacie miesta sú samozrejme k dispozícii.
Nový kondenzačný plynový kotol zabezpečuje mimoriadnu účinnosť vykurovacieho systému.
Priestor je možné v prípade potreby rozdeliť – približne sklad 350 m²; kancelária/prípadne výstavný priestor 300 m².
Prosím, pošlite nám e-mail, a my vám následne radi zavoláme, aby sme zodpovedali vaše otázky.
V Ludwigsfelde, priamo pri B101 v obchodnej zóne Thyrow,
5 minút od A10, s prístupom MHD (vlak a autobus)
Vstup 24 hodín
Parametre nehnuteľnosti
| Vek | Nad 50 rokov |
|---|---|
| Číslo inzerátu | 974241 |
| Plocha pozemku | 3 217 m² |
| Stav | Dobrý |
|---|---|
| Plocha nebytového priestoru | 1 300 m² |
| Cena za jednotku | 0 € / m2 |
Čo táto nehnuteľnosť ponúka?
| MHD 6 minút pešo |
V okolí nehnuteľnosti nájdete
Stále hľadáte to pravé?
Nastavte si strážneho psa. Ponuky vybrané na mieru dostanete súhrnne 1× denne e-mailom. S Premium profilom máte po ruke rovno 5 strážcov a keď sa niečo objaví, informujú vás obratom.










