Predaj domu 4+1 • 124 m² bez realitkyGRUNDSTÜCK 15KM GRAZ EXKLUSIV NUR FÜR DANWOOD-HAUSBAU Kohldorf Steiermark 8323
GRUNDSTÜCK 15KM GRAZ EXKLUSIV NUR FÜR DANWOOD-HAUSBAU Kohldorf Steiermark 8323MHD 2 minúty pešo • GarážKompaktný a premyslený – priestorový zázrak na malej dispozícii.
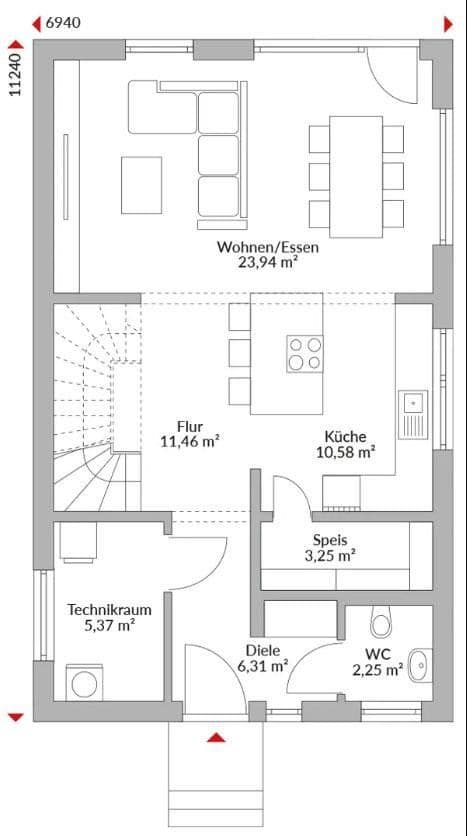
Napriek malej zastavanej ploche spĺňa tento dom všetky požiadavky moderného bývania. Kuchyňa je funkčne navrhnutá, technická miestnosť ponúka dostatok priestoru pre domovú techniku a uskladnenie. Kúpeľňa je vybavená vaňou aj sprchou, navyše je k dispozícii aj hosťovská toaleta. Hodine priestranná predsieň poskytuje bohatý priestor pre šatníky, detské izby aj spálne majú dobré možnosti usporiadania. Obývacia jedáleň zaujme veľkými oknami a otvorenými prechodmi, ktoré opticky zväčšujú priestor.
Ideálne pre všetkých, ktorí sa zameriavajú na podstatu – bez kompromisov v oblasti komfortu.
Na vašom pozemku alebo v...
Güssingu: Približne 2 600 m², pozemok úplne rovný. Veľkosti pozemkov a polohy pozemkov sú voľne voliteľné. Veľkosti od 500 m² do 1 500 m².
Tu sú stavebné pozemky prvej triedy! V najlepšej lokalite a s dychberúcim výhľadom na nádherný hrad Güssing!
Güssing ponúka perspektívny, dostupný a energeticky nezávislý život v prírode, čo z investície do nehnuteľnosti v tejto oblasti robí strategickú hodnotovú investíciu.
Prečo Güssing
Energetický priekopník a udržateľnosť:
Mesto je energeticky sebestačné a medzinárodne uznávané.
Vysoké pokrytie (nad 85 %) regionálnym biomasovým diaľkovým kúrením vedie k stabilným a priaznivým nákladom na vykurovanie.
Dostupné ceny nehnuteľností:
Ceny sú ešte výrazne nižšie ako priemer v Rakúsku, čo umožňuje splniť si sen o vlastnom dome s priestrannými pozemkami.
Silná infraštruktúra a kvalita života:
Ako okrajové mesto okresu zaručuje Güssing krátke trasy a najlepšie zabezpečenie služieb.
Plánované veľké investície:
Nový vzdelávací kampus a moderné lekárske centrum (od roku 2026).
Kultúrne centrum (hrad Güssing) a blízkosť termálnych kúpeľov.
Úplné otvorenie S7 prináša značné výhody pre Güssing a jeho obyvateľov:
Rýchlejšie napojenie na veľké mestá: Rýchlostná cesta výrazne skracuje dobu cestovania na diaľnicu A2 Süd, čím sa výrazne znižuje doba cestovania do Grazu a Viedne.
Odľahčenie regiónu: Nová trasa presmeruje tranzitnú premávku, ktorá predtým zaťažovala obce ako Fürstenfeld a Rudersdorf.
Ekonomické impulzy: Nové napojenie, mimo iného cez prístupové miesto pri Rudersdorf/Dobersdorf a blízkosť spojenia s Königsdorfom, posilňuje Güssing ako okrajové mesto okresu a ekonomickú lokalitu vďaka lepšej dostupnosti a podpore nových priemyselných parkov.
Hodnotová stabilita a rozvojový potenciál:
Cielené komunálne investície do infraštruktúry, oživenia centra mesta a technologického centra zabezpečujú dlhodobú hodnotovú stabilitu nehnuteľností.
Komunálna stratégia sa zameriava na zvládnutie demografických výziev a etablovanie Güssingu ako atraktívnej lokality pre bývanie aj podnikanie.
Cieľová skupina
Rodiny, ktoré hľadajú budúcnosť, bezpečnosť a prírodu, ako aj všetkých, ktorí kladú dôraz na nízke náklady na energiu a ekologickú zodpovednosť.
Ďalšie pozemky v:
Pozemok, 8323 Kohldorf: Stavebný pozemok s množstvom slnka v juhovýchodnom štajerskom kopcovitom teréne, 15 km od Grazu!
Veľkosť 758 m², kúpna cena € 66 000, --
Pozemok, 8323 Kohldorf: Slnečný stavebný pozemok v Kohldorfe, 15 km východne od Grazu!
Veľkosť 787 m², kúpna cena € 69 000, --
Pozemok, 8311 Markt Hartmannsdorf: Úplne upravený, slnečný stavebný pozemok v Markt Hartmannsdorfe
Veľkosť 920 m², kúpna cena € 53 000, --
Pozemok, 9335 Lölling Graben: Stavebný pozemok s úchvatným diaľkovým výhľadom v malebnom karintskom horskom prostredí
Veľkosť 1001 m², kúpna cena € 50 000, --
Pozemok, 8075 Hart pri Graze: Slnečný pozemok pred bránami Grazu
Veľkosť 1980 m², kúpna cena € 475 000, --
Pozemok na predaj v Stainz: Slnečný pozemok na okraji mesta Stainz
Veľkosť 825 m², kúpna cena € 149 000,
Medzi vlastníkom pozemku a staviteľom domu neexistuje žiadne hospodárske spojenie.
Rodinný dom so 4 izbami – exkluzívne vybavenie!
Kľúč odovzdania v stave vrátane dodania a montáže od hrubej stavby.
️ Strešná konštrukcia spevnená proti snehovej záťaži
️ Vzduch-voda tepelná čerpadlo a podlahové kúrenie
️ Ventilácia obytného priestoru s rekuperáciou tepla (letné ochladzovanie)
️ Elektrické rolety v celom dome
️ Podlahové krytiny a sanitárne zariadenia na výber podľa vlastného vkusu
️ Príprava pre fotovoltaiku
️ Balíček kompletnej starostlivosti
Pozemky od 500 m² do 1500 m² sú k dispozícii na požiadanie!
Možnosť vlastného vykonania prác – úplne podľa vašich predstáv.
Poradenstvo a predaj:
Fr. Tatjana Wyss
+43 676 553 77 47
tatjana.wyss@danwood.at
Zabezpečte si úvodné poradenstvo teraz!
Požiadajte o stavebnú dokumentáciu a katalógy!
Pre tento účel je potrebné uviesť telefónne číslo, e-mailovú adresu a adresu.
Ďakujeme!
FINANČNÝ KOŠŤULKA
https://www.finaustria.at/finanzierungsrechner
ĎALŠIE PONUKY!
https://qr.scan.page/uploads/pdf/1752348182250_686ba1debcb60.pdf
Parametre nehnuteľnosti
| Stav | Novostavba |
|---|---|
| Číslo inzerátu | 973706 |
| Plocha pozemku | 1 m² |
| Cena za jednotku | 2 248 € / m2 |
| Dispozícia | 4+1 |
|---|---|
| Úžitková plocha | 124 m² |
| Celkové poschodia | 2 |
Čo táto nehnuteľnosť ponúka?
| Garáž |
| MHD 2 minúty pešo |
V okolí nehnuteľnosti nájdete
Stále hľadáte to pravé?
Nastavte si strážneho psa. Ponuky vybrané na mieru dostanete súhrnne 1× denne e-mailom. S Premium profilom máte po ruke rovno 5 strážcov a keď sa niečo objaví, informujú vás obratom.





















