Predaj domu 4+1 • 124 m² bez realitkyGRUNDSTÜCK EXKLUSIV NUR FÜR DANWOOD-HAUSBAU ORTSRAND STAINZ St Stefan ob Stainz Steiermark 8511
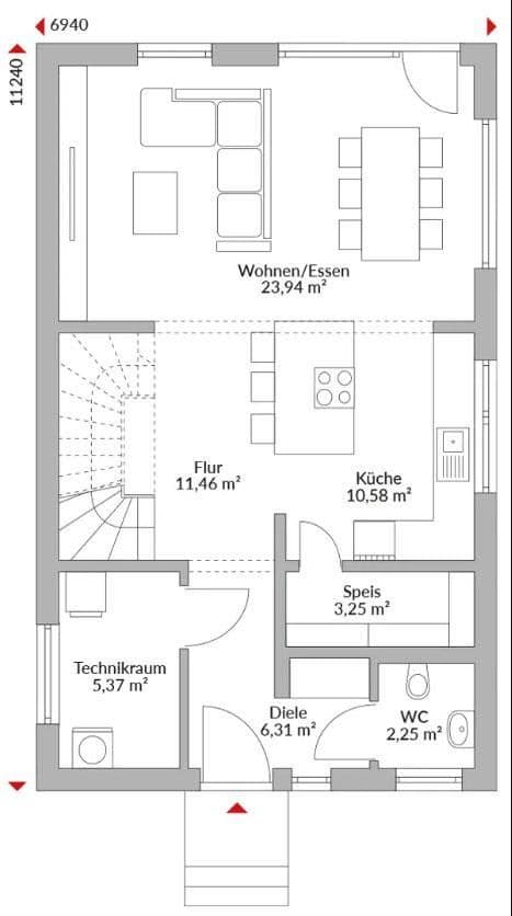
GRUNDSTÜCK EXKLUSIV NUR FÜR DANWOOD-HAUSBAU ORTSRAND STAINZ St Stefan ob Stainz Steiermark 8511MHD do minúty pešo • GarážToto dom využíva malú základeň, no spĺňa všetky nároky moderného bývania. Tento priestorový zázrak spĺňa všetky požiadavky moderného povedomia o bývaní – s maximálnou funkčnosťou. Ideálne pre všetkých, ktorí plánujú s rozmyslom a nechcú si nič z nechať chýbať. Premyslený dom, ktorý prekvapí: s obývacou časťou naplnenou svetlom, premyslene rozdelenými priestormi a so všetkým, čo moderné bývanie potrebuje. Pre ľudí, ktorí majú radi to podstatné – a vážia si komfort.
Funkčný, efektívny a komfortný: Tento dom ukazuje, koľko kvality života môže byť ukryté v kompaktnom dizajne. Pre všetkých, ktorí plánujú s dlhodobým výhľadom – a využívajú priestor inteligentne.
Na vašom pozemku alebo v…
Güssing: cca 2 600 m², pozemok úplne rovný. Veľkosti pozemkov a ich polohu možno voľne zvoliť. Rozmery od 500 m² do 1500 m².
Tu sú stavebné pozemky extraklasy! V najlepšej lokalite a s dychberúcim výhľadom na nádherný hrad Güssing!
Güssing ponúka udržateľný, cenovo dostupný a energeticky nezávislý život v prírode, čo z investície do nehnuteľnosti tam robí strategický investičný majetok.
Prečo Güssing
Energetický priekopník a udržateľnosť:
Mesto je energeticky samostatné a medzinárodne uznávané.
Vysoké pokrytie (nad 85 %) regionálnym biomasovým diaľkovým vykurovaním prináša stabilné, výhodné náklady na vykurovanie.
Cenovo dostupné ceny nehnuteľností:
Ceny sú stále výrazne výhodnejšie ako priemer v Rakúsku, čo umožňuje splniť si sen o vlastnom dome s priestrannými pozemkami.
Silná infraštruktúra a kvalita života:
Ako predmestie okresného centra zaručuje Güssing krátke trasy a najlepšie zabezpečenie.
Plánované veľké investície:
Nový vzdelávací kampus a moderné lekárske centrum (od roku 2026).
Kultúrne centrum (hrad Güssing) a blízkosť kúpeľov.
Úplné otvorenie S7 prináša významné výhody pre Güssing a jeho obyvateľov:
Rýchlejšia dostupnosť do metropolitných oblastí: Diaľnica skráti čas jazdy na diaľnicu A2 juh, čím sa výrazne znížia cestovné časy do Grazu a Viedne.
Odľahčenie regiónu: Presmeruje tranzitnú dopravu, ktorá predtým výrazne zaťažovala obce ako Fürstenfeld a Rudersdorf, na novú trasu.
Ekonomické impulzy: Nové spojenie, čiastočne aj cez prípojku pri Rudersdorf/Dobersdorf a blízkosť napojenia na Königsdorf, posilňuje Güssing ako predmestie okresného centra a podnikateľské centrum vďaka zlepšenej dostupnosti a podpore nových priemyselných parkov.
Stabilita hodnoty a rozvojový potenciál:
Cielené komunálne investície do infraštruktúry, oživenia centra mesta a technologického parku zabezpečujú dlhodobú stabilitu hodnoty nehnuteľností.
Komunálna stratégia je zameraná na zvládnutie demografických výziev a etablovanie Güssingu ako atraktívneho miesta na bývanie aj podnikanie.
Cieľová skupina
Rodiny, ktoré hľadajú budúcnosť, bezpečnosť a prírodu, ako aj všetkých, ktorí si cenia nízke náklady na energiu a ekologickú zodpovednosť.
Ďalšie pozemky v:
Pozemok, 8323 Kohldorf: Stavebný pozemok s množstvom slnka v východniarskej štérii, 15 km od Grazu!
Rozloha: 758 m², kúpna cena: € 66 000, --
Pozemok, 8323 Kohldorf: Slnivý stavebný pozemok v Kohldorfe, 15 km východne od Grazu!
Rozloha: 787 m², kúpna cena: € 69 000, --
Pozemok, 8311 Markt Hartmannsdorf: Plne vybavený, slnečný stavebný pozemok v Markt Hartmannsdorf
Rozloha: 920 m², kúpna cena: € 53 000, --
Pozemok, 9335 Lölling Graben: Stavebný pozemok s nádherným diaľkovým výhľadom v malebnom kraji rakúskeho Kärnten
Rozloha: 1001 m², kúpna cena: € 50 000, --
Pozemok, 8075 Hart pri Graze: Slnivý pozemok pred bránami Grazu
Rozloha: 1980 m², kúpna cena: € 475 000, --
Pozemok na predaj v Stainz: Slnivý pozemok na okraji Stainz
Rozloha: 825 m², kúpna cena: € 149 000,
Medzi vlastníkom pozemku a stavebníkom domu neexistuje žiadne hospodárske prepojenie.
Rodinný dom so 4 izbami – exkluzívne vybavenie!
Kľúčový odovzdanie vrátane dodávky a montáže od hrany základu.
️ Strešná konštrukcia zosilnená pre snehovú záťaž
️ Vzduch-voda tepelné čerpadlo a podlahové kúrenie
️ Ventilácia obytného priestoru s rekuperáciou tepla (letné chladenie)
️ Elektrické rolety v celom dome
️ Podlahové krytiny a sanitárne zariadenia na voľný výber
️ Príprava pre fotovoltaiku
️ Balenie "všetko zahrnuté"
Možnosť vlastnej realizácie – presne podľa vašich predstáv.
Poradenstvo a predaj:
Pani Tatjana Wyss
+43 676 553 77 47
tatjana.wyss@danwood.at
Rezervujte si úvodné poradenstvo ešte dnes!
Požiadajte o stavebnú dokumentáciu a katalógy!
Na to je potrebné uviesť vaše telefónne číslo, e-mailovú adresu a adresu.
Ďakujeme!
FINANCOVACÍ POČÍTADLO
https://www.finaustria.at/finanzierungsrechner
ĎALŠIE PONUKY!
https://qr.scan.page/uploads/pdf/1752348182250_686ba1debcb60.pdf
Parametre nehnuteľnosti
| Stav | Novostavba |
|---|---|
| Číslo inzerátu | 973703 |
| Plocha pozemku | 1 m² |
| Cena za jednotku | 2 248 € / m2 |
| Dispozícia | 4+1 |
|---|---|
| Úžitková plocha | 124 m² |
| Celkové poschodia | 2 |
Čo táto nehnuteľnosť ponúka?
| Garáž |
| MHD 0 minút pešo |
V okolí nehnuteľnosti nájdete
Stále hľadáte to pravé?
Nastavte si strážneho psa. Ponuky vybrané na mieru dostanete súhrnne 1× denne e-mailom. S Premium profilom máte po ruke rovno 5 strážcov a keď sa niečo objaví, informujú vás obratom.





















