
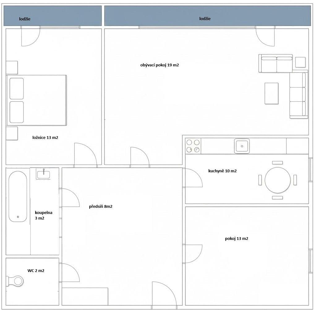
Predaj bytu 3+1 • 71 m² bez realitkyV Sadě, Vlašim - Vlašim, Středočeský kraj
Nabízím ke koupi prostorný a světlý byt 3+1 o celkové ploše 71 m², situovaný ve vyhledávané a klidné lokalitě Vlašimi, ulice V Sadě, přímo u aleje a lesa. Byt se nachází ve 3. nadzemním podlaží udržovaného čtyřpodlažního domu a je orientován na jih a východ, což zajišťuje výborné prosvětlení po celý den.
Byt je v dobrém stavu – renovované parkety, čerstvá výmalba a průběžná údržba umožní novému majiteli okamžité nastěhování bez nutnosti dalších investic.
________________________________________
Dispozice a vybavení
• příjemné a funkční uspořádání 3+1
• dvě samostatné lodžie o celkové ploše cca 7,5 m² – perfektní místo pro ranní kávu či odpočinek
• k bytu náleží sklepní kóje cca 3,5 m²
• kuchyňská linka se zcela novou troubou, myčkou a sklokeramickou deskou
• nově instalovaná toaleta, ohřívač vody
• centrální vytápění z plynového kotle v domě
Díky své dispozici a dvěma lodžiím působí byt vzdušně a nabízí příjemné bydlení v klidné části Vlašimi.
________________________________________
Dům, náklady a výhody
• byt je v osobním vlastnictví
• dům má k dispozici energetický štítek
• měsíční příspěvek do fondu oprav 2 000 Kč; náklady na studenou vodu 625 Kč, teplo 3 645 Kč
• SVJ má naspořeno více než 2 miliony Kč dle veřejně dostupné účetní závěrky za rok 2024.
• klidné a bezpečné okolí v bezprostřední blízkosti přírody
________________________________________
Skvělá občanská vybavenost a dostupnost
• školka a škola do 100 m
• MHD do 200 m
• 4 supermarkety do 2 km
• lokalita vhodná pro rodiny, sportovce i milovníky přírody
Veškerá občanská vybavenost v docházkové vzdálenosti
________________________________________
Další informace
• typ konstrukce domu: panel/cihla
• zděné jádro
• neprůchozí pokoje
• nastěhování je možné ihned
• SVJ nemá žádný úvěrový závazek
• možnost financování hypotékou (bez právních omezení, bez zástav)
• Okenní výplně – plastová okna (dvojskla)
• Pouze vážní zájemci (nikoliv realitní kanceláře)!!
• autem dojedete do Prahy přibližně za 45 minut (po D1), do Benešova za 20 minut
• Cena 4 600 000 Kč
Pokud máte zájem o více informací nebo si chcete domluvit prohlídku, napište mi prosím do zpráv.
Parametre nehnuteľnosti
| Dostupné od | 12. 12. 2025 |
|---|---|
| Výstavba budov | Panel |
| Vybavené | Čiastočne |
| Prevedenie | Štandardné |
| Číslo inzerátu | 972963 |
| PENB | G - Mimoriadne nehospodárne |
| Umiestnenie | Tichá časť |
| Cena za jednotku | 64 789 CZK / m2 |
| Stav | Veľmi dobrý |
|---|---|
| Dispozícia | 3+1 |
| Poschodie | Prízemie |
| Vykurovanie | Ústredné |
| Vlastníctvo | Osobné |
| Rekonštrukcia | Interiér |
| Úžitková plocha | 71 m² |
Čo táto nehnuteľnosť ponúka?
| Pivnica 3 m² | |
| Lodžia 7 m² |
| Predzáhradka 40 m² | |
| Parkovanie |
V okolí nehnuteľnosti nájdete
Stále hľadáte to pravé?
Nastavte si strážneho psa. Ponuky vybrané na mieru dostanete súhrnne 1× denne e-mailom. S Premium profilom máte po ruke rovno 5 strážcov a keď sa niečo objaví, informujú vás obratom.















