Predaj domu • 899 m² bez realitkyHardtstr. 35, , Severné Porýnie - Westfálsko
Hardtstr. 35, , Severné Porýnie - WestfálskoMHD 3 minúty pešo • Parkovanie • GarážReprezentatívny klenot
Pánsky dom z roku 1890 disponuje dvoma plnými poschodeniami a jedným mezzaninom. Vo všetkých častiach budovy, ktorá pochádza z konca 19. storočia, sa nachádza množstvo pôvodných detailov. Najvýraznejšie však ohromí pôvodné schodisko s veľkou sklenenou kupolou, kvalitné dubové parkety a schody, ako aj nádherné stukové zdobenia.
Okrem hlavného schodiska je tu aj druhé „personálne schodisko“. Objekt bol postavený ako rodinná vila, avšak momentálne sa využíva ako bytový dom a disponuje šiestimi priestrannými byty a jedným loftom.
V prízemí vstúpite do vily cez priestrannú, svetlom zalievanú vstupnú halu s veľkou recepciou. Nasledujú v meziposchodí dva byty:
Jeden trojizbový byt s rozlohou 117 m², a vedľa neho 5,5 izbový byt s modernou ostrovovou kuchyňou a balkónom o rozlohe 167 m². Obe jednotky boli modernizovane, ale stále si zachovávajú pôvabné pôvodné detaily, ako sú dubové parkety a stukové zdobenia na stropoch s výškou 3,60 m.
Na vyššom poschodí, v 1. poschodí, boli spojené dva byty, čím vznikla jednotka s viac ako 300 m² obytného priestoru a obrovským južným balkónom. Aj tu sa odráža celá nádhera klasicistickej minulosti v podobe dubových parkiet a bohato zdobených stukových detailov na stenách a strope s výškou 3,60 m. Z veľmi priestranného obývacieho priestoru máte priamy prístup na južný balkón s priamym výhľadom na nádherný park. Okrem toho sa tu nachádzajú dve moderné kúpeľne, moderná a špičkovo vybavená ostrovová kuchyňa, elegantná jedáleň a ďalších 5 vynikajúcich obytných priestorov.
Na pôdoryse nájdete dva trojizbové byty na modernom stave s rozlohou približne 91 a 114 m², kanceláriu s rozlohou cca 25 m² a loft o rozlohe cca 80 m². Výška stropu je približne 2,65 m. Loft je v súčasnosti spojený s bytom v 1. poschodí, má však samostatný vstup. Celková prenajímateľná plocha tak dosahuje približne 900 m².
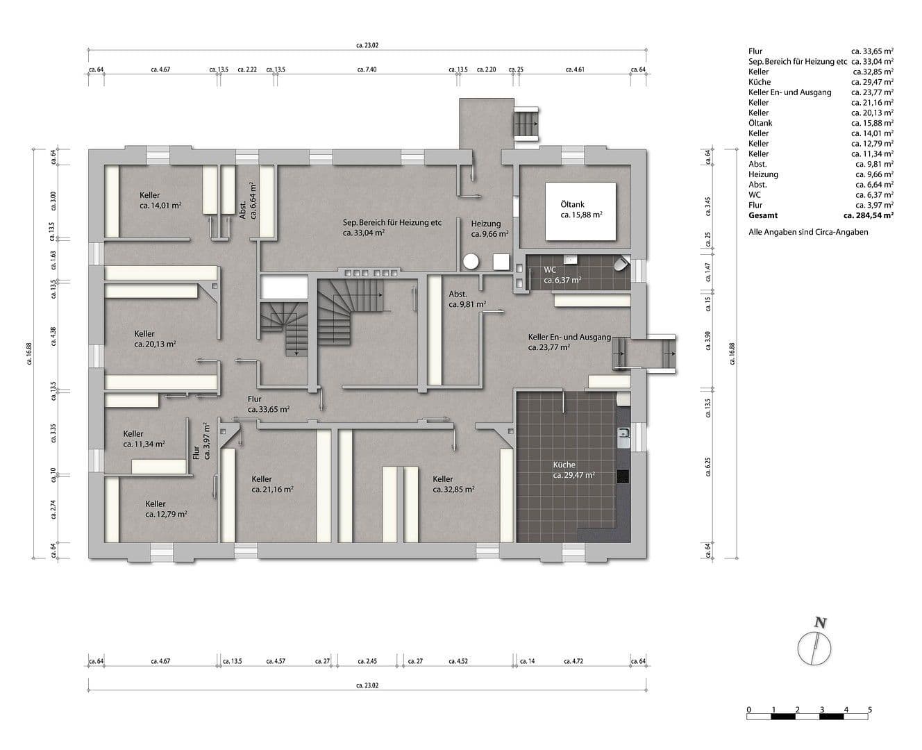
V podpodslaší nehnuteľnosti sa nachádza sklep s 6 miestnosťami s klenutými stenami, dielňa, vinný sklep, práčovňa, samostatná toaletka a niekoľko servisných a úložných priestorov.
Takmer 1 hektár pozemku je sotva dohliadnuteľný a pozostáva z nádherne upraveného zámockého parku a prilehlého zeleňou upraveného stavebného pozemku. Návštevník sa dostane na pozemok dlhým, pokojne zvyravanou príjazdovou cestou, ktorá vedie bokom cez upravený park a záhradu. Pozemok na jednej strane susedí s riekou, cez pár schodov máte tak priamy, úplne súkromný prístup k rieke Wupper.
V záhrade stojí vzácny záhradný pavilón (čajovňa) s ôsmimi zdobenými kovovými stĺpmi a prírodným kamenným podlahovým krytím, ako aj ďalší záhradný domček, ktorý sa v súčasnosti využíva ako ateliér. Dve grilovacie plochy a nádherne zarastený porast stromov s obrovskými červenými bukmi tvoria srdce tejto krásnej, upravovanej záhlavy.
Všetky podlažia boli v posledných rokoch rozsiahlo a kvalitne zrenovované a kompletne obnovené. Nové centrálnе kúrenie na plyn z roku 2021.
Celkový kontext a charakter nehnuteľnosti poskytujú solídny základ pre rozvoj konceptu v oblasti súkromného bývania; turistického sektora, napríklad zariadenia exkluzívneho boutique hotela alebo ďalšie komerčné využitie, napr. ako súkromné centrum špecializovaných lekárov alebo luxusná seniorské rezidencie. Prípadne sa dom môže vrátiť do pôvodného stavu rodinnej vily.
Budova spája šarm historických panstiev so súčasnými komfortnými vybaveniami. Je zaradená do ochrany pamiatok, čo ponúka investoriou mimoriadne možnosti pre tvorivé riešenia.
Všeobecné | Špecifiká | Poznámky:
Katastrálny register Radevormwald, list 3553, katastrálne územie 46, parcely 272 (integrovaná do parcely 273), 273, 274, 563
Daň z nehnuteľnosti B 2024:
Parcela 273: 369,17 €
Parcela 274: 996,07 €
Parcela 563: 0,00 €
Energetický preukaz: Nie je k dispozícii kvôli objektu chránenému pamiatkou.
Kúrenie: V roku 2021 bolo inštalované nové centrálnе kúrenie na plyn, ktoré je zásobované z podzemného nádrže na kvapalný plyn.
Radevormwald je pokojná obec s približne 25 tisíc obyvateľmi v správnom obvode Köln. V Radevormwalde-Dahlhausen, v srdci pulzujúcej metropolitnej oblasti Köln - Düsseldorf - Ruhrgebiet, sa nachádza toto reprezentatívne sídlo v klasicistickom štýle, bývalá továreň pre fabrikantov Hardt, s približne 900 m² obytného priestoru a približne 9 300 m² udržiavaného parku a záhrady v anglickom štýle. Každé z týchto troch hlavných centier dosiahnete len za dobrých pol hodiny jazdy.
Radevormwald je jedným z najstarších miest v regióne Berg a je obľúbený ako bohatý lesný rekreačný región s viacerými priehradami. Obchody bežnej dennej potreby ako supermarket, lekáreň, ambulancia a základná škola sú v Radevormwalde-Dahlhausen dosiahnuteľné pešo za pár minút. V stovkách metrov sa nachádza niekoľko autobusových zastávok. Autom sa za menej ako 10 minút dostanete priamo do centra mesta Radevormwald alebo Remscheid, kde nájdete každého druhu obchod či službu.
Vzdialenosti:
Letisko Düsseldorf: 55 km
Centrum Düsseldorf: 50 km
Letisko Köln: 55 km
Centrum Köln: 50 km
Letisko Dortmund: 60 km
Centrum Dortmund: 55 km
Dronové video:
https://youtu.be/XQ4K85N2fIc
alebo naskenujte QR kód.
Renovačné a udržiavacie opatrenia v rokoch 2012 až 2023:
• Elektrické a vodovodné rozvody 2012–2022
• Kúrenársky systém (centrálne kúrenie na plyn) 2021
• Okná, dvere 2020–2023
• Nová vnútorná omietka 2012–2022
• Izolácia strechy 2021–2022
• Parkovacie zariadenia 2015–2022
• Restaurácia parkového pavilónu 2020–2021
• Úprava podkrovia 2022–2023
• Inštalácia komína 2022–2023
• Nové internetové pripojenie vo všetkých bytoch 2015–2016
Vybavenie:
• Historická továreň fabrikantov z éry zakladateľov
• Pozemok 9 275 m² s parkom a prístupom k vode
• 899 m² obytného priestoru, 26 izieb
• Veľmi súkromné prostredie
• Dôkladne zrenovované v súlade s pamiatkovou ochranou, vysoko kvalitné vybavenie
• Úplne podsklenené
• 4 garáže
• 6–10 parkovacích miest
• Veľké balkóny a terasy
• Pamiatková ochrana
Pozemok: 9 275 m²
Prenajímateľná plocha: cca 899 m²
Adresa objektu:
Hardtstr. 35,
42477 Radevormwald
Nájomné príjmy: Nájomné (bez energie) približne 52 500 € / rok (pri 3 z 7 bytov využívaných vlastným bývaním (alebo 385 z 899 m²) a 1 z 4 garáží využívaných vlastným spôsobom).
Kúpna cena: 4 600 000 € (bez provízie pre kupujúceho)
Máte záujem dozvedieť sa viac o tomto rozmanitom vysnívanom objekte? Radi vám odpovieme na vaše otázky a tešíme sa na váš kontakt.
Kontaktné údaje:
Condé Immobilien
Alexander Condé
Tel.: +49 1573 73 06 118
E-mail: info@conde-immobilien.de
Impressum:
Condé Consulting UG (s ručením obmedzeným)
Konatel: Alexander Condé
Graf-Adolf-Str. 11
D-42119 Wuppertal
Telefón: +49 (0) 202 514 266 11
Telefax: +49 (0) 202 514 266 10
E-mail: info [at] conde-immobilien [dot] de
Celé impressum nájdete na adrese: https://www.conde-immobilien.de/impressum
Parametre nehnuteľnosti
| Vek | Nad 50 rokov |
|---|---|
| Číslo inzerátu | 972916 |
| Plocha pozemku | 9 275 m² |
| Cena za jednotku | 5 117 € / m2 |
| Stav | Po rekonštrukcii |
|---|---|
| Úžitková plocha | 899 m² |
| Celkové poschodia | 2 |
Čo táto nehnuteľnosť ponúka?
| Balkón | |
| Garáž | |
| MHD 3 minúty pešo |
| Pivnica | |
| Parkovanie | |
| Terasa |
V okolí nehnuteľnosti nájdete
Stále hľadáte to pravé?
Nastavte si strážneho psa. Ponuky vybrané na mieru dostanete súhrnne 1× denne e-mailom. S Premium profilom máte po ruke rovno 5 strážcov a keď sa niečo objaví, informujú vás obratom.






















































