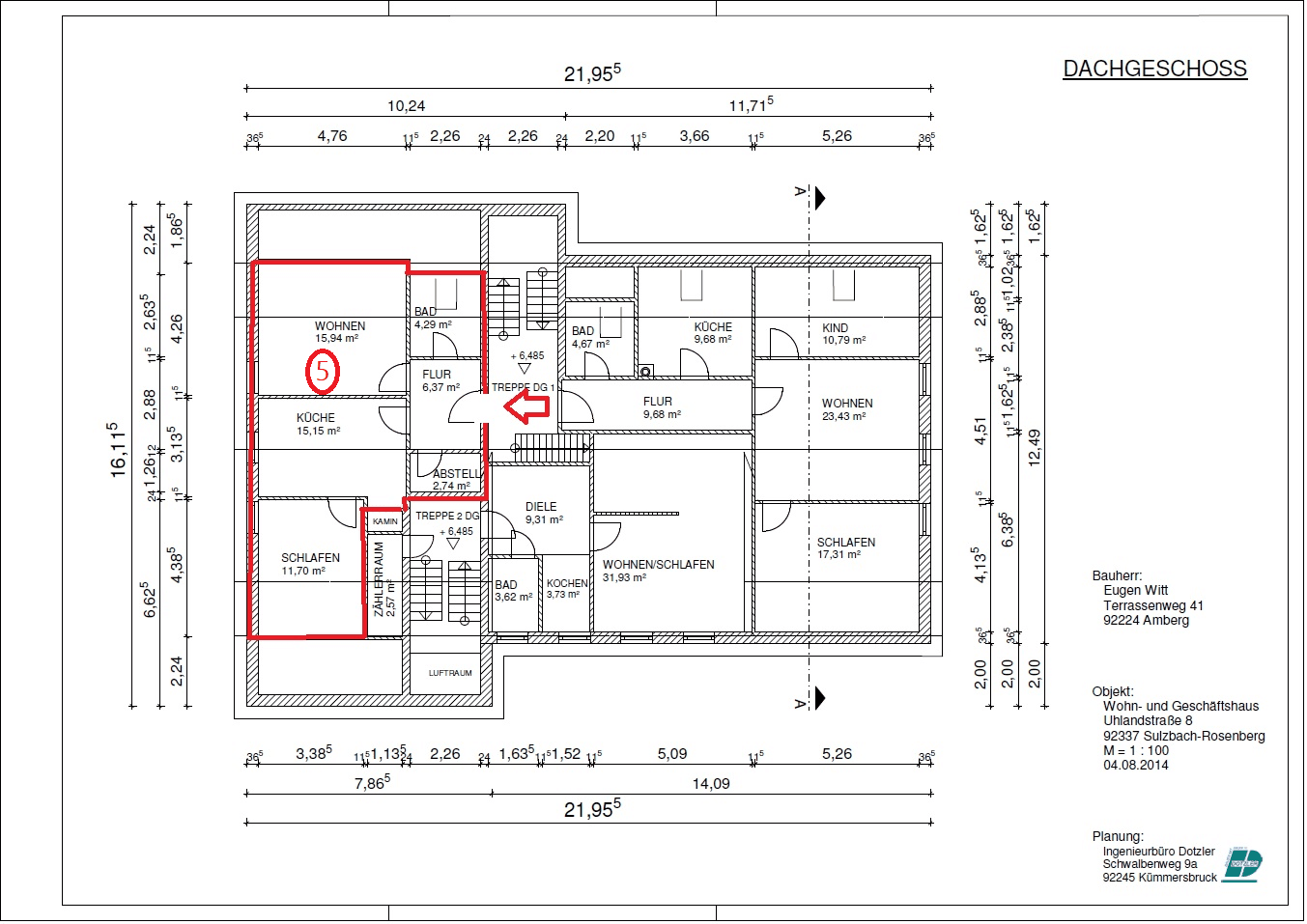
Predaj domu • 482 m² bez realitkyUhlandstraße 8, , Bavorsko
Uhlandstraße 8, , BavorskoMHD do minúty pešo • ParkovanieNa predaj je udržiavaná obytná a obchodná budova s celkovým počtom ôsmich jednotiek. Tri z nich boli už predané, zostávajúcich päť jednotiek – pozostávajúcich z dvoch obchodných priestorov a troch bytov – je teraz na predaj.
Nehnuteľnosť zaujme svojou solídnou konštrukciou, dobrým zložením nájomcov aj udržateľnou výnosovou istotou. S aktuálnym ročným čistým nájomom cca 40 884 € a s možnosťou úpravy na cca 50 000 € ročne predstavuje tento objekt atraktívnu kapitálovú investíciu.
Prehľad jednotiek
• Obchodná jednotka 1: 147 m² (82 m² predajná plocha + 65 m² skladová plocha), aktuálne prenajatá ako pizzeria
• Obchodná jednotka 2: 54 m², aktuálne prenajatá ako autoškola
• Byty (3 jednotky s rozlohou 136 m², 88 m², 57 m²): dobre navrhnuté byty, spoľahlivo prenajaté.
Celková plocha (obytná a využiteľná plocha): cca 482 m²
Ekonomické ukazovatele
• Aktuálny ročný čistý nájom: cca 40 884 €
• Možnosť úpravy: na cca 50 000 € ročne
• Jednotky na predaj: 5 (2 obchodné + 3 byty)
• Celkový počet jednotiek v objekte: 8 (z toho 3 už predané)
Hlavné prednosti
• Atraktívna kapitálová investícia so solídnym rastovým potenciálom
• Stabilná štruktúra nájomcov (byty aj obchody)
• Výborná lokalita s vysokou viditeľnosťou a frekvenciou návštevnosti
• Kompletná obnova (90. roky) a priebežná modernizácia
• Solídna konštrukcia, udržiavaný stav
Ostatné
Nehnuteľnosť je ideálna ako kapitálová investícia pre súkromné osoby a investorov, ktorí stavajú na dlhodobo stabilnom nájomnom modeli. Vďaka kombinácii obytných a obchodných jednotiek vzniká vyvážené využitie, ktoré poskytuje dodatočnú istotu.
Obytná a obchodná budova sa nachádza vo frekventovanej lokalite s vysokou viditeľnosťou a dobrou dostupnosťou. Centrálna poloha poskytuje obchodným nájomcom vynikajúcu obchodnú základňu a zabezpečuje stálu dopyt.
Tento objekt sa nachádza v centre Loderhofu (štvrť Sulzbach-Rosenberg), čím vzniká stabilná a udržateľná situácia pri prenájme. V bezprostrednej blízkosti sa nachádzajú možnosti nakupovania, gastronómia, školy a verejná doprava.
Nehnuteľnosť bola počas uplynulých desaťročí pravidelne modernizovaná a prezentuje sa v udržiavanom celkovom stave.
• Komplexná obnova v 90. rokoch: obnova elektriky, rekonštrukcia kúpeľní, vykurovacích zariadení (plynové kotly na poschodia) a ďalších častí budovy
• 2000–2005: inštalácia plastových okien s dvojitým zasklením a rolietami na celom objekte
• Vykurovanie pomocou plynových kotlov na poschodia
• Solídna konštrukcia s kombinovaným využitím (byty a obchody)
Prehliadky je možné dohodnúť telefonicky!
Parametre nehnuteľnosti
| Vek | Nad 50 rokov |
|---|---|
| Číslo inzerátu | 972890 |
| Úžitková plocha | 482 m² |
| Celkové poschodia | 2 |
| Stav | Dobrý |
|---|---|
| PENB | D - Menej hospodárne |
| Plocha pozemku | 780 m² |
| Cena za jednotku | 1 421 € / m2 |
Čo táto nehnuteľnosť ponúka?
| Pivnica | |
| MHD 0 minút pešo |
| Parkovanie |
V okolí nehnuteľnosti nájdete
Stále hľadáte to pravé?
Nastavte si strážneho psa. Ponuky vybrané na mieru dostanete súhrnne 1× denne e-mailom. S Premium profilom máte po ruke rovno 5 strážcov a keď sa niečo objaví, informujú vás obratom.






















