Prenájom bytu 3+1 • 74 m² bez realitkyParacelsusstraße 2c Halle (Saale) Paulusviertel Sachsen-Anhalt 06114
Paracelsusstraße 2c Halle (Saale) Paulusviertel Sachsen-Anhalt 06114MHD 3 minúty pešoTento štýlový viacrodinný dom z roku 1906 sa nachádza na Paracelsusstraße 2c v Halle (Saale) a je zapísaný na zozname pamiatok. Dom ponúka deväť priestranných historických bytov, ktoré zaujmú svojimi vysokými stropmi, veľkými oknami a charakteristickým šarmom starších budov.
Paracelsusstraße 2c sa nachádza na okraji žiadanej Paulusovej štvrte v Halle (Saale), jednej z najatraktívnejších rezidenčných oblastí mesta. Táto štvrť sa vyznačuje množstvom budov z obdobia Gründerzeit a centrálnou polohou. V bezprostrednej blízkosti sa nachádza Pauluskostol, rôzne možnosti nakupovania, kaviarne, reštaurácie a vzdelávacie inštitúcie, ako je napríklad Martin-Lutherova univerzita Halle-Wittenberg. Doprava verejnou dopravou je vynikajúca: zastávky električiek a autobusov sú v pešej vzdialenosti a umožňujú rýchle spojenie s centrom a ďalšími časťami mesta. Okrem toho Paulusova štvrť ponúka množstvo zelených plôch a parkov, ktoré pozývajú na prechádzky a oddych.
Medzi rokmi 2011 a 2014 bol objekt dôkladne zrekonštruovaný a zmodernizovaný. Medzi inými boli montované nové okná, inštalované moderné centrálne kúrenie a kúpeľne vybavené podľa aktuálnych štandardov. Byt bol nedávno zrekonštruovaný a čiastočne disponuje obnovenou drevenou podlahou. Ďalší komfort zabezpečujú aj pivnice a možnosť úschovy bicyklov.
Prenájom do zdieľaných bytov nie je možný.
Parametre nehnuteľnosti
| Vek | Nad 50 rokov |
|---|---|
| Stav | Po rekonštrukcii |
| Číslo inzerátu | 972887 |
| Cena za jednotku | 10 € / m2 |
| Dostupné od | 12. 12. 2025 |
|---|---|
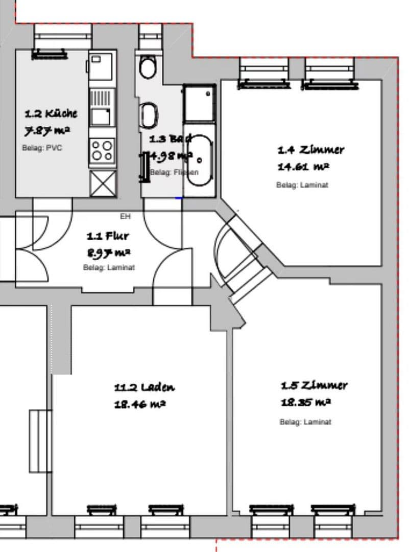
| Dispozícia | 3+1 |
| Úžitková plocha | 74 m² |
Čo táto nehnuteľnosť ponúka?
| MHD 3 minúty pešo |
V okolí nehnuteľnosti nájdete
Stále hľadáte to pravé?
Nastavte si strážneho psa. Ponuky vybrané na mieru dostanete súhrnne 1× denne e-mailom. S Premium profilom máte po ruke rovno 5 strážcov a keď sa niečo objaví, informujú vás obratom.









