Predaj bytu 4+1 • 105 m² bez realitkyMozartstr. 17 Halle Giebichenstein Sachsen-Anhalt 06114
Mozartstr. 17 Halle Giebichenstein Sachsen-Anhalt 06114MHD 1 minúta pešoDom Mozartstraße 17
Domy na adrese Mozartstraße 16, 17 a 18 boli postavené jednotným stavebným štýlom a dnes tvoria zmodernizovaný obytný komplex. Tri časti budovy, rovnako ako celý blok ulice, boli väčšinou postavené bez bočných krídiel či priečnych budov.
V budovách Mozartstraße 16–18 boli podkrovia prebudované na obytný priestor. Kôlne dielne vo dvore boli premenené na dva moderné townhousy.
V rámci nového zatepľovania strešnej konštrukcie sa okrem prekrytia striech prepracovali aj fasády, vstupné priestory, schodiská, spoločná elektroinštalácia a mnoho ďalšieho.
Dvor samotný je veľmi priestranný a zeleňou obohatený. Okrem toho sa vo dvore nachádza šesť parkovacích miest a garáž, ktorá je prístupná cez bránu budovy číslo 18. Obytné domy majú každý ďalší vstup z dvora.
Ulica Mozartstraße prebieha horizontálne od východne umiestneného Paulusviertelu smerom k západne situovanej rieke Saale, pričom pretína mestskú časť Giebichenstein v severnej časti centra.
Mestská časť Giebichenstein získala svoj názov podľa hradu Giebichenstein, ležiaceho priamo na brehu Saale, ktorý bol postavený už v 12. storočí. Na jeho území sa od roku 1919 dodnes nachádza časť umeleckého kampusu umeleckej vysokej školy v Halle. Zastavanosť tejto časti mesta pochádza prevažne z 19. storočia a bola postupne zrekonštruovaná od roku 1990. V bezprostrednej blízkosti zo zoologickej záhrady a smerom k brehu Saale dominujú vilové budovy s predzáhradami a cenným stromovým porastom. Vďaka blízkosti riek Saale a čiastočne historickým parkovým a zeleným plochám (Amtsgarten, Reichardts Garten, Heinrich-Heine-Park) patrí táto mestská časť medzi najzelenšie štvrte. Celkový počet obyvateľov tejto štvrte je približne 10 000.
Číslo domu 18 na Mozartstraße predstavuje veľmi pokojné miesto, priamo oproti zadnej časti prírodovedného múzea.
Na blízkej ulici Reilstraße sa nachádza niekoľko zastávok električiek a autobusov. Národný park, ďalšie parkové plochy a dokonca aj rieka Saale sú dostupné pešo za niekoľko minút (menej ako 500 metrov).
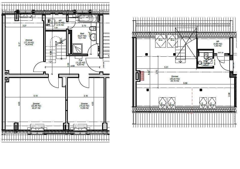
Podkrovný byt č. 14
Novo zrekonštruovaný podkrovný byt sa rozprestiera na dvoch horných poschodiach stredného domu a disponuje obytnou plochou 104,75 m² podľa WoFlVO (128,91 m² užitkovej plochy).
Maisonette byt ponúka na hornom poschodí otvorený obytný priestor spojený s kuchyňou a na nižšom poschodí tri spálne – ideálne rozdelenie medzi súkromnú zónu a spoločenské priestory. K bytu je prístup z oboch poschodí.
Horné poschodie je navrhnuté otvorene, s priestrannou obytnou kuchyňou, návštevným WC, veľkými strešnými oknami a klimatizáciou. Na dolnom poschodí sa nachádzajú tri spálne, veľká kúpeľňa s vaňou a sprchou, ako aj technická miestnosť.
Byt je vďaka veľkým oknám na dvoch stranách veľmi dobre osvetlený.
Všetky podlahy sú vybavené kvalitným masívnym dubovým parketom.
Kúpeľne majú elegantné kamenné dlaždice, nové vysoko kvalitné sanitárne zariadenia, podlahové kúrenie a okná, ktoré zabezpečujú prirodzené osvetlenie a vetranie.
Správcovský poplatok činí 279 EUR, plus 20,25 EUR údržbového fondu.
Parametre nehnuteľnosti
| Vek | Nad 50 rokov |
|---|---|
| Stav | Po rekonštrukcii |
| Poschodie | 3. poschodie z 4 |
| PENB | E - Nehospodárne |
| Cena za jednotku | 3 429 € / m2 |
| Dostupné od | 15. 12. 2025 |
|---|---|
| Dispozícia | 4+1 |
| Číslo inzerátu | 972756 |
| Úžitková plocha | 105 m² |
Čo táto nehnuteľnosť ponúka?
| Pivnica |
| MHD 1 minúta pešo |
V okolí nehnuteľnosti nájdete
Stále hľadáte to pravé?
Nastavte si strážneho psa. Ponuky vybrané na mieru dostanete súhrnne 1× denne e-mailom. S Premium profilom máte po ruke rovno 5 strážcov a keď sa niečo objaví, informujú vás obratom.























