
Predaj bytu 3+1 • 65 m² bez realitkyK. Světlé, Zlín - Prštné, Zlínský kraj
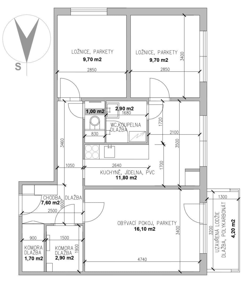
K. Světlé, Zlín - Prštné, Zlínský krajMHD 2 minúty pešo • Čiastočne vybavené • Parkovanie • Pivnica 2 m² • Lodžia 4,2 m²K prodeji nabízíme světlý byt 3+1 o podlahové ploše 65 m² s uzavřenou lodžií 4,2 m² a sklepem 2 m² v oblíbené zlínské lokalitě Podhoří. Byt se nachází ve 13. patře panelového domu s výtahem a díky jihozápadní orientaci nabízí dostatek denního světla a velmi příjemný výhled na Zlín a okolní krajinu.
Byt je v udržovaném stavu, s rekonstruovaným zděným jádrem (koupelna a samostatné WC jsou po rekonstrukci – obklady, dlažba, sprchový kout, umyvadlová skříňka), ostatní části bytu jsou vhodné k modernizaci podle vkusu nového majitele. Díky tomu je možné byt přetvořit přesně podle vlastních představ.
Mezi přednosti patří uzavíratelná lodžie o rozloze 4,2 m², která dodá prostoru svěžest a možnost relaxace a sklep o ploše 2 m², který je ideální pro uložení sezónních věcí či sportovních potřeb.
V obytných místnostech jsou původní dřevěné parkety, v předsíni a sanitě keramická dlažba, v kuchyni pvc. V bytě jsou plastová okna, topení je centrální dálkové. Vaření na plynu. Bytový dům je zateplený.
Parkování je zajištěno před domem, což výrazně usnadňuje každodenní pohodlí a mobilitu. Nemovitost se prodává v osobním vlastnictví. Energetický štítek budovy má hodnotu G (bude upřesněno).
Náklady na bydlení:
měsíční zálohy do SVJ činní cca 4.100 Kč (správa domu, fond oprav, teplo, teplá a studená voda, společná elektřina, služby správce)
zálohy na elektřinu a plyn jsou nyní nastaveny cca 800 Kč/měsíc
(byt je v současné době neobývaný)
Lokalita Podhoří patří mezi vyhledávané části Zlína díky kompletní občanské vybavenosti v docházkové vzdálenosti:
zastávky MHD
základní škola a mateřská škola
potraviny a další obchody a služby
lékaři, pošta, sportoviště
dětská hřiště a zeleň v okolí domu
Dobrá dostupnost centra Zlína i napojení na hlavní tahy dělá z bytu vhodnou volbu jak pro rodinné bydlení, tak jako investici k pronájmu.
Pokud Vás nabídka zaujala, kontaktujte mě prosím skrze zprávy či komunikační platformu.
Parametre nehnuteľnosti
| Dostupné od | 11. 12. 2025 |
|---|---|
| Konštrukcia budovy | Panel |
| Vybavené | Čiastočne |
| Vykurovanie | Ústredné |
| Vlastníctvo | Osobné |
| Rekonštrukcia | Jadro |
| Úžitková plocha | 65 m² |
| Stav | Dobrý |
|---|---|
| Dispozícia | 3+1 |
| Poschodie | 13. poschodie z 13 |
| Číslo inzerátu | 972681 |
| PENB | C - Hospodárne |
| Umiestnenie | Sídlisko |
| Cena za jednotku | 76 769 CZK / m2 |
Čo táto nehnuteľnosť ponúka?
| Pivnica 2 m² | |
| Parkovanie |
| Lodžia 4,2 m² | |
| MHD 2 minúty pešo |
V okolí nehnuteľnosti nájdete
Stále hľadáte to pravé?
Nastavte si strážneho psa. Ponuky vybrané na mieru dostanete súhrnne 1× denne e-mailom. S Premium profilom máte po ruke rovno 5 strážcov a keď sa niečo objaví, informujú vás obratom.



















