
Predaj bytu 3+kk • 67 m² bez realitkyHvězdné údolí, Šternberk - Šternberk, Olomoucký kraj
Hvězdné údolí, Šternberk - Šternberk, Olomoucký krajParkovanie • Garáž • Pivnica 10 m²Cena5 500 000 CZKUšetríte 400 000 CZK5 900 000 CZK
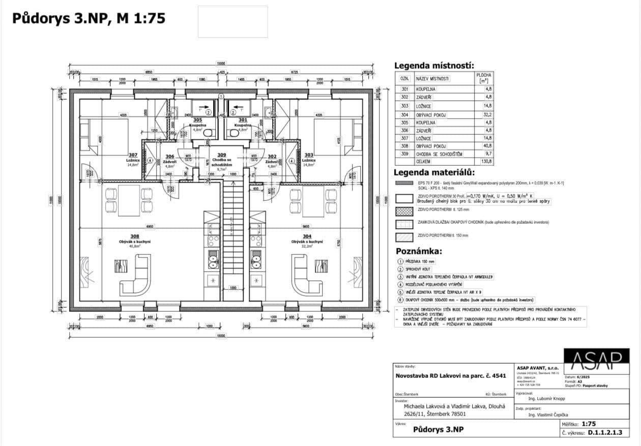
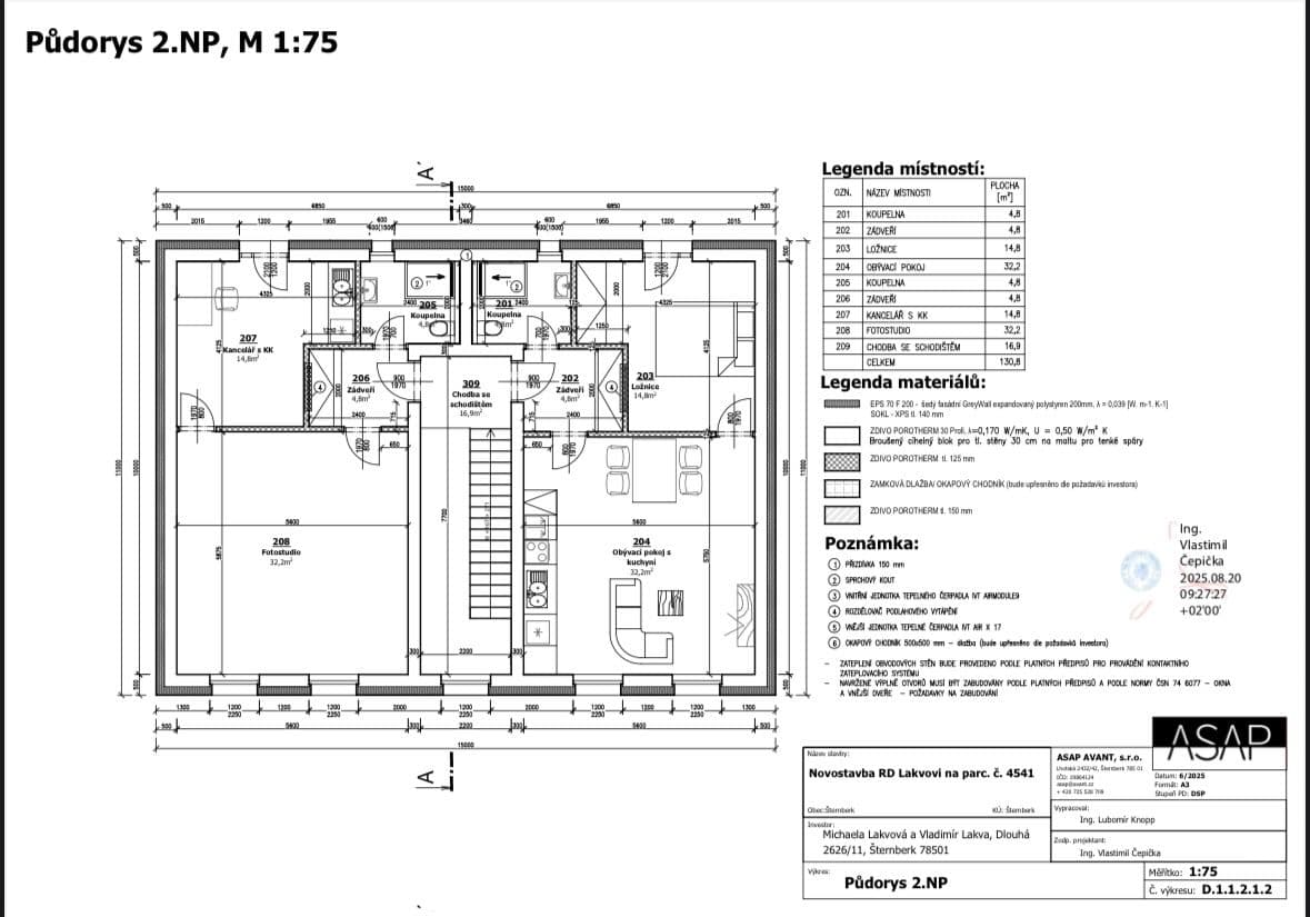
Nabízíme nové byty o výměře 67 m²+ sklepní kóje 10 m² v klidné lokalitě Hvězdné údolí s krásným výhledem na hrad a kostel.
Dům bude mít pouze 4 bytové jednotky.
Výhody a vybavení
• Podlahové vytápění + tepelné čerpadlo
• Fotovoltaika – nízké provozní náklady
• Okna s trojskly, příprava na elektrické žaluzie
• Keramická dlažba
• Interiérové dveře s obložkami
• Wallbox pro elektromobil
Předpokládané náklady: cca 3 000 Kč/měsíc
Cena
• Byt 3+kk (67 m²) + sklepní kóje: 5 500 000Kč
• Garážové stání: 400 000 Kč
• Celkem: 5 900 000 Kč
Parametre nehnuteľnosti
| Dostupné od | 30. 6. 2026 |
|---|---|
| Konštrukcia budovy | Tehla |
| Vybavené | Nevybavené |
| Prevedenie | Luxusné |
| Vlastníctvo | Osobné |
| Umiestnenie | Tichá lokalita |
| Cena za jednotku | 82 090 CZK / m2 |
| Stav | Novostavba |
|---|---|
| Dispozícia | 3+kk |
| Poschodie | 2. poschodie z 2 |
| Číslo inzerátu | 972674 |
| PENB | A - Mimoriadne úsporné |
| Úžitková plocha | 67 m² |
Čo táto nehnuteľnosť ponúka?
| Pivnica 10 m² | |
| Parkovanie |
| Garáž |
V okolí nehnuteľnosti nájdete
Vzdialenosť k:
Cena5 500 000 CZKUšetríte 400 000 CZK5 900 000 CZK
Stále hľadáte to pravé?
Nastavte si strážneho psa. Ponuky vybrané na mieru dostanete súhrnne 1× denne e-mailom. S Premium profilom máte po ruke rovno 5 strážcov a keď sa niečo objaví, informujú vás obratom.




