Predaj domu 6+1 • 135 m² bez realitkyBergedorf OT Neuallermöhe Neuallermöhe Hamburg 21035
Bergedorf OT Neuallermöhe Neuallermöhe Hamburg 21035MHD 1 minúta pešo • ParkovanieUdržiavaný radový dom postavený v roku 1996 ponúka s 135 m² obytného priestoru miesto pre veľkú rodinu. Disponuje šiestimi izbami, kúpeľňou, sprchovacou kúpeľňou, návštevným WC aj vstavanou kuchyňou.
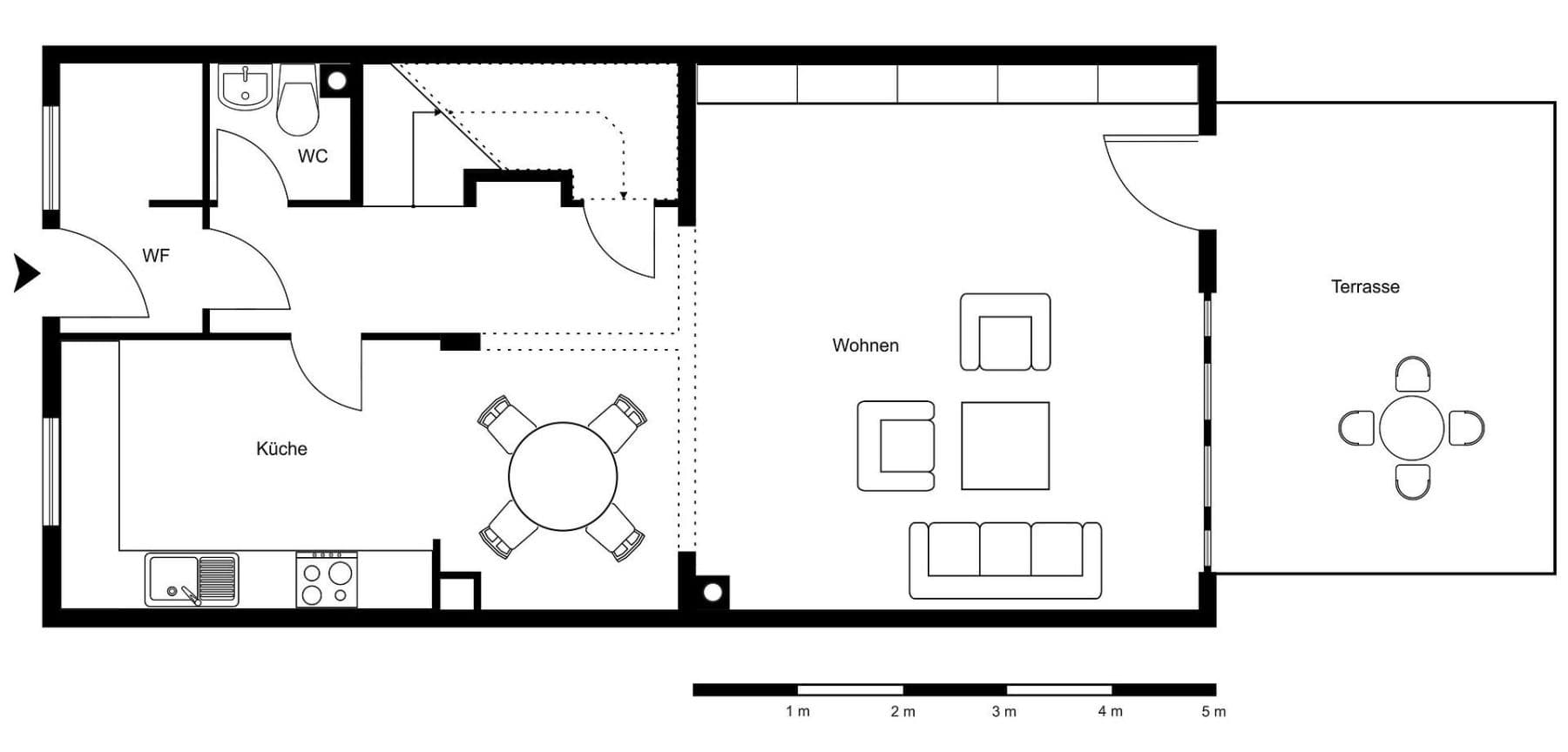
Je potrebné vyzdvihnúť priestranný obývací/jedálenský priestor s dubovým parketom vrátane podlahového kúrenia a susediacej otvorenej vstavanou kuchyňou. Krb s panoramatickým oknom poskytuje útulnú atmosféru. Podlahové okná vedú na terasu dlho dlaždenú prírodnými kameňmi a orientovanú na juhozápad, ktorá otvára výhľad do uzávieranej záhrady.
Priestor pod schodiskom je efektívne využitý prístupnou úložnou miestnosťou. Medzi vstupnými dverami a návštevným WC sa nachádza priestor s integrovanou predsieňou a policou na topánky.
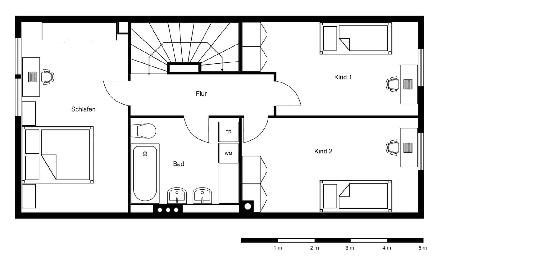
V hornom poschodí sa nachádzajú tri izby a svetlá, dlaždicovaná kúpeľňa s vaňou, dvojitým umývadlom a dostatočným priestorom pre práčku a sušičku.
Na podkroví sa nachádzajú dve izby so šikmými stenami a oknami v strešných kosároch, taktiež svetlá, dlaždicovaná sprchovacia kúpeľňa a kúrenárska miestnosť s oknom vo streche, ktorá je ideálna na vešanie bielizne.
Podkrovie ponúka veľa úložného priestoru a môže byť navyše prerobené z jednej z izieb na spálňu s vysokou posteľou.
Okrem toho sa pred domom nachádza parkovacie miesto pre automobil a box pre bicykle.
Radový dom sa nachádza v hamburskej štvrti Allermöhe v dopravne upokojenej hrebeňovej ulici. Detské ihriská a Allermöher See sú vzdialené približne 200 metrov. Okolie je charakteristické harmonickou zmesou malých obytných ulíc a priestranných zelených plôch. Desať minút pešo sa dostanete k stanici S-Bahn „Allermöhe“, z ktorej sa do hlavného nádražia dostanete za 15 minút, a v okolí premáva niekoľko autobusových liniek. Materské školy, základné školy, školský inštitút a gymnázium, ako aj možnosti bežného nákupu a lekári, sú pohodlne dostupné pešo.
Diaľnica A25 je vzdialená približne 3 minúty autom.
Na miestnu rekreáciu láka nedaleké jazero Allermöhe a niekoľko parkov a detských ihrísk. Vďaka oblastiam Vier- a Marschlanden a prírodnej rezervácii Boberger Dünen ponúkajú okolité trasy možnosti krásnych, rozľahlých cyklistických výletov.
* V prízemí: vstavaná kuchyňa, terakotové dlaždice v kuchyni a chodbe, dubový parket a podlahové kúrenie v obývačke, krb, návštevné WC
* V hornom poschodí: tri izby, kompletná kúpeľňa, korková podlaha
* Na podkroví: dve izby s kosárovými oknami, sprchovacia kúpeľňa, kúrenárska miestnosť, korková podlaha
* Drevené schody, konštrukcia – horné poschodie uzavreté, podkrovie otvorené
* Podkrovie
* Terasa, záhrada, parkovacie miesto, box na bicykle
Dom bol priebežne modernizovaný, pričom:
2018 bola kompletná rekonštrukcia sprchovacej kúpeľne a v kúpeľni bol inštalovaný nový dvojitý umývadlový pult s podstavcom.
2019 boli vymenené niektoré sklenené tabule, pričom drevená konštrukcia zostala zachovaná. V rámci týchto prác boli ošetrené a natreté vstupné dvere a všetky rámiky okien.
2020 bolo vykonané meranie tesnosti základových rozvodov a šácht.
2021 bola v obývačke inštalovaná podlahová kúrenie a podlaha bola vybavená dubovým parketom.
2022 bol namontovaný nový krb – Contura 596 – ktorý spĺňa predpísané emisné hodnoty.
2024 bol inštalovaný nový ohrievač teplej vody vrátane novej prípojky, čerpadla a nadtlakového ventilu.
2025 prebehlo pripojenie na optické vlákno.
Dom sa nachádza v udržiavanom stave s typickými stopami používania pre daný vek a je možné ho nadobudnúť po individuálnych maliarskych alebo tapetovacích prácach.
Parametre nehnuteľnosti
| Vek | Nad 50 rokov |
|---|---|
| Dispozícia | 6+1 |
| PENB | B - Veľmi úsporné |
| Plocha pozemku | 165 m² |
| Cena za jednotku | 3 919 € / m2 |
| Stav | Dobrý |
|---|---|
| Číslo inzerátu | 972590 |
| Úžitková plocha | 135 m² |
| Celkové poschodia | 3 |
Čo táto nehnuteľnosť ponúka?
| Parkovanie | |
| Terasa |
| MHD 1 minúta pešo |
V okolí nehnuteľnosti nájdete
Stále hľadáte to pravé?
Nastavte si strážneho psa. Ponuky vybrané na mieru dostanete súhrnne 1× denne e-mailom. S Premium profilom máte po ruke rovno 5 strážcov a keď sa niečo objaví, informujú vás obratom.


















