Prenájom nebytového priestoru • 76 m² bez realitkyWeiserstraße 28 Salzburg Schallmoos Salzburg 5020
Weiserstraße 28 Salzburg Schallmoos Salzburg 5020MHD 2 minúty pešoKvôli nadchádzajúcemu odchodu do dôchodku prenajímam od 1. septembra 2025
BEZ PROVÍZIE
svoje obchodné priestory v bezprostrednej blízkosti Salzburger Hlavného nádražia.
Obchodné priestory sa nachádzajú v prízemí obytného bloku s celkovo 42 bytmi a 3 ďalšími obchodnými priestormi.
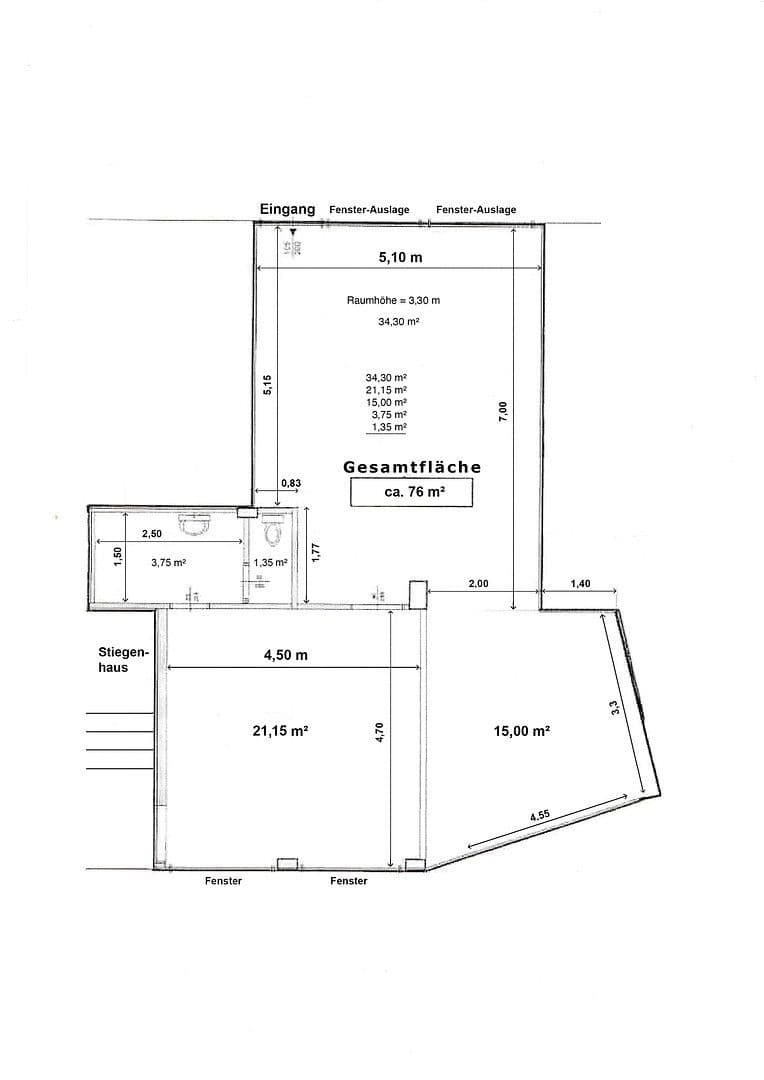
Celková obchodná plocha cca 76 m² je rozdelená na 3 miestnosti:
1. Predajňa (cca 50 m²)
a
2. Kancelária (cca 21 m²), tieto dve miestnosti sú oddelené len dočasnou stenou, ktorú je možné v prípade potreby odstrániť.
3. Sklad s prípojkou na vodu (resp. malá kuchyňa s rozlohou cca 5 m²) a WC (cca 1 m²)
Do obchodných priestorov vedú dve vstupné dvere: jedna zo strany ulice a druhá (ťažké bezpečnostné dvere) na zadnom dvore obytného bloku resp. v schodisku domu.
Aj sklad v obchodných priestoroch je oddelený od kancelárie bezpečnostnými dverami.
Všetky výkladné priestory, dve veľké okná do vnútorného dvora a vstupné dvere sú navyše chránené žaluziami.
Celý obchodný priestor bol pred niekoľkými rokmi nákladne celostrenovaný: boli obnovené všetky elektrické káble, zásuvky, vypínače, radiátory a dvere.
Podlaha bola obložená kameňovo-keramickými dlaždicami.
Obchodný priestor bol nedávno nanovo natretý.
Bol nainštalovaný kabelový alarmový systém (ktorý je technologicky zastaralý), ktorý stále funguje.
Ponúkané obchodné priestory sa výborne hodia aj ako kancelária.
Mesačný nájom činí 1.600,- EUR. Nájomca nesie aj prevádzkové náklady, ktoré momentálne predstavujú cca 378,- EUR vrátane DPH, pričom obchodné priestory v posledných rokoch neboli kúrené. Bezprostredne pod obchodom sa nachádza vykurovacia miestnosť celého obytného bloku, takže teplota v miestnostiach aj v zime klesá zriedka pod 19 °C.
P.S. Nevhodné pre gastronomický prevádzku.
Salzburg Schallmoos / Neustadt, v bezprostrednej blízkosti zadnej nástenky Salzburger hlavného nádražia, resp. cca 250 metrov od hlavného vchodu do HBF Salzburg.
Cca 60 metrov k autobusovým zastávkam v oboch smeroch.
Cca 100 metrov k 24-hodinovej policajnej stanici.
Parametre nehnuteľnosti
| Vek | Nad 50 rokov |
|---|---|
| Číslo inzerátu | 972584 |
| Cena za jednotku | 21 € / m2 |
| Stav | Po rekonštrukcii |
|---|---|
| Plocha nebytového priestoru | 76 m² |
Čo táto nehnuteľnosť ponúka?
| Bezbariérový prístup |
| MHD 2 minúty pešo |
V okolí nehnuteľnosti nájdete
Stále hľadáte to pravé?
Nastavte si strážneho psa. Ponuky vybrané na mieru dostanete súhrnne 1× denne e-mailom. S Premium profilom máte po ruke rovno 5 strážcov a keď sa niečo objaví, informujú vás obratom.























