Prenájom kancelárie • 202 m² bez realitkyBremen Hemelingen Bremen 28207
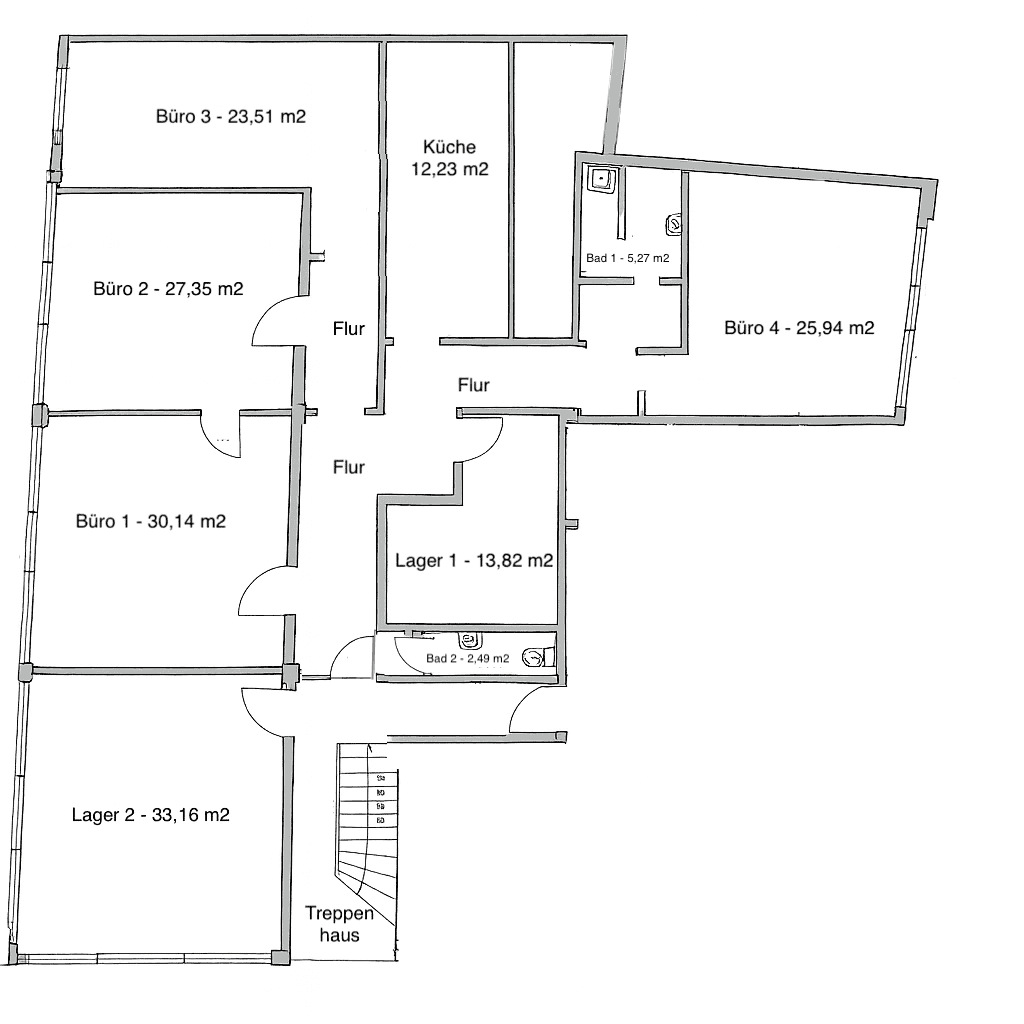
Bremen Hemelingen Bremen 28207MHD 3 minúty pešo • ParkovaniePonúkaná flexibilne využiteľná obchodná plocha má rozlohu 202 m² a je ideálna ako kancelárske alebo školiace priestory. Jednotka pozostáva zo štyroch dobre rozvrhnutých kancelárií, viacerých skladovacích priestorov, jedného priestoru s kuchynskými prípojkami, kúpeľne so sprchovacím kútom a samostatného zákazníckeho či hosťovského WC. Rozloženie priestorov ponúka funkčnú základňu, ktorá sa dá prispôsobiť rôznym konceptom využitia. Presný stav pri odovzdaní je možné individuálne dohodnúť s novým nájomcom.
Priestor sa nachádza v 1. nadzemnom podlaží nad momentálne prázdnou dielňou. Bývalá autodielňa s približne 326 m² využiteľnej plochy sa momentálne nepoužíva, čo zabezpečuje pokojné prostredie. V prípade potreby je možné túto plochu prenajať ako dodatočné výrobné, skladovacie alebo pracovné priestory.
Ďalšie kapacity zabezpečujú samostatne situované pivničné priestory, ktoré sú obzvlášť vhodné ako archívne alebo rozšírené skladovacie priestory.
Na pozemku sú k dispozícii minimálne štyri parkovacie miesta pre osobné automobily a/alebo garáže, čiastočne už vybavené nabíjacími stanicami pre elektromobily.
Lokalita v štvrti Bremen-Hastedt osloví svojou výbornou dopravnou dostupnosťou. Verejná mestská doprava, stanica Sebaldsbrück, centrum Bremenu aj diaľnica A1 sú rýchlo dostupné. Toto zabezpečuje jednoduchú dostupnosť pre zamestnancov, zákazníkov aj obchodných partnerov a robí z tejto plochy praktické, funkčné a dobre prepojené podnikové sídlo.
Plocha sa nachádza v žiadanej štvrti Bremen-Hastedt. Dopravné spojenie je vynikajúce: v bezprostrednej blízkosti prechádzajú električné linky číslo 2 a 10, ako aj autobusová linka číslo 25. Modernizovaná stanica Sebaldsbrück leží približne 200 metrov ďaleko, čo zabezpečuje rýchlu a pohodlnú dostupnosť zo všetkých smerov. Cez ulicu Stresemannstraße a pripojovací smer Hemelingen je navyše priamy prístup na diaľnicu A1, takže sú bez problémov dostupné aj ciele mimo regiónu.
Okolie ponúka živú zmes bývania, obchodu a služieb. V blízkosti sa nachádzajú možnosti na nákupy, gastronomia aj supermarket. Na prestávky alebo oddych po práci pozývajú Weserwehr a Pauliner Marsch na prechádzky alebo športové aktivity. Lokalita ideálne spája pracovný svet, urbanitu a oddych.
Ponúkané priestory sú vybavené moderným technickým štandardom a poskytujú ideálne podmienky pre rôznorodé využitie ako kancelárske alebo školiace priestory.
• Celková plocha cca 202 m²
• 4 kancelárie
• 1–2 skladovacie priestory. V prípade potreby dostupné aj dodatočné pivničné priestory
• Kúpeľňa so sprchovacím kútom a samostatné hosťovské/zákaznícke WC
• Moderná IT infraštruktúra
• Minimálne 4 garáže a/alebo parkovacie miesta, čiastočne vybavené E-nabíjacími stanicami
Detailné rozloženie priestorov nájdete v priloženom pôdoryse. Úpravy podľa individuálnych stavebných požiadaviek a stavu pri odovzdaní (napr. aj inštalácia kuchyne) sú samozrejme možné po dohode.
Parametre nehnuteľnosti
| Vek | Nad 50 rokov |
|---|---|
| Číslo inzerátu | 972569 |
| Cena za jednotku | 6 € / m2 |
| Poschodie | 1. poschodie |
|---|---|
| Plocha kancelárie | 202 m² |
Čo táto nehnuteľnosť ponúka?
| Parkovanie |
| MHD 3 minúty pešo |
V okolí nehnuteľnosti nájdete
Stále hľadáte to pravé?
Nastavte si strážneho psa. Ponuky vybrané na mieru dostanete súhrnne 1× denne e-mailom. S Premium profilom máte po ruke rovno 5 strážcov a keď sa niečo objaví, informujú vás obratom.












