
Prenájom bytu 3+1 • 91 m² bez realitkyBergstraße 9, , Bádensko-Wurttembersko
Bergstraße 9, , Bádensko-WurttemberskoMHD do minúty pešo • Výťah • GarážPonúkaný viacrodinný dom sa predstavuje ako moderný obytný komplex postavený z kvalitného betónu. Celkovo budova obsahuje 6 priestranných nájomných bytov, ktoré zaujmú svojimi svetlými konceptmi priestorov, čistými líniami a harmonickým pocitom z bývania.
K jednotlivým bytom patrí súkromná vonkajšia plocha v podobe balkóna alebo terasy, ktorá rozširuje obytný priestor do exteriéru a vytvára ideálne miesto pre oddychové chvíle v každodennom živote.
Podzemná garáž poskytuje obyvateľom chránené parkovacie miesta, doplnené o krátke a praktické prístupy do domu. Okrem toho má každá obytná jednotka vlastnú časť pivnice.
Pre cyklistov sú navyše k dispozícii ľahko prístupné stojany na bicykle, ktoré uľahčujú každodenný život a umožňujú rýchle a jednoduché využitie.
Dom vo Windenreute sa nachádza v idylickom a pokojnom prostredí, obklopenom miernymi kopcami a zelenými lesmi. Poloha ponúka malebný výhľad na okolitú prírodu a je ideálna pre milovníkov prírody hľadajúcich pokoj a oddych. Zároveň je výborné spojenie s nedalekým mestom Emmendingen, takže obchody, školy a ďalšie dôležité zariadenia sú rýchlo dostupné. Blízkosť turistických a cyklistických trás robí dom atraktívnym aj pre outdoorové aktivity. Windenreute je pôvabná dedina s priateľskou komunitou, čo z nej robí ideálne miesto na bývanie.
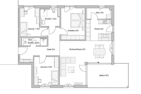
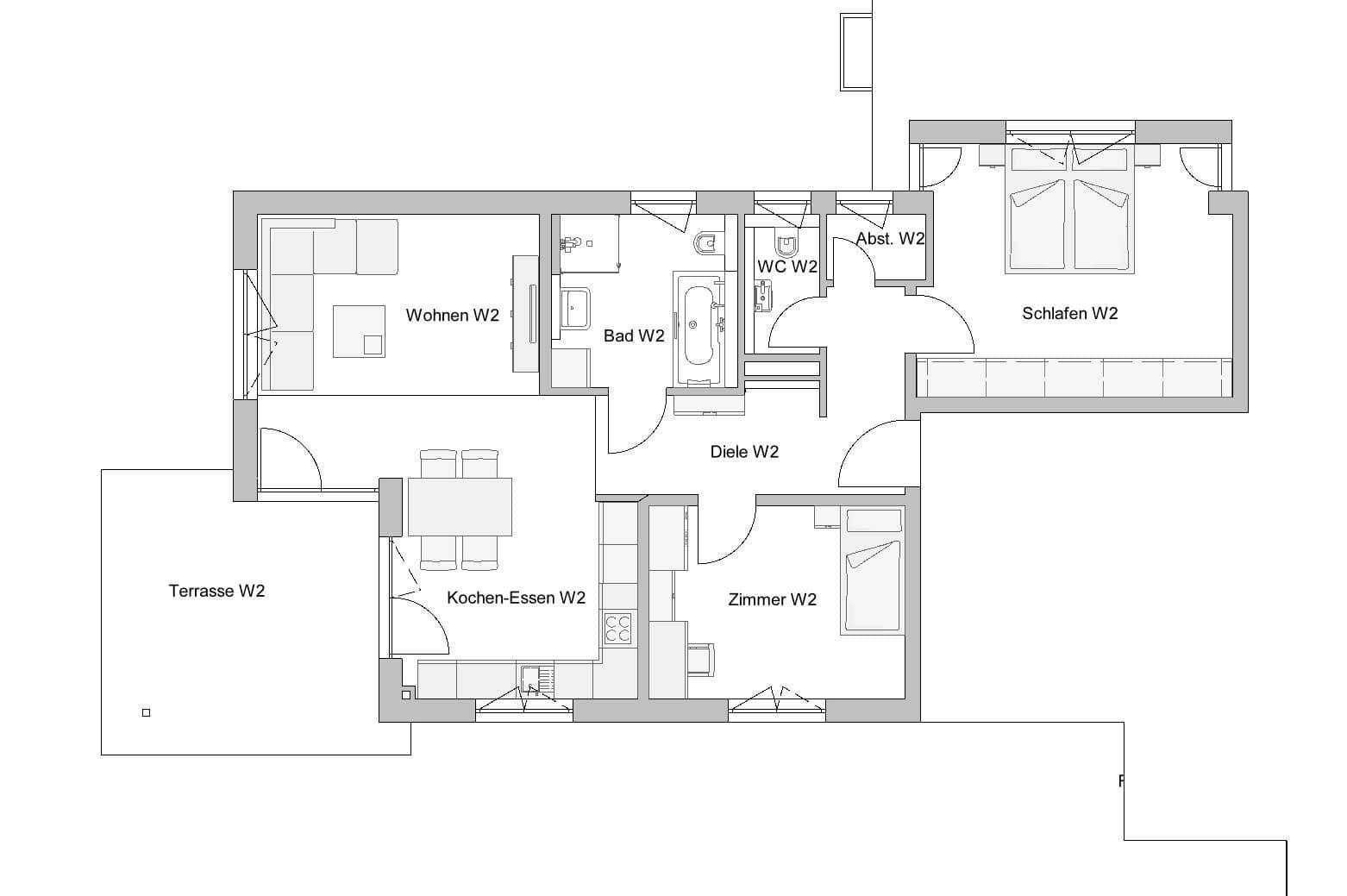
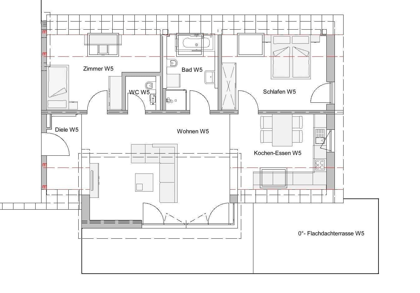
3-izbový byt v prízemí a v podkroví | W2 a W5 (podkrovie 105,03 m², 1838 €)
s terasou, pivničným priestorom, podzemným parkovacím miestom a miestom pre bicykel
Obytná plocha: 104,94 m²
Výbava:
• Kvalitná parketová a dlažebná podlaha
• Vstup cez schodisko alebo výťah
• Bezbariérové prístupové riešenie
• Podlahové kúrenie
• Radiátor ohrievajúci uteráky
• Moderné kúpeľne vybavené WC a sprchou
Nájom: 1 656,00 €
plus poplatky: 300,00 €
plus parkovacie miesto: 90,00 €
V prípade záujmu o byty prosím vyplňte sebavyhlásenie (prostredníctvom QR kódu v expozícii).
Parametre nehnuteľnosti
| Vek | Nad 50 rokov |
|---|---|
| Stav | Novostavba |
| Číslo inzerátu | 972517 |
| Úžitková plocha | 91 m² |
| Dostupné od | 15. 3. 2026 |
|---|---|
| Dispozícia | 3+1 |
| PENB | A - Mimoriadne úsporné |
| Cena za jednotku | 18 € / m2 |
Čo táto nehnuteľnosť ponúka?
| Balkón | |
| Výťah | |
| Terasa |
| Garáž | |
| MHD 0 minút pešo |
V okolí nehnuteľnosti nájdete
Stále hľadáte to pravé?
Nastavte si strážneho psa. Ponuky vybrané na mieru dostanete súhrnne 1× denne e-mailom. S Premium profilom máte po ruke rovno 5 strážcov a keď sa niečo objaví, informujú vás obratom.


