Prenájom nebytového priestoru • 1186 m² bez realitkyFalderbaumstraße 9 B Kassel Kassel Hessen 34123
Falderbaumstraße 9 B Kassel Kassel Hessen 34123MHD 1 minúta pešo++BEZ PROVÍZIE++ priamo od vlastníka / prenajímateľa
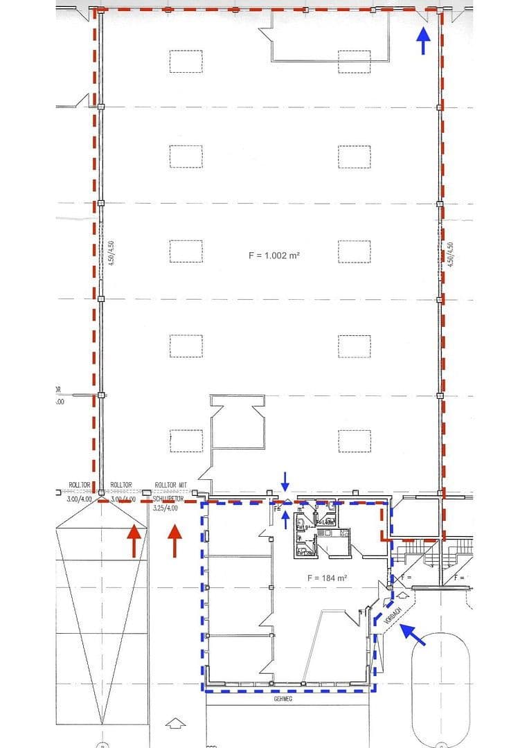
Na prenájom je k dispozícii kombinácia moderných halových a kancelárskych priestorov s rozlohou 1 186 m² v prízemí reprezentatívneho budovového komplexu.
++Haly cca 1 002 m²++
– S rampovým zariadením pre nákladné vozidlá a prístup na úrovni zeme
– Sekcionálne dvere
– Výška haly cca 7,5 m (pod okrajom strechy), cca 6,5 m (pod okrajom stropu)
– Hala s otvoreným priestorom bez rušivých podpôr alebo nosnej konštrukcie
– Priemyselná podlaha z betónu
– RWA / svetlotúky (vynikajúce využitie denného svetla)
– Osvetlenie haly
– Kúrené
– Pripojenia pre silný prúd a vodu
– Malá vnútorná kancelária v hale a WC v hale
– atď.
++Kancelárske priestory cca 184 m²++
– Elegantné a výhodné rozdelenie s samostatným vstupom
– 5 miestností plus veľká recepcia
– IT-/CAT káblovanie a káblové kanály v obvodových lištách
– Kobercová podlaha, zavesené stropy s integrovaným osvetlením
– Moderné okná s izoglaskom a vonkajšími žalúziami
– Dámske a pánske WC a samostatná čajovňa
– Priamy vstup do haly
– Pripojenie optickým vláknom na internet až 1 000 Mbit/s
– atď.
++Ostatné++
– Udržiavané pozemkové plochy
– Parkovacie miesta pre osobné vozidlá a vonkajšie skladovacie priestory – voliteľne k prenájmu
– Nabíjacie stanice pre elektromobily (Hyper Charger od roku 2026)
– Moderné pekáreň-café priamo oproti
– 24/7 správa objektu
– atď.
Dohodnite si termín obhliadky a nechajte si osobne predstaviť ďalšie detaily tejto zaujímavej nehnuteľnosti.
Priestory sú k dispozícii okamžite alebo po dohode.
Jednotlivý prenájom nie je možný.
Mesačné nájomné (netto)
Hala s kanceláriou cca 1 186 m² = 5 250 EUR
plus predplatné prevádzkových a vykurovacích nákladov
(vyúčtovanie ročne podľa BetrKV)
plus zákonná DPH 19 %
Kommerčná ponuka
Parkovacie miesto pre osobné vozidlo netto 15 EUR/kus
Vyúčtovanie nákladov na elektrinu prebieha priamo cez dodávateľa – Stadtwerke Kassel.
Nájomná kaucia 3 mesačné nájmy (napr. prevod na depozitný účet, ručenie)
Energetický certifikát podľa EnEV/GEG je k dispozícii a radi sa poskytne.
Komerčný prenájom.
PRENÁJM bez provízie priamo od vlastníka / prenajímateľa
Váš kontaktný partner
Alexander Alter
Telefón (05 61) 31 62 90-0
++BEZ PROVÍZIE++ priamo od vlastníka / prenajímateľa
Výborná a dopravne výhodná poloha v Kasseli – Priemyselný park Waldau, Falderbaumstraße 9 B.
Priemyselný park Waldau je vďaka svojej polohe a rozmanitosti veľmi žiadaný medzi podnikmi. Susedí priamo s diaľnicami A7, A44 a A49. Centrum Kassela dosiahnete za približne 5–10 minút autom. Okrem toho je objemná doprava verejnou dopravou zabezpečená – zastávka je priamo pri objekte. Na pozemku nájdete dobré parkovacie možnosti a verejné parkoviská pozdĺž ulice. Navyše, oproti sa nachádza veľmi obľúbená pekáreň-café "Mannamia".
PRENÁJM bez provízie priamo od vlastníka.
Váš kontaktný partner
Alexander Alter
Telefón (05 61) 31 62 90-0
--------------------------------------------------
Adresa:
Landgraf-Karl-Straße 19 A
34131 Kassel
Telefón: 0561 3162900
Fax: 0561 3162902
E-mail: info@leineweber-immobilien.de
Parametre nehnuteľnosti
| Vek | Nad 50 rokov |
|---|---|
| Číslo inzerátu | 972482 |
| Cena za jednotku | 4 € / m2 |
| Stav | Dobrý |
|---|---|
| Plocha nebytového priestoru | 1 186 m² |
Čo táto nehnuteľnosť ponúka?
| MHD 1 minúta pešo |
V okolí nehnuteľnosti nájdete
Stále hľadáte to pravé?
Nastavte si strážneho psa. Ponuky vybrané na mieru dostanete súhrnne 1× denne e-mailom. S Premium profilom máte po ruke rovno 5 strážcov a keď sa niečo objaví, informujú vás obratom.





























