Predaj bytu 5+1 • 98 m² bez realitkyAlpenstr. 21 Geretsried Gartenberg Bayern 82538
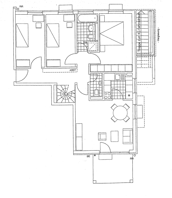
Alpenstr. 21 Geretsried Gartenberg Bayern 82538MHD 1 minúta pešo • Výťah • Parkovanie • GarážTento atraktívny 4-5 izbový byt sa nachádza v prízemí veľmi udržiavaného viacrodinného domu a ponúka ideálnu kombináciu priestoru, svetla a komfortu. Byt je vďaka svojej optimálnej orientácii preplavený množstvom denného svetla.
Veľká terasa a súvisiaca záhradná časť, ktorá sa nachádza k vnútornému dvoru, túto ponuku dopĺňa.
Byt v prízemí disponuje 83,5 m² s tromi dobre usporiadanými spálňami, ktoré ponúkajú rôzne možnosti využitia – ako spálňa, pracovňa alebo detská izba. Dodatočná izba v suteréne (spolu 27,7 m²), prístupná schodmi z bytu, ponúka možnosť využitia ako pokojná pracovňa alebo spálňa. Izba má dostatok denného svetla, primeranú výšku stropov a bola upravená na úroveň obývacieho priestoru. Navyše, cez posuvné dvere je prístupná ďalšia miestnosť, ktorá je momentálne využívaná ako úložný priestor – jej využitie ako prechádzacia šatníková miestnosť je taktiež možné.
Veľkorysá kúpeľňa má okno a je vybavená sprchou aj vaňou. Okrem toho je k dispozícii moderná návštevnícka záchodová miestnosť.
Prístup k tomuto výnimočnému bytu je možný rôznymi spôsobmi. Je možné sa dostať do bytu cez schodisko s výťahom, alebo zo suterénu napríklad cez podzemnú garáž. Tiež je možné bytu pristúpiť zo záhrady.
Byt je celkovo veľmi dobre rozvrhnutý a disponuje dostatkom svetla aj úložného priestoru. Nachádza sa na ulici Alpenstraße v Geretsried, pričom zastávka mestského autobusu je v bezprostrednej blízkosti.
Za pár minút chôdze sa dostanete buď do nádherných Isarauen, alebo do nového mestského centra, ktoré pokrýva všetky základné nákupné potreby. Základná škola, materské školy aj všetky stredné školy sú dostupné pešo. V bezprostrednej okolí sa nachádza aj plaváreň, hokejová hala a športové ihrisko.
Najbližšie väčšie mesto Wolfratshausen je ľahko dostupné autobusom alebo autom a ponúka spojenie S-Bahn do Mníchova.
Všetky podlahové krytiny boli obnovené v roku 2019. V obývacej izbe sa nachádza kvalitný parket (Parador), zatiaľ čo v spálňach je položený laminát (Haro). Chodby a kúpeľne sú jednotne obložené obkladom v anthracite farbe.
Všetky okná majú inštalované rolety.
V byte je zabudovaná kuchyňa so všetkými spotrebičmi, ktorá je zahrnutá v cene.
Drevená terasa bola v roku 2021 novostavbou z Bangkirai dreva a orámovaná kameňom. Taktiež je k dispozícii elektrická markýza, záhradný domček značky Keter a vyvýšená záhonová záhrada.
Pre práčku a sušičku je určená samostatná miestnosť v suteréne.
K dispozícii je parkovacie miesto v podzemnej garáži (nejde o duplex), ako aj vonkajšie parkovacie miesto priamo pred domovými dverami.
Udržiavaný komplex sa nachádza na priestrannom pozemku s množstvom zelených plôch a detským ihriskom.
Byt je predávaný súkromne a záujem maklérov nie je vítaný. Nástup do bytu je možný podľa individuálnej dohody.
K bytu patrí aj vonkajšie parkovacie miesto pre vozidlá a miesto v podzemnej garáži (nie duplex).
Celková cena vo výške 629 000 EUR sa skladá nasledovne:
• Byt – 115 m² obytného/použiteľného priestoru: 599 000 EUR
• Miesto v podzemnej garáži: 20 000 EUR
• Vonkajšie parkovacie miesto: 10 000 EUR
Parametre nehnuteľnosti
| Vek | Nad 50 rokov |
|---|---|
| Stav | Po rekonštrukcii |
| Číslo inzerátu | 972087 |
| Úžitková plocha | 98 m² |
| Dostupné od | 14. 12. 2025 |
|---|---|
| Dispozícia | 5+1 |
| PENB | C - Hospodárne |
| Cena za jednotku | 6 112 € / m2 |
Čo táto nehnuteľnosť ponúka?
| Bezbariérový prístup | |
| Garáž | |
| Parkovanie | |
| Terasa |
| Pivnica | |
| Výťah | |
| MHD 1 minúta pešo |
V okolí nehnuteľnosti nájdete
Stále hľadáte to pravé?
Nastavte si strážneho psa. Ponuky vybrané na mieru dostanete súhrnne 1× denne e-mailom. S Premium profilom máte po ruke rovno 5 strážcov a keď sa niečo objaví, informujú vás obratom.

















