
Prenájom bytu 2+1 • 55 m² bez realitkyRönnestraße 6 Berlin - Charlottenburg Charlottenburg Berlin 14057
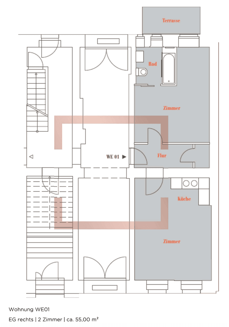
Rönnestraße 6 Berlin - Charlottenburg Charlottenburg Berlin 14057MHD 7minút pešoDie vor 3 Jahren grundsanierte Altbau-Terrassenwohnung verfügt über eine 5qm große Terrasse zum ruhigen, begrünten Innenhof, während das 25qm große Wohnzimmer mit offener Küche nach Südosten ausgesprochen hell gelegen ist. Beide Fenster sind über elektrische Fensterläden komplett zu verdunkeln.
Pred 3 rokmi kompletne zrekonštruovaný byt v staršom dome s terasou disponuje 5 m² terasou smerujúcou do tichého, zeleňou obklopeného vnútorného dvora, zatiaľ čo 25 m² obývacia izba s otvorenou kuchyňou má mimoriadne svetlú polohu na juhovýchod. Obe okná je možné elektrickými žalúziami úplne zatieniť.
Das Schlafzimmer bietet Zugang in den Garten und ist durch seine Nordwestlage wohl temperiert und gedämmt sowie ausgesprochen ruhig.
Spálňa ponúka vstup do záhrady a vďaka svojej severozápadnej polohe je príjemne klimatizovaná, dobre izolovaná a mimoriadne tichá.
Neben einem voll ausgestatteten Tageslicht-Badezimmer (inkl. Duschbad) verfügt die durchgängig mit neuem Eichen-Fischgrät-Parkett ausgestattete Wohnung über einen geräumigen Flurbereich und eine Abstellkammer.
Okrem plne vybavenej dennej kúpeľne (vrátane sprchy) má byt, ktorý je po celom dĺžke pokrytý novým dubovým parketom s rybí kostrou, priestranný predsál a úložnú miestnosť.
Ein besonderes Highlight ist die original Altbau-Verarbeitung, die Eingangstür, sowie Deckenstuck, Türen und Zargen.
Osobitým kúskom sú pôvodné prvky starostavby: originálne odpracovanie, vstupné dvere, ako aj stropný stuko, dvere a obloženie.
Eine Einbauküche kann mitgebracht werden, vom Vormieter gegen Abschlag übernommen werden oder nach Absprache vom Vermieter gegen Mietaufpreis gestellt werden.
Vstavaná kuchyňa môže byť prinesená, prevzatá od predchádzajúceho nájomcu so zľavou, alebo po dohode s prenajímateľom dodatočne poskytnutá za príplatok k nájomnému.
Die Wohnung befindet sich in einer der begehrtesten Ecken Charlottenburgs – lebendig, urban und dennoch angenehm entspannt. U-Bahn, S-Bahn und Regionalverkehr am Bahnhof Charlottenburg sind in wenigen Minuten erreichbar, ebenso zahlreiche Busverbindungen.
Byt sa nachádza v jednej z najžiadanejších častí Charlottenburgu – živý, mestský a napriek tomu príjemne uvoľnený. Metro, S-Bahn a prímestská doprava na stanici Charlottenburg sú dostupné za niekoľko minút, rovnako ako početné autobusové spoje.
Rund um den Stuttgarter Platz finden sich vielfältige Bistros mit Außengastronomie, Cafés, Restaurants, Boutiquen und sämtliche Geschäfte des täglichen Bedarfs. Zwei Einkaufszentren, mehrere Fitnessstudios, Ärzte, Buchhandlungen sowie Grün- und Parkanlagen liegen bequem im fußläufigen Umfeld.
V okolí Stuttgarter Platz nájdete pestrú ponuku bister so záhradnou terasou, kaviarne, reštaurácie, butiky a všetky obchody dennej potreby. Dva nákupné centrá, niekoľko fitness centier, lekári, kníhkupectvá a zelené plochy či parky sú ľahko dostupné pešo.
Anwohnerparkplätze befinden sich direkt vor dem Haus, die Anbindung an die Stadtautobahn ist ausgezeichnet.
Parkovacie miesta pre obyvateľov sa nachádzajú priamo pred budovou a spojenie s mestskou diaľnicou je vynikajúce.
Saniertes Altbau-Terrassengeschoss mit originalem Stuck, stilvollen Türanlagen und neuem Eichen-Fischgrätparkett. Modernes Tageslichtbad mit Duschwanne und hochwertiger Sanitärausstattung. Terrasse und angrenzender Garten gehören zur Wohnung und stehen zur exklusiven Nutzung zur Verfügung.
Rekonštruovaný byt v staršej budove s terasou ponúka originálny stuko, štýlové dverové systémy a nový dubový parket s rybí kostrou. Moderná denná kúpeľňa so sprchovou vaňou a kvalitným sanitárnym vybavením, terasa a prilehlá záhrada patria k bytu a sú určené na exkluzívne používanie.
Zur Wohnung gehören zudem ein 6-m²-Kellerraum sowie sichere Fahrradabstellmöglichkeiten im Hof und im Fahrradkeller.
K bytu patrí aj 6 m² kôlňový priestor a bezpečné možnosti uskladnenia bicyklov v areáli aj v cyklistickom skle.
Die aktuell eingebaute, moderne Küche kann nach Absprache übernommen werden.
Aktuálne inštalovaná moderná kuchyňa môže byť po dohode prevzatá.
Elektrogeräte:
– BOSCH Kühl-Gefrier-Kombination KGN39VICT (203×60 cm)
– BOSCH Einbaubackofen Serie 4 HBA334YB0 mit komfortablen Teleskopauszügen
– IKEA FINPUTSAD Geschirrspüler, 45 cm, Serie 700
– IKEA VÄLBILDAD Induktionskochfeld
Elektronické zariadenia:
– BOSCH kombinácia chladnička-mraziar KGN39VICT (203×60 cm)
– BOSCH vstavaná rúra séria 4 HBA334YB0 s komfortnými teleskopovými zásuvkami
– IKEA FINPUTSAD umývačka riadu, 45 cm, séria 700
– IKEA VÄLBILDAD indukčná varná doska
Küchenmöbel:
– IKEA-Küchensystem in mattem Schwarz mit hochwertigen Schubladenauszügen
– Oberschränke, Regale, Fronten und Beschläge im abgestimmten Design
Kuchynský nábytok:
– IKEA kuchynský systém v matnej čiernej farbe s vysoko kvalitnými zásuvkami
– Horné skrinky, police, čela a kovania v sladenej dizajnovanej súhre
Zusätzliches Mobiliar:
– Kücheninsel VADHOLMA (126×79×90 cm)
– Deckenleuchte
Ďalší nábytok:
– Kuchynský ostrov VADHOLMA (126×79×90 cm)
– Stropná lampa
Auf Wunsch ist die Kommunikation auch auf Englisch möglich.
Na požiadanie je komunikácia možná aj v angličtine.
Für die Bewerbung werden folgende Unterlagen benötigt:
* Mieterselbstauskunft (wird per E-Mail übermittelt)
* Ausweisdokument
* Einkommensnachweise der letzten drei Monate oder Arbeitsvertrag
* Mietfreiheitsbescheinigung des aktuellen Vermieters
Pre prihlášku sú potrebné nasledujúce dokumenty:
* Sebazjav nájomcu (bude odoslaný e-mailom)
* Doklad totožnosti
* Potvrdenia o príjme za posledné tri mesiace alebo pracovná zmluva
* Potvrdenie o bezplatnom bývaní od súčasného prenajímateľa
Parametre nehnuteľnosti
| Vek | Nad 50 rokov |
|---|---|
| Stav | Po rekonštrukcii |
| Číslo inzerátu | 971686 |
| Úžitková plocha | 55 m² |
| Dostupné od | 1. 2. 2026 |
|---|---|
| Dispozícia | 2+1 |
| PENB | C - Hospodárne |
| Cena za jednotku | 23 € / m2 |
Čo táto nehnuteľnosť ponúka?
| MHD 7 minút pešo |
| Terasa |
V okolí nehnuteľnosti nájdete
Stále hľadáte to pravé?
Nastavte si strážneho psa. Ponuky vybrané na mieru dostanete súhrnne 1× denne e-mailom. S Premium profilom máte po ruke rovno 5 strážcov a keď sa niečo objaví, informujú vás obratom.


















