Predaj domu 6+1 • 187 m² bez realitky, Porýnie-Falcko
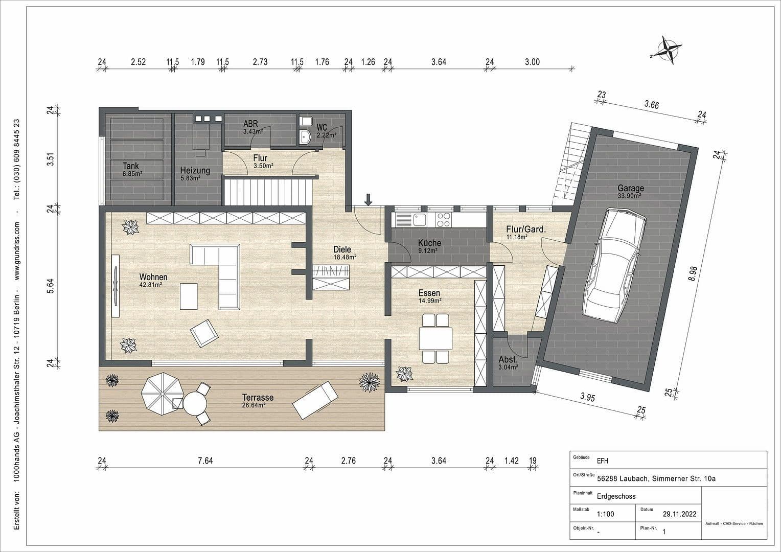
, Porýnie-FalckoMHD 1 minúta pešo • Parkovanie • GarážRodinný dom, postavený v roku 1975 v masívnej stavbe, ponúka veľa priestoru pre rodinu, prácu a koníčky. Nehnuteľnosť je ihneď k dispozícii: rozhodujete sa, či si chcete ihneď nasťahovať alebo ešte vykonať rekonštrukčné práce.
Špecifiká:
- veľa priestoru
- veľmi dobrý pôdorys
- záhrada a zelené plochy
- garáž s pracovným priestorom
- podkrovie s veľkou využiteľnou plochou
- strešná terasa
- terasa s letnou záhradou
- materská škôlka priamo v obci
- internetové pripojenie 50 MBit/s, od roku 2025 pomocou optických vlákien 1000 MBit/s
Doterajšie rekonštrukcie:
- 2015/2016: nová hydroizolácia strešnej terasy
- 2016: nové okná – veľká spálňa, jedáleň, kuchyňa a práčovňa
- 2016: výmena horáka olejového kúrenia z roku 1997
Laubach je idylická dedinka v srdci Porýnia-Falce, ležiaca medzi Kastellaun a Simmern. Dedinka ponúka pokojné a vidiecke prostredie, no zároveň je dobre prepojená s okolitými mestami. Okolie je charakterizované malebnou krajinou, turistickými chodníkmi a kultúrnymi pamiatkami. Laubach je ideálnym miestom pre ľudí, ktorí hľadajú pokojné prostredie, ale zároveň si chcú vychutnať výhody dobrej infraštruktúry.
Ide o súkromný predaj, poplatky makléra sa neuplatňujú. Pri kúpe vznikajú dodatočné náklady vo výške 7 % z kupnej ceny, rozdelené na daň z nadobudnutia nehnuteľnosti, notára a zápis do katastra.
Prosím, zanechajte svoje úplné kontaktné údaje. Prostredníctvom telefónu môžeme dohodnúť príslušné termíny obhliadky.
Meno, priezvisko:
Adresa:
Telefónne číslo:
Emailová adresa:
Parametre nehnuteľnosti
| Vek | Nad 50 rokov |
|---|---|
| Dispozícia | 6+1 |
| PENB | B - Veľmi úsporné |
| Plocha pozemku | 572 m² |
| Cena za jednotku | 856 € / m2 |
| Stav | Dobrý |
|---|---|
| Číslo inzerátu | 971558 |
| Úžitková plocha | 187 m² |
| Celkové poschodia | 2 |
Čo táto nehnuteľnosť ponúka?
| Garáž | |
| MHD 1 minúta pešo |
| Parkovanie | |
| Terasa |
V okolí nehnuteľnosti nájdete
Stále hľadáte to pravé?
Nastavte si strážneho psa. Ponuky vybrané na mieru dostanete súhrnne 1× denne e-mailom. S Premium profilom máte po ruke rovno 5 strážcov a keď sa niečo objaví, informujú vás obratom.











































