Predaj domu 7+1 • 212 m² bez realitky, Severné Porýnie - Westfálsko
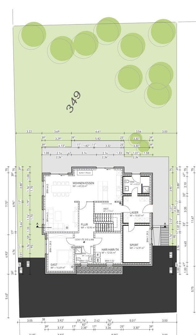
, Severné Porýnie - WestfálskoMHD 1 minúta pešo • Parkovanie • GarážTento vysoko kvalitný rodinný dom (dokončený v roku 2023, zmodernizovaný v roku 2024) zaujme modernou architektúrou, energeticky úspornou domácou technikou a premysleným rozložením priestorov. Na obytnom priestore približne 212 m² (plus skladové, domáce a garážové priestory spolu okolo 272 m²) ponúka nehnuteľnosť priestranné a komfortné bývanie pre celú rodinu.
Štýlové vybavenie zahŕňa okrem iného kvalitnú vstavanú kuchyňu, sedacie okno, videovrátniku, sieťky proti hmyzu na mnohých oknách a dverách, ako aj patch zásuvky vo všetkých obytných priestoroch pre bezproblémovú sieťovú infraštruktúru.
Nehnuteľnosť sa nachádza na konci úzkej ulice v pokojnej, bývalej letoviskovej osade, priamo pri Birgeler Urwald – obľúbenom prírodnom a turistickom území.
Tu bývate obklopení prírodou, vychutnávate si pokoj a súkromie, a napriek tomu do mesta Wassenberg so všetkými nákupnými možnosťami, školami a rekreačnými zariadeniami dosiahnete len za pár minút autom.
Lokalita kombinuje vidiecku idylku s mestskou blízkosťou – ideálna pre rodiny, milovníkov prírody a všetkých, ktorí chcú spojiť moderné bývanie s oddychom.
Dom bol postavený podľa štandardu KfW-Effizienzhaus-55 a disponuje tepelnočerpadlom na vzduch, podlahovým kúrením, fotovoltaickým systémom (13,92 kWp) s 10 kW batériovým úložiskom a optickým pripojením. Navyše, veľká garáž (35 m²) je vybavená ovládateľnou aplikáciou a kompatibilnou so systémom smarthome wallboxou pre elektromobilitu – ideálna pre energeticky efektívne, moderné a udržateľné bývanie.
Dom je tiež už vybavený mnohými prípravkami pre smarthome techniku:
• Zabudované skrinky pre elektrické rolety alebo riadenie smarthome
• Elektrické pripojenia v kúpeľni (napr. pre sprchové WC alebo kúrenie uterákov)
• Vysokovýkonové káble v záhrade – ideálne pre saunu alebo vírivku
• Prístrešok nad terasou, ktorý je možné premeniť na zimnú záhradu
Týmto nehnuteľnosť ponúka nielen najvyšší komfort bývania dnes, ale aj množstvo možností pre budúce rozšírenia.
K dispozícii od 01.08.2026, po konzultácii prípadne aj skôr.
Parametre nehnuteľnosti
| Vek | Nad 50 rokov |
|---|---|
| Dispozícia | 7+1 |
| PENB | A - Mimoriadne úsporné |
| Plocha pozemku | 736 m² |
| Cena za jednotku | 4 146 € / m2 |
| Stav | Veľmi dobrý |
|---|---|
| Číslo inzerátu | 971534 |
| Úžitková plocha | 212 m² |
| Celkové poschodia | 2 |
Čo táto nehnuteľnosť ponúka?
| Bezbariérový prístup | |
| Parkovanie | |
| Terasa |
| Garáž | |
| MHD 1 minúta pešo |
V okolí nehnuteľnosti nájdete
Stále hľadáte to pravé?
Nastavte si strážneho psa. Ponuky vybrané na mieru dostanete súhrnne 1× denne e-mailom. S Premium profilom máte po ruke rovno 5 strážcov a keď sa niečo objaví, informujú vás obratom.





















