Predaj bytu 1+1 • 33 m² bez realitkyBad Füssinger Str. 22, , Bavorsko
Bad Füssinger Str. 22, , BavorskoMHD do minúty pešo • GarážCena77 000 €
Preložené AI
V skvelej lokalite: Plne zariadený jednoizbový apartmán
Momentálne dobre prenajatý:
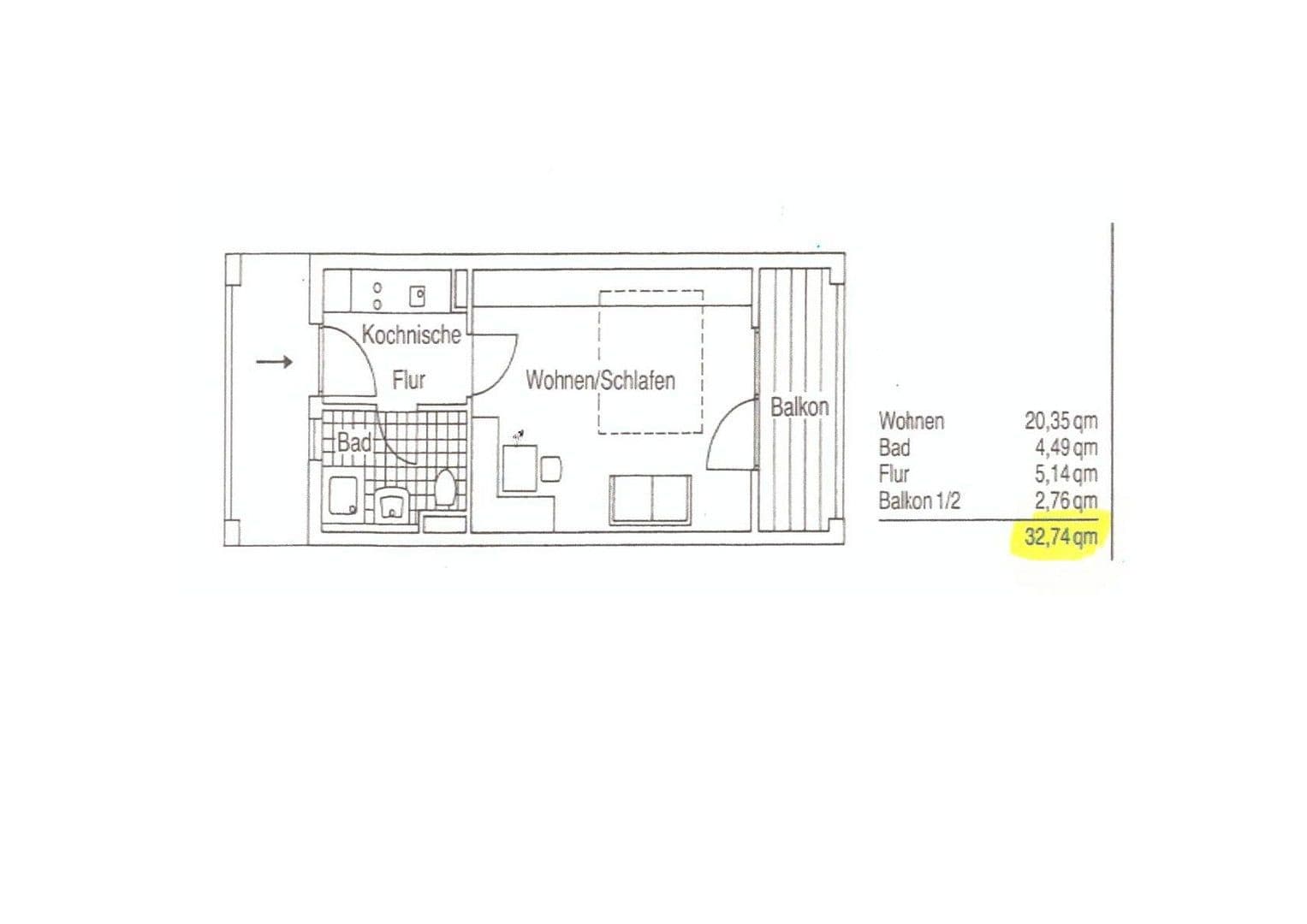
- Rok výstavby budovy: 1984
- Rozloha cca 32,74 m²
- Rok kúrenia: 1984
- Centrálny plynový ohrievač
- Rozdelenie: predsieň/kuchyňa, obývačka/spálňa/jedáleň, kúpeľňa, balkón
- Moderná vstavaná kuchyňa
- Celý inventár je zahrnutý v kúpnej cene
- Jednolôžkový skrinkový posteľ
- 1 malá úložná miestnosť na podkroví
- 1 miesto v podzemnej garáži
- 1 priestor na uskladnenie bicyklov a 1 práčovňa sú k dispozícii celej bytovej komunite
Parametre nehnuteľnosti
| Vek | Nad 50 rokov |
|---|---|
| Dispozícia | 1+1 |
| PENB | E - Nehospodárne |
| Cena za jednotku | 2 333 € / m2 |
| Stav | Dobrý |
|---|---|
| Číslo inzerátu | 971462 |
| Úžitková plocha | 33 m² |
Čo táto nehnuteľnosť ponúka?
| Garáž | |
| Terasa |
| MHD 0 minút pešo |
V okolí nehnuteľnosti nájdete
MHDKirchham, Haus Senator
🚶 1 m (0 min)
PoštaPost Edeka Jende
🚘 3 206 m (7 min)
ObchodEDEKA
🚶 729 m (9 min)
BankaRottaler Raiffeiseisenbank
🚘 918 m (1 min)
ReštauráciaZur Strudlwirtin
🚶 749 m (9 min)
LekáreňThermen Apotheke
🚘 4 053 m (8 min)
ŠkolaGrundschule Aigen am Inn
🚘 5 550 m (8 min)
Materská školaKatholischer Pfarrkindergarten und Kinderhort St. Christophorus
🚘 3 734 m (9 min)
ŠportoviskoModellflugplatz IfM Pocking
🚘 3 224 m (5 min)
Ihrisko
🚘 2 291 m (4 min)
Vzdialenosť k:
Cena77 000 €
Stále hľadáte to pravé?
Nastavte si strážneho psa. Ponuky vybrané na mieru dostanete súhrnne 1× denne e-mailom. S Premium profilom máte po ruke rovno 5 strážcov a keď sa niečo objaví, informujú vás obratom.













