Prenájom kancelárie • 105 m² bez realitkyHebbelstraße 24, , Šlezvicko-Holštajnsko
Hebbelstraße 24, , Šlezvicko-HolštajnskoMHD 1 minúta pešo • GarážStarostlivo udržiavaná obchodná plocha je okamžite k prenájmu. Objekt je ideálny ako kancelária, predajňa, poisťovacia agentúra, sklad, prax (napr. fyzioterapia, pedikúra, liečebná prax), poradňa, kozmetické alebo nechtové štúdio, ako aj pre podobné obchodné využitie. Priestory ponúkajú široké možnosti usporiadania v centrálnom umiestnení v Hohenlockstedt.
Vybavenie:
- 2 veľké, flexibilne využiteľné a deliteľné miestnosti
- K dispozícii pultová oblasť (môže byť individuálne prispôsobená)
- Sanitárie (pánske & dámske)
- Terasa s oddeleným vstupom
- Parkovacie možnosti v bezprostrednej blízkosti
Osobitosti:
- Ideálne vhodné pre kancelárske využitie, agentúru, štúdio, sklad alebo prax
- Možnosť individuálneho usporiadania a prispôsobenia priestorov obchodnej činnosti
- Dobrá viditeľnosť a centrálny prístup v Hohenlockstedt
- Udržiavaný vzhľad a príjemná atmosféra
- V prípade záujmu o dlhodobý prenájom je po dohode možná aj prestavba pre iné účely
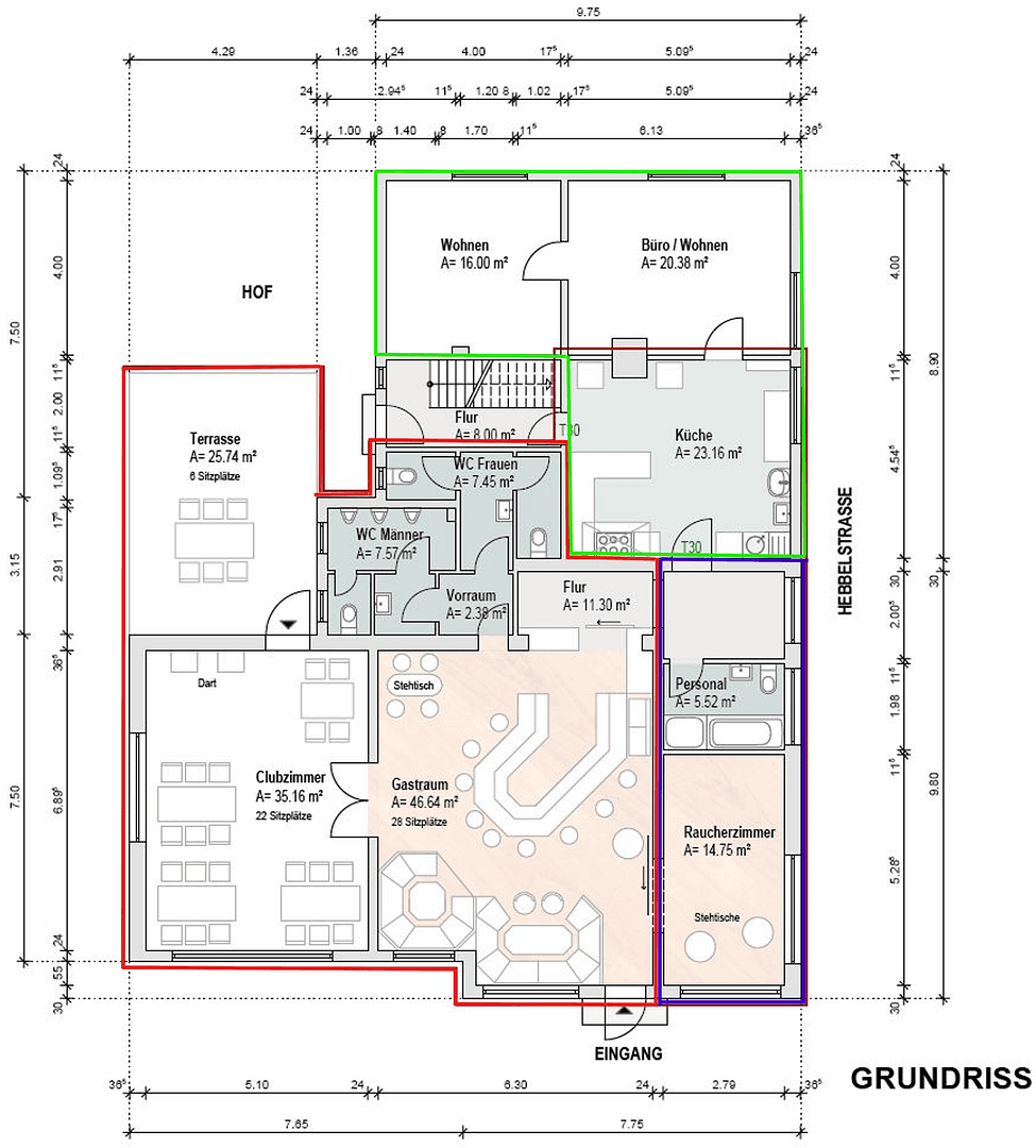
Rozdeľiteľné plochy od 105 m² do 190 m², pozri pôdorys (obrázok)
- Červená: cca 105 m²; 1150 eur netto; cca 450 eur prevádzkových nákladov (podľa dohody, využitia a spotreby)
- Modrá: cca 26 m²; 300 eur netto; cca 150 eur prevádzkových nákladov (podľa dohody, využitia a spotreby)
- Zelená: cca 60 m²; 650 eur netto; cca 250 eur prevádzkových nákladov (podľa dohody, využitia a spotreby)
Ak si prenajmete všetky plochy spolu, môžeme to individuálne dohodnúť.
Doba prenájmu:
Prenájom od okamihu dostupnosti, dlhodobé využitie po dohode.
Parametre nehnuteľnosti
| Vek | Nad 50 rokov |
|---|---|
| Stav | Dobrý |
| Plocha kancelárie | 105 m² |
| Dostupné od | 17. 12. 2025 |
|---|---|
| Číslo inzerátu | 971309 |
| Cena za jednotku | 11 € / m2 |
Čo táto nehnuteľnosť ponúka?
| Garáž | |
| Terasa |
| MHD 1 minúta pešo |
V okolí nehnuteľnosti nájdete
Stále hľadáte to pravé?
Nastavte si strážneho psa. Ponuky vybrané na mieru dostanete súhrnne 1× denne e-mailom. S Premium profilom máte po ruke rovno 5 strážcov a keď sa niečo objaví, informujú vás obratom.





