Prenájom kancelárie • 275 m² bez realitkyLandsberger Straße 187 München Laim Bayern 80687
Landsberger Straße 187 München Laim Bayern 80687MHD 1 minúta pešo • Výťah • ParkovanieVyužite túto jedinečnú príležitosť, umiestniť svoju spoločnosť na strategicky vynikajúcom mieste v Mníchove!
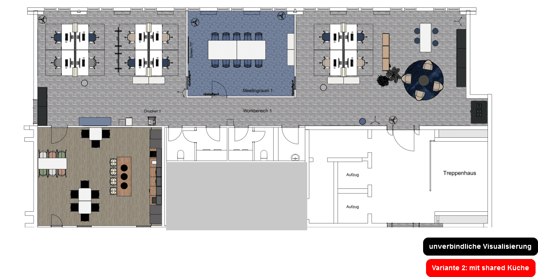
Na základe podnájmu ponúkame pôsobivo veľkorysý a rozsiahly čiastočný obchodný priestor s celkovou rozlohou približne 275 m². Priestor zaujme svojím otvoreným a flexibilným dizajnom, ktorý vám poskytne maximálnu slobodu pri naplňovaní vašich individuálnych potrieb.
Či už hľadáte moderné open-space kancelárie, reprezentatívny showroom alebo agentúru s kreatívnou slobodou – tu prakticky neexistujú hranice pre vaše nápady. Rozsiahlosť priestorov zabezpečuje produktívnu a príjemnú pracovnú atmosféru s dostatkom miesta pre váš tím, vašich zákazníkov aj váš rast.
Vynikajúca poloha kancelárie a infraštruktúra
Nehnuteľnosť sa nachádza vo vynikajúcej a etablovanej obchodnej lokalite na západnej strane Mníchova, v mestskej časti Laim (PSČ 80687). Ulica Landsberger patrí medzi najdôležitejšie a najfrekventovanejšie tepny bavorského hlavného mesta, čo zaručuje vysokú viditeľnosť a vynikajúcu dostupnosť.
Dopravná dostupnosť
Osobná doprava: Priama poloha pri ulici Landsberger zabezpečuje rýchle prepojenie na nadregionálnu cestnú sieť. Most Donnersberger a tým aj stredový okruh sú vzdialené len niekoľko minút jazdy. Podzemná garáž ponúka parkovacie miesta priamo v budove (ak sú k dispozícii).
Verejná doprava (MHD): Pripojenie na MHD je ideálne a zaručuje rýchle spojenie do centra mesta a ku hlavným dopravným uzlom:
– S-Bahn: Zastávka Laim alebo Donnersberger (podľa presnej polohy a preferencií) poskytujú prepojenie na rôzne S-Bahn linky.
– Tramvaj/Autobus: Viaceré linky tramvaje a autobusu premávajú v bezprostrednej blízkosti, čím je lokalita optimálne spojená.
Ako nové: Kancelárske priestory boli v roku 2025 čerstvo a kvalitne zrekonštruované.
Otvorený pracovný priestor: Moderný open-space koncept pre maximálnu flexibilitu a komunikáciu.
Možnosť využitia úplne novej kuchyne alebo inštalácie vlastného, menšieho kuchynského riešenia – výber je na vás!
Čisto nový, vysoko kvalitný kobercový podlahový kryt vo všetkých kancelárskych priestoroch.
Rozloženie priestorov: Svetlý, moderný zasadací priestor a pracovné zóny prepojené v open-space usporiadaní.
Ďalšia výhoda: Prevzatie ako nového stavu kancelárskeho zariadenia
Ušetríte si náročnú a drahú novú obstaranie! Existuje exkluzívna možnosť prevziať celú vysoko kvalitnú a ako novú kancelársku výbavu (zakúpenú v roku 2024) za férovú odkupnú sumu:
• Čistá ergonómia: Elektricky nastaviteľné pracovné stoly pre zdravé pracovné miesta.
• Komfort a dizajn: Špičkové kancelárske stoličky (ergonomicky optimalizované).
• Zasadací set: Elegantný zasadací nábytok s kvalitnými stoličkami (zo štýlového plstenného materiálu).
• Úložné priestory: Praktické a dizajnovo orientované sideboardy v celom open-space priestore.
Vaša výhoda: Okamžitý a bezproblémový nástup do plne vybavených a moderných kancelárií!
Poskytovateľ
Randstad Deutschland GmbH & Co. KG
Frankfurter Straße 100, 65760 Eschborn
Tel.: 06196 4080
Email: realestate@randstad.de
Registrový súd: AG Frankfurt am Main, HRA 30640
Komplementár: Randstad Deutschland GmbH, LG Wiener Neustadt, FN 433136 s
Pobočka: Eschborn, AG Frankfurt am Main, HRB 102380
Vedúci manažment: Hendrik Viswat (predseda), Dr. Sebastian Göbel, Susanne Wißfeld
DIČ: DE 123 047 934
Parametre nehnuteľnosti
| Vek | Nad 50 rokov |
|---|---|
| Poschodie | 3. poschodie |
| Plocha kancelárie | 275 m² |
| Stav | Veľmi dobrý |
|---|---|
| Číslo inzerátu | 971297 |
| Cena za jednotku | 23 € / m2 |
Čo táto nehnuteľnosť ponúka?
| Výťah | |
| MHD 1 minúta pešo |
| Parkovanie |
V okolí nehnuteľnosti nájdete
Stále hľadáte to pravé?
Nastavte si strážneho psa. Ponuky vybrané na mieru dostanete súhrnne 1× denne e-mailom. S Premium profilom máte po ruke rovno 5 strážcov a keď sa niečo objaví, informujú vás obratom.









