
Prenájom bytu 3+1 • 63 m² bez realitkyLinzer Straße 45 Dessau-Roßlau Dessau Brandenburg 06849
Linzer Straße 45 Dessau-Roßlau Dessau Brandenburg 06849MHD 4 minúty pešoByt bol čerstvo zrekonštruovaný. Všetko v byte je nové a moderné. Vďaka tomu je byt, hoci sa nachádza vo vyššom prízemí, veľmi svetlý. K bytu patrí aj sklep. Okrem toho má nájomník k dispozícii spoločnú miestnosť na sušenie bielizne. K dispozícii je aj veľká záhrada. Dom je vybavený najmodernejšou káblovou technikou. Zmluvy na toto zariadenie si môže nájomník upraviť podľa vlastných predstáv. Za domom sa nachádza zelená plocha, ktorá je vhodná na oddych. Parkovacie miesto pre Váš automobil je možné prenajať samostatne.
Byty sídlia hoci nie v centre, avšak všetko, čo človek potrebuje na každodenný život, je v blízkosti. Tiergarten a Mulde sú s bicyklom dosiahnuteľné za približne 10 minút. Najbližší supermarket je vzdialený len pár minút. Verejná doprava – električka, autobus aj S-Bahn – je dostupná takisto za niekoľko minút.
Byt má podlahu z PVC s tlmením kročajného hluku. Kúpeľňa s vaňou a oknom je kompletne obložená dlaždicami. V kuchyni je inštalovaný dlaždicový obklad nad pracovnou doskou. Kuchyňu si môžete zariadiť presne podľa vašich potrieb. Sú tam inštalované rozdeľovače nákladov na vykurovanie, merače teplej a studenej vody a dymové detektory.
Pre dohodnutie termínu obhliadky, prosím, kontaktujte pána Gottschalka. Teší sa, že Vám môže byt ukázať. Na prihlásenie do bytu budeme potrebovať od Vás vyplnenú nájomcovskú sebahodnotiacu príručku, ktorú si môžete stiahnuť v sekcii Dokumenty. Okrem toho potrebujeme nasledujúce dokumenty:
- Kópia občianskeho preukazu alebo pasu s potvrdením o trvalom pobyte
- Doklad o príjme
- Aktuálny výpis zo Schufy (môže byť získaný za poplatok prostredníctvom nás)
K otázkam ohľadom vhodnosti bytu pre spolubývajúcich, príspevku na kuchyňu alebo hotovostnej kaucii sa Vám radi ozveme telefonicky.
IMPRESSUM
Thomas Gottschalk
Správa nehnuteľností
--
v. S. Management GmbH
c/o Werder Frucht GmbH
Am Frucht- und Frachthof 6
14550 Groß Kreutz
Tel.: +49 33207/370-517
Fax: +49 33207/370-955
Mobil: +49 1511/9566-305
E-mail: T.Gottschalk@vsholding.de
Riaditelia: Gerrit van Schoonhoven, Waltraud van Schoonhoven
Sídlo: Potsdam
Okresný súd Potsdam HRB 24911 P
Daňové číslo: 046/121/07748
Tento email obsahuje dôverné a/alebo právne chránené informácie. Ak nie ste určeným príjemcom alebo ste tento email omylom obdržali, prosím, okamžite informujte odosielateľa a zničte tento email. Neoprávnené kopírovanie a/neoprávnené šírenie tohto emailu nie je dovolené.
Tento email môže obsahovať dôverné a/alebo privilegované informácie. Ak nie ste zamýšľaným príjemcom (alebo ste tento email obdržali omylom), okamžite informujte odosielateľa a zničte tento email. Akékoľvek neoprávnené kopírovanie, zverejňovanie alebo distribúcia obsahu tohto emailu je prísne zakázané.
Parametre nehnuteľnosti
| Vek | Nad 50 rokov |
|---|---|
| Stav | Po rekonštrukcii |
| Číslo inzerátu | 971257 |
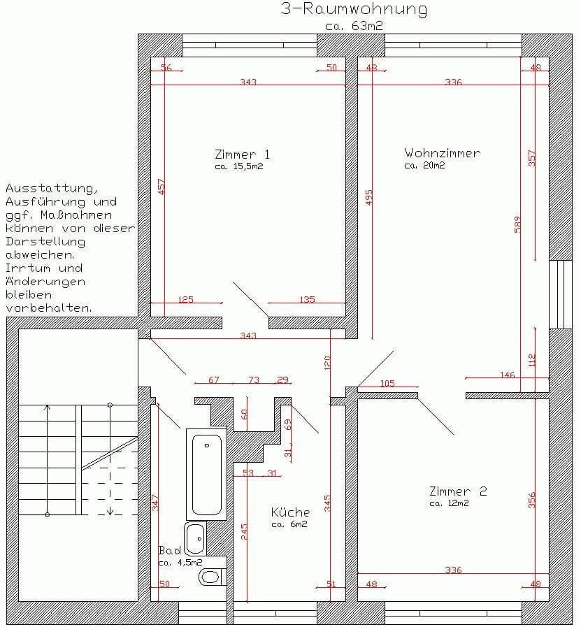
| Úžitková plocha | 63 m² |
| Dostupné od | 6. 12. 2025 |
|---|---|
| Dispozícia | 3+1 |
| PENB | C - Hospodárne |
| Cena za jednotku | 7 € / m2 |
Čo táto nehnuteľnosť ponúka?
| Pivnica |
| MHD 4 minúty pešo |
V okolí nehnuteľnosti nájdete
Stále hľadáte to pravé?
Nastavte si strážneho psa. Ponuky vybrané na mieru dostanete súhrnne 1× denne e-mailom. S Premium profilom máte po ruke rovno 5 strážcov a keď sa niečo objaví, informujú vás obratom.







