Predaj bytu 3+1 • 80 m² bez realitky, Severné Porýnie - Westfálsko
Bezprostredne na nastěhovanie 3-izbový byt s balkónom v Ahlen – bez provízie!
Tento čerstvo zrekonštruovaný a okamžite na nastěhovanie pripravený prízemný byt v udržiavanom rezidenčnom prostredí v Ahlen ponúka približne 80 m² obytného priestoru ako atraktívny domov – ideálny pre majiteľov bývania v pokojnej uličkovej lokalite.
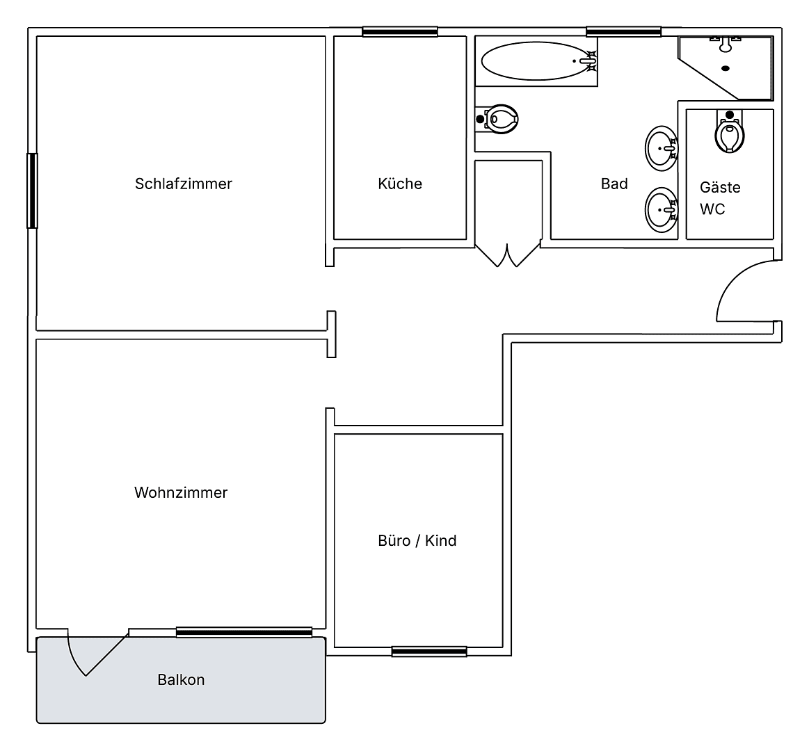
Byt zaujme premysleným pôdorysom, svetlým obývacím priestorom s prístupom na balkón, útulnou spálňou a samostatnou kuchyňou. Kúpeľňa je vybavená zavesenou toaletou, sprchou aj vaňou. Navyše je k dispozícii samostatná hosťovská toaleta. Všetky miestnosti boli čerstvo zrekonštruované – vstúpiť a cítiť sa príjemne je tu heslom.
Medzi ďalšie vybavenie patrí vlastný pivničný priestor.
Byt sa nachádza v tichom bytovom dome, prevažne obývanom majiteľmi bývania – príjemné susedstvo je zaručené.
Kúpna cena bytu: 219 900 € (bez provízie)
Hlavné výhody na prvý pohľad:
• Prízemný byt s približne 80 m² obytného priestoru
• Čerstvo zrekonštruovaný a okamžite na nastěhovanie pripravený
• Veľkorysý balkón
• Zahrnutá pivnica
• Udržiavaný vlastnícky dom v uličkovej lokalite
Neváhajte a dohodnite si obhliadku ešte dnes, aby ste sa osobne presvedčili o tomto šarmantnom bývacím sne!
Lokalita:
Nehnuteľnosť sa nachádza v pokojnej, centrálnej lokalite – ideálna pre bývanie s dobrou dostupnosťou a zároveň v relatívnej izolácii. Nákupné možnosti, verejná doprava, lekári a možnosti voľnočasových aktivít sú rýchlo dostupné.
Parametre nehnuteľnosti
| Vek | Nad 50 rokov |
|---|---|
| Dispozícia | 3+1 |
| Úžitková plocha | 80 m² |
| Stav | Po rekonštrukcii |
|---|---|
| Číslo inzerátu | 970991 |
| Cena za jednotku | 2 749 € / m2 |
Čo táto nehnuteľnosť ponúka?
| Balkón | |
| MHD 2 minúty pešo |
| Pivnica |
V okolí nehnuteľnosti nájdete
Stále hľadáte to pravé?
Nastavte si strážneho psa. Ponuky vybrané na mieru dostanete súhrnne 1× denne e-mailom. S Premium profilom máte po ruke rovno 5 strážcov a keď sa niečo objaví, informujú vás obratom.








