
Prenájom bytu 2+1 • 39 m² bez realitkyHenriette-Lustig-Str. 6 Berlin Köpenick Berlin 12555
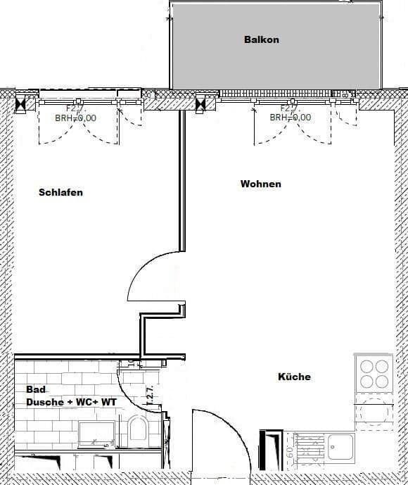
Tento atraktívny, vo výbornom stave udržiavaný 2-izbový byt na treťom poschodí sa vyznačuje vysoko kvalitným interiérovým vybavením a je k dispozícii na okamžité nasťahovanie. Priestranná obývacia izba s jedálenskou časťou a kuchynou, ktorá má prístup na balkón, tvorí srdce bytu. Tu si môžete oddýchnuť, variť a vychutnávať si nádherný výhľad na rieku Spree. Okrem toho svetlý byt s podlahovo až stropnými oknami dopĺňa spálňa a kúpeľňa s bezbariérovou sprchou.
Vybavenie na prvý pohľad:
- 1 priestranná obývacia izba s kuchyňou a balkónom
- 1 spálňa
- 1 kúpeľňa s toaletou, umývadlom a bezbariérovou sprchou
- 1 prípojka pre práčku na kúpeľni
- Trojnásobne zasklené okná
- Dizajnová podlaha so samostatne ovládateľným podlahovým kúrením
- Výťah
- Moderné domáce a elektroinštalačné vybavenie
Bytový a obchodný dom bol postavený až v roku 2020. Nachádza sa v centrálnom umiestnení, avšak zároveň medzi zeleňou a pri vode, ne ďaleko od historického centra Köpenicku. V bezprostrednej blízkosti sa nachádza niekoľko autobusových liniek, ako aj S-Bahn a električkové linky. Pešo sú dostupné aj možnosti nákupu a návštevy u lekárov, pričom v okolí nájdete aj rôzne zeleňové plochy a parky.
Presvedčte sa sami o jedinečnej lokalite a výnimočnom kúzle tohto bytu a dohodnite si ešte dnes prehliadku!
Parametre nehnuteľnosti
| Vek | Nad 50 rokov |
|---|---|
| Stav | Veľmi dobrý |
| Poschodie | 3. poschodie z 4 |
| PENB | B - Veľmi úsporné |
| Cena za jednotku | 15 € / m2 |
| Dostupné od | 1. 1. 2026 |
|---|---|
| Dispozícia | 2+1 |
| Číslo inzerátu | 970928 |
| Úžitková plocha | 39 m² |
Čo táto nehnuteľnosť ponúka?
| Balkón | |
| Výťah |
| Garáž | |
| MHD 6 minút pešo |
V okolí nehnuteľnosti nájdete
Stále hľadáte to pravé?
Nastavte si strážneho psa. Ponuky vybrané na mieru dostanete súhrnne 1× denne e-mailom. S Premium profilom máte po ruke rovno 5 strážcov a keď sa niečo objaví, informujú vás obratom.





