
Predaj domu • 227 m² bez realitkyTainger Straße 15f Pastetten Zeilern Bayern 85669
Dom je postavený v základe solídnej tehlicovej stavby. (Tehly Proton T8 36,5 cm s výplňou zo skalenej vlny).
Podzemnú podlahu pivnice izolovali pomocou 16 cm zatepleného Styroduru, rovnako ako vonkajšie steny pivnice.
Viditeľný konštrukcia strechy so zateplením medzi krokvami od firmy Bauder PIR ST, obojstranne hliníková, so spojom drážka–pero, WLS 0,24, hrúbka 160 mm, U-hodnota 0,14.
Murovaná garáž so strešnou konštrukciou a suchým prístupom k vchodovým dverám domu.
Srdcom tohto domu je svetlom naplnená zimná záhrada s obytným a jedálenským priestorom.
Kominový prípoj v obytnom a jedálenskom priestore pre pevné palivá v nerezovom prevedení.
Na hranici pozemku, na severozápadnej strane, sa nachádza 2 m vysoká gabionová múr.
Polodetoný rodinný dom sa nachádza v obci Pastetten, v mestskej časti Zeilern, v vidieckom zelenom prostredí.
Deťské zariadenia – škôlka, materská škôlka, základná škola, lekár, banka, mäsiar, pošta a spolky – sú v obci k dispozícii.
Viac informácií o obci Pastetten nájdete na http://www.pastetten.de/
Dopravné spojenie:
- 2 km k diaľnici A94
- 5 km do Markt Schwaben (S2, DB, autobus 505)
- 20 minút autom do okraja Mníchova
- 25 km na letisko
Kvalitné vzduchové/tepelná čerpadlo pre kúrenie alebo letné chladenie prostredníctvom podlahového kúrenia.
Podlahové kúrenie v celom dome vrátane hobby miestnosti.
Kvalitné dlaždice od V&B v prízemí a kúpeľniach.
V izbách je podlahové krytina – olejovaný dubový parket v štýle vidieckeho podlahového doskovania.
Kvalitná žulová podlaha na južnej terase, južnom balkóne a na severozápadnej strane domu.
Premena dvora na záhradu pre deti je možná.
Pri ďalších otázkach som Vám k dispozícii.
Prehliadky sú možné po dohode.
Predaj súkromnou osobou, bez provízie.
Prosím, žiadne dopyty od maklérov.
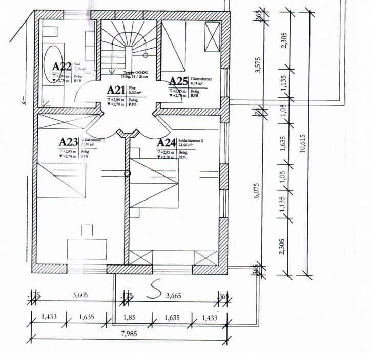
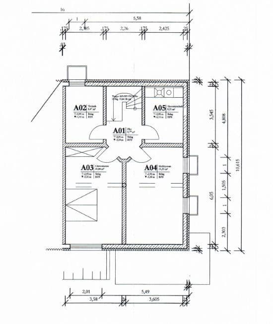
Parametre nehnuteľnosti
| Vek | Nad 50 rokov |
|---|---|
| Číslo inzerátu | 970664 |
| Úžitková plocha | 227 m² |
| Celkové poschodia | 4 |
| Stav | Novostavba |
|---|---|
| PENB | A - Mimoriadne úsporné |
| Plocha pozemku | 286 m² |
| Cena za jednotku | 4 399 € / m2 |
Čo táto nehnuteľnosť ponúka?
| Balkón | |
| Garáž | |
| MHD 1 minúta pešo |
| Pivnica | |
| Parkovanie | |
| Terasa |
V okolí nehnuteľnosti nájdete
Stále hľadáte to pravé?
Nastavte si strážneho psa. Ponuky vybrané na mieru dostanete súhrnne 1× denne e-mailom. S Premium profilom máte po ruke rovno 5 strážcov a keď sa niečo objaví, informujú vás obratom.





















