
Predaj pozemku • 20000 m² bez realitky, Sasko
Na predaj je komerčný pozemok v bezprostrednej blízkosti letiska Lipsk/Halle s celkovou rozlohou cca 20.000 m².
Pozemok je ideálny pre rôzne podnikateľské využitie a nachádza sa v rušnom prostredí s vynikajúcou dopravnou dostupnosťou.
K dispozícii je právoplatný územný plán (B-Plan), ktorý umožňuje rýchlu realizáciu vášho stavebného zámeru. Podľa stanov územného plánu je povolená výstavba s hrubou podlahovou plochou (BGF) cca 20.000 m². Povolený zastavanostný pomer (GRZ) je 0,8. Maximálna výška budov (najvyššieho bodu strechy) sa – v závislosti od konkrétnej koncepcie – pohybuje medzi 13 a 15 metrami.
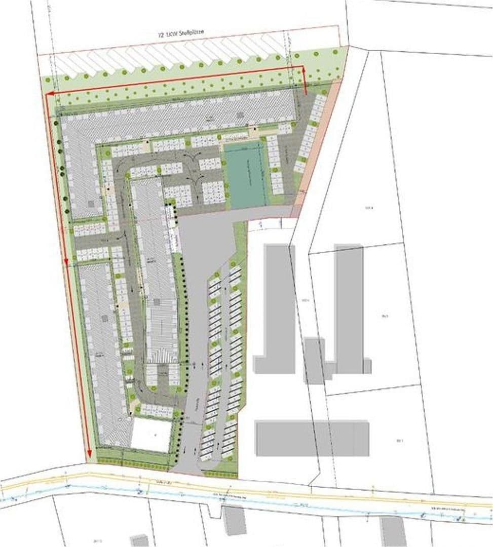
Poznámka: Priložené vizualizácie slúžia výlučne na ilustráciu možnej varianty výstavby, napríklad pre hotel alebo boardinghouse s parkovacími miestami pre nákladné aj osobné vozidlá. Nejedná sa o záväzné projektové riešenie.
Podľa § 8 ods. 1 BauNVO sú okrem iného povolené nasledujúce využitia:
– Podnikateľské prevádzky všetkých druhov
– Skladové haly a skladovacie priestory
– Obchodné, kancelárske a administratívne budovy
– Verejné prevádzky
– Čerpacie stanice a športové zariadenia
Predaj prebieha buď formou Share Deal alebo Asset Deal.
– Kúpna cena pri Share Deale: 75 € / m²
– Kúpna cena pri Asset Deale: 95 € / m²
Pre ďalšie informácie alebo na dohodnutie termínu obhliadky nás neváhajte kontaktovať.
Komerčný pozemok má veľmi výhodnú geografickú polohu – nachádza sa v blízkosti diaľničného uzla A9 Berlin – Mníchov / A14 Dresden-Magdeburg / A38 Lipsk-Göttingen, ako aj nového výstavbového areálu a celého priemyselného regiónu s BMW, Porsche, DHL a ďalšími. K tomuto prispieva aj vysoký počet štátnych ciest, a okrem toho aj pripojenie na vlakovú dopravu vrátane ICE a letiska Lipsk/Halle. Rozsiahla sieť mestskej a prímestskej dopravy spája Lipsk s okolitými obcami a mestami.
Pre všetky otázky alebo ďalšie informácie som vám k dispozícii. Môžete ma kontaktovať telefónom od pondelka do piatku medzi 9:00 a 18:00 hodinou. Ak vám vyhovuje aj iná forma komunikácie, pokojne mi pošlite správu cez WhatsApp. Moje číslo je 0163-5152057.
Prípadne mi môžete napísať e-mail na adresu: hildebrand@gpm.immobilien.
Ak chcete priamo komunikovať s majiteľom, napríklad ohľadom rokovaní o kúpnej cene, môžete priamo kontaktovať majiteľa pána Petra Jugla na telefónnom čísle 01709848571 alebo cez WhatsApp.
Impressum
GPM GmbH
Hafenstraße 12
04416 Markkleeberg
Telefón:
03 41 / 35 42 20 20
E-mail:
info@gpm.immobilien
Zastúpený osobou:
Peter Jugl
Zápis do obchodného registra:
Zaradený v obchodnom registri.
Registrový súd: Amtsgericht Leipzig
Registračné číslo: HRB 21518
Zodpovedná osoba za obsah (podľa § 55 ods. 2 RStV):
Peter Jugl
Parametre nehnuteľnosti
| Číslo inzerátu | 970296 |
|---|---|
| Cena za jednotku | 0 € / m2 |
| Plocha pozemku | 20 000 m² |
|---|
Čo táto nehnuteľnosť ponúka?
| MHD 1 minúta pešo |
V okolí nehnuteľnosti nájdete
Stále hľadáte to pravé?
Nastavte si strážneho psa. Ponuky vybrané na mieru dostanete súhrnne 1× denne e-mailom. S Premium profilom máte po ruke rovno 5 strážcov a keď sa niečo objaví, informujú vás obratom.



