
Prenájom kancelárie • 90 m² bez realitkyNeumarkt 41-43 Köln Innenstadt Nordrhein-Westfalen 50667
Neumarkt 41-43 Köln Innenstadt Nordrhein-Westfalen 50667MHD 1 minúta pešoHľadáme čo najskôr voľného nájomcu (alebo podnájomcu) pre našu vynikajúco situovanú kanceláriu priamo na Neumarkte, v srdci Kolína.
Približne 90 m² rozloha je optimálne prispôsobená pre malé tímy alebo živnostníkov a pri záujme bude aj kompletne zariadená, bez ďalších nákladov – môžete začať okamžite!
Vysoko atraktívna nájomná cena: Zabezpečte si toto prvotriedne umiestnenie za mimoriadne výhodných podmienok. Do 31.08.2027 je zahrnutá znížená nájomná cena podľa ponuky. Obráťte sa na nás ohľadom podrobností.
Bez provízie pre vás ako nájomcu: Ušetríte si maklérsky poplatok.
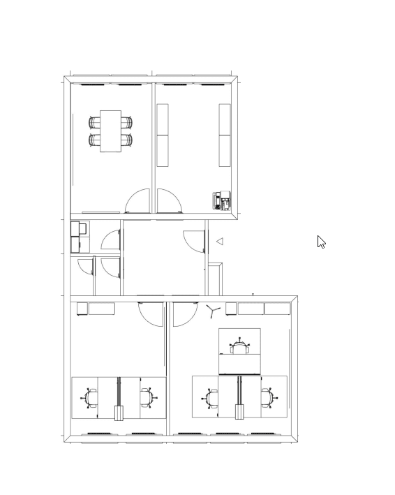
Rozloženie priestorov a vybavenie na prehľad:
• Až 4 samostatné, svetlé kancelárske miestnosti pre sústredenú prácu – alebo flexibilne využiteľné napr. ako 2 kancelárie, jedna zasedacia miestnosť a sklad/kopírňa pre vaše dokumenty a techniku.
• Kompletne vybavená kuchyňa.
• Príjemná chodba a samostatné WC (1 WC).
• Celoplošná, ľahko udržiavateľná kobercová podlaha.
Využite túto príležitosť na bezstresový a rýchly presun do reprezentatívnej kancelárie. Tešíme sa na vašu kontaktovanie!
Centrálna poloha priamo na kolínskom Neumarkte ponúka bezkonkurenčnú infraštruktúru a najlepšie prepojenie na MHD (KVB, metro a autobus).
Randstad Deutschland GmbH & Co. KG
Frankfurtská ulica 100
D-65760 Eschborn
Tel.: +49 6196 408 0
E-mail: presse@randstad.de
Súdny register: AG Frankfurt am Main, HRA 30640
Komplementár: Randstad Deutschland GmbH, LG Wiener Neustadt, FN 433136 s,
Pobočka: Eschborn, AG Frankfurt am Main, HRB 102380
Riadenie: Hendrik Viswat (predseda), Dr. Sebastian Göbel, Susanne Wißfeld
IČ DPH: DE 123 047 934
Parametre nehnuteľnosti
| Vek | Nad 50 rokov |
|---|---|
| Stav | Dobrý |
| Plocha kancelárie | 90 m² |
| Dostupné od | 15. 12. 2025 |
|---|---|
| Číslo inzerátu | 969993 |
| Cena za jednotku | 12 € / m2 |
Čo táto nehnuteľnosť ponúka?
| MHD 1 minúta pešo |
V okolí nehnuteľnosti nájdete
Stále hľadáte to pravé?
Nastavte si strážneho psa. Ponuky vybrané na mieru dostanete súhrnne 1× denne e-mailom. S Premium profilom máte po ruke rovno 5 strážcov a keď sa niečo objaví, informujú vás obratom.












