
Prenájom bytu 2+1 • 78 m² bez realitkyHauptstraße 128, , Bavorsko
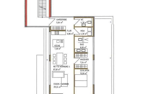
Hauptstraße 128, , BavorskoMHD 2 minúty pešo • Výťah • ParkovaniePri tejto nehnuteľnosti ide o byt v 3. poschodí, ktorý zaujme vďaka svojej kvalitnej interiérovej výbave a je pripravený na nastěhovanie. Okrem dvoch príjemných izieb patrí k nemu aj kúpeľňa a samostatné hosťovské WC. Nehnuteľnosť je bezbariérová a pohodlne dostupná pomocou výťahu. Disponuje tromi balkónmi. K bytu patrí aj parkovacie miesto, pričom v prípade potreby je možné doňačkať ďalšie parkovacie miesta.
Lokalita nehnuteľnosti je v Leidersbachu. V blízkosti premáva autobusová linka č. 62, ktorá zabezpečuje mobilitu. V pešej vzdialenosti sa nachádzajú dve pekárne, dve reštaurácie a lekár. Takisto je v pešej vzdialenosti niekoľko módnych obchodov, poštová schránka, obchod s obuvou a lekáreň. O niečo ďalej nájdete viacero nákupných možností a materské školy. V širšom okolí sú tiež k dispozícii niektoré múzeá a rôzne možnosti oddychu (okrem iného zelená a parková oblasť).
Sprcha, podlahové kúrenie, vstavaná kuchyňa, výťah, parkovacie miesto, posuvné okná od podlahy, 3 balkóny, úložný priestor, novostavba, prvé nasťahovanie, hosťovské WC.
Parametre nehnuteľnosti
| Vek | Nad 50 rokov |
|---|---|
| Stav | Novostavba |
| Poschodie | 3. poschodie z 3 |
| PENB | A - Mimoriadne úsporné |
| Cena za jednotku | 13 € / m2 |
| Dostupné od | 5. 12. 2025 |
|---|---|
| Dispozícia | 2+1 |
| Číslo inzerátu | 969700 |
| Úžitková plocha | 78 m² |
Čo táto nehnuteľnosť ponúka?
| Balkón | |
| Výťah | |
| MHD 2 minúty pešo |
| Bezbariérový prístup | |
| Parkovanie |
V okolí nehnuteľnosti nájdete
Stále hľadáte to pravé?
Nastavte si strážneho psa. Ponuky vybrané na mieru dostanete súhrnne 1× denne e-mailom. S Premium profilom máte po ruke rovno 5 strážcov a keď sa niečo objaví, informujú vás obratom.



















