Prenájom bytu 5+1 • 218 m² bez realitkyBerthastraße 6 Bochum Nordrhein-Westfalen 44793
Berthastraße 6 Bochum Nordrhein-Westfalen 44793MHD 6minút pešo • Parkovanie • GarážPrenajíma sa exkluzívny, priestranný a čerstvo zrekonštruovaný byt v 1. nadzemnom podlaží reprezentatívneho a samostatného obytného a obchodného domu v Bochum-Hordel.
Prvý nájom po rekonštrukcii. V roku 2025 boli vymenené všetky okná, parketová podlaha bola prebrúsená a olejovaná, elektrika bola obmenená a steny aj stropy boli prefarbené. Okrem toho bola fasáda novo prefarbená.
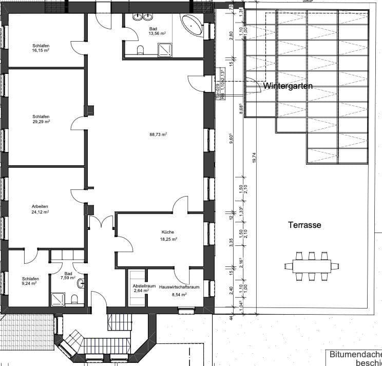
Všetky miestnosti bytu sa nachádzajú na jednej úrovni (1. nadzemné podlažie):
• Chodba
• Kúpeľňa so sprchou
• Spálňa
• Izba dieťaťa 1 / pracovňa
• Izba dieťaťa 2
• Rodičovská spálňa
• Kúpeľňa s vaňou, rohovou vaňou a bezbariérovou sprchou
• Veľký obývací priestor
• Kuchyňa
• Hospodárska miestnosť
• Strešná terasa
• Zimná záhrada
• Priestranná úložná miestnosť (namiesto pivnice)
Zimná záhrada, strešná terasa a úložná miestnosť nie sú započítané do uvádzanej pôdorysnej plochy.
Miestnosti „Izba dieťaťa 1 / pracovňa“, „Spálňa“ a „Kúpeľňa so sprchou“ je možné využívať aj ako samostatný byt, napríklad pre au-pair alebo podobne.
V kuchyni je inštalovaná vysoko kvalitná vstavaná kuchyňa značky Gaggenau (s približným nástupom okolo 30 rokov). Túto možno pri sťahovaní prevziať bezplatne, prípadne ju prenajímateľ odstráni.
Dvojgaráž je voliteľne možná na prenájom (100 EUR).
V prízemí sa nachádza fyzioterapeutické centrum a materská škola (obidve s vlastným vchodom).
Údržba vonkajšieho priestoru a zimná údržba (zimná služba) je zverená externému dodávateľovi.
Samostatne stojaci obytný a obchodný dom sa nachádza v zelenej oblasti na konci ulice Berthastraße, v bezprostrednej blízkosti Zeche Hannover. Zo všetkých strán ho obklopujú stromy. Park „Herne Park“ začína priamo pri vchode do domu.
Autobusová zastávka je vzdialená 500 m a dovezie vás priamo do centra Bochumu.
Automobilom za pár minút dorazíte na diaľnice A40, A448 a ku všetkým nákupným príležitostiam v prilehlých častiach mesta.
• Vysoko kvalitné podlahy (pravé parkety a mramor)
• Všetky okná nové od roku 2025
• Veľká rohová vaňa a bezbariérová sprcha v hlavnej kúpeľni
• Veľká strešná terasa
• Veľká zimná záhrada
• Veľká úložná miestnosť (namiesto pivnice) na rovnakej úrovni
• Dvojgaráž na prenájom (100 EUR)
Parametre nehnuteľnosti
| Vek | Nad 50 rokov |
|---|---|
| Stav | Po rekonštrukcii |
| Poschodie | Prízemie |
| PENB | A - Mimoriadne úsporné |
| Cena za jednotku | 9 € / m2 |
| Dostupné od | 5. 12. 2025 |
|---|---|
| Dispozícia | 5+1 |
| Číslo inzerátu | 969673 |
| Úžitková plocha | 218 m² |
Čo táto nehnuteľnosť ponúka?
| Garáž | |
| MHD 6 minút pešo |
| Parkovanie |
V okolí nehnuteľnosti nájdete
Stále hľadáte to pravé?
Nastavte si strážneho psa. Ponuky vybrané na mieru dostanete súhrnne 1× denne e-mailom. S Premium profilom máte po ruke rovno 5 strážcov a keď sa niečo objaví, informujú vás obratom.



















