Predaj domu 6+1 • 195 m² bez realitkyIlenwisch 24 Hamburg Sasel Hamburg 22393
Ilenwisch 24 Hamburg Sasel Hamburg 22393MHD 3 minúty autom • Parkovanie • GarážUnikát – postavený v roku 1951 v masívnej stavbe z červenej tehly, v rokoch 1986/1987 starostlivo prestavaný a rozšírený architektom. V rokoch 2005 a 2024 zmodernizovaný. Dom disponuje jedinečnou atmosférou a veľmi kvalitným vybavením – izolačne zasklené drevené okná s krídlami – väčšinou od podlahy vonku v antracitovej farbe a vo vnútri biele, podlahové kúrenie, úplne disponuje suterénom so dvojgarážou a vonkajším parkovacím miestom.
Objekt sa nachádza v absolútne pokojnej lokalite v Saselu, neďaleko hranice s Volksdorfom, v slepej uličke, osídlený rodinnými domami na priestranných pozemkoch a v príjemnom okolí. Veľmi dobré nákupné možnosti a týždenné trhy v Saselu a Volksdorf, množstvo škôl, metro, autobusy a prírodné rezervácie v bezprostrednej blízkosti.
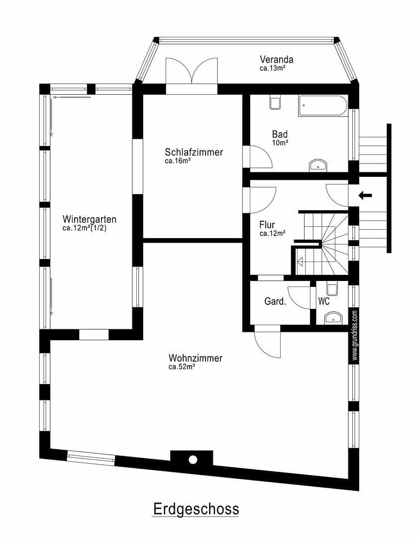
Vstup do vyššieho parteru s predsieňou a WC pre hostí vedie do svetlého obývacieho, jedálenského a kuchynského priestoru – tu je zakázkovo vyrobená vstavaná kuchyňa s prírodnou kameňovou doskou, technické zariadenia renomovaných výrobcov, otvorený krb z travertínu a prístup do priestrannej zimnej záhrady. Na tejto úrovni sa nachádza spálňa s vlastnou kúpeľňou en suite a záhrada (veranda) orientovaná na západ.
V hornom poschodí sú dve svetlé izby, z ktorých jedna má vlastnú kúpeľňu so sprchovacím kútom a prístup na západný balkon. Prostredníctvom samostatnej prezývacej miestnosti sa otvára hlavný spálňový priestor – tu sa nachádza ďalší krb, kúpeľňa en suite a prístup na južný balkón.
V suteréne, okrem práčovne, je k dispozícii hobby miestnosť, niekoľko úložných priestorov a technická vrátane kúrenárskej miestnosti. Tieto priestory vedú k prístupu do garáže. Energetický preukaz je vybavovaný a bude predložený pri obhliadke.
Pozemok: pekne a priestranne orientovaný na juhozápad, láskivo upravený záhradníckymi úpravami.
Parametre nehnuteľnosti
| Vek | Nad 50 rokov |
|---|---|
| Dispozícia | 6+1 |
| Úžitková plocha | 195 m² |
| Celkové poschodia | 2 |
| Stav | Dobrý |
|---|---|
| Číslo inzerátu | 969319 |
| Plocha pozemku | 1 487 m² |
| Cena za jednotku | 8 179 € / m2 |
Čo táto nehnuteľnosť ponúka?
| Balkón | |
| Garáž | |
| MHD 3 minúty autom |
| Pivnica | |
| Parkovanie |
V okolí nehnuteľnosti nájdete
Stále hľadáte to pravé?
Nastavte si strážneho psa. Ponuky vybrané na mieru dostanete súhrnne 1× denne e-mailom. S Premium profilom máte po ruke rovno 5 strážcov a keď sa niečo objaví, informujú vás obratom.












