
Prenájom bytu 3+1 • 94 m² bez realitkyNürnberg Eibach Bayern 90451
Nürnberg Eibach Bayern 90451MHD 2 minúty pešoPriestranný, svetlý 3-izbový byt s približne 94 m² obytného priestoru sa nachádza v 1. poschodí rekonštruovaného viacrodinného domu.
Byt bol v roku 2014 rozsiahlo zmodernizovaný a prezentuje sa vo veľmi udržiavanom stave. Pred nasťahovaním budú všetky steny čerstvo natreté. Vďaka vysokým, trojnásobne zaskleným oknám a parketovej podlahe zo skutočného dreva vzniká mimoriadne príjemná obytná atmosféra. Dva balkóny (orientácia na juh a západ) pozývajú na oddych; prístup je pohodlne možný cez obývaciu izbu.
Kúpateľská kúpeľňa s dostatkom denného svetla je vybavená vaňou aj sprchou. Okrem toho je k dispozícii aj samostatná toaleta. Skladovacia izba v suteréne ponúka praktické úložné priestory a v dome sa nachádza spoločná miestnosť pre práčku a sušičku.
Byt je ideálny pre páry, malé rodiny alebo pracujúce jednotlivce, ktorí si cenia tiché a udržiavané obytné prostredie.
Byt je určený pre osoby so stabilnou ekonomickou situáciou a spoľahlivým príjmom. Dlhodobý prenájom je výslovne žiadaný.
Tešíme sa na informatívne dopyty s krátkym predstavením (povolanie, veľkosť domácnosti, požadovaný termín nasťahovania).
Byt sa nachádza v Nürnberg-Eibach, obľúbenej a rodinne priateľskej štvrti na juhozápade mesta. Poloha nadchýna vynikajúcou infraštruktúrou: nákupné možnosti, reštaurácie, školy, materské školy a zdravotná starostlivosť sú pohodlne dostupné pešo. Výborné spojenie s verejnou dopravou – s S-Bahn, U2 a autobusovými linkami 61, 62 a 65 – vám umožní rýchly prístup do centra mesta a do ďalších častí miasta. Aj diaľničné prípojky sú v krátkej vzdialenosti a zabezpečujú rýchle spojenie do okolia. Mnohé zelené plochy a ihriská dopĺňajú atraktívne obytné prostredie.
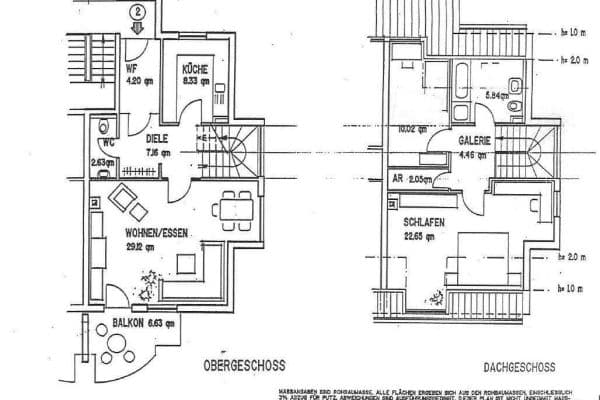
• Obytná plocha: cca 94,5 m² (cca 89,5 m² bez balkónov)
• Izby: 3
• Poschodie: 1. poschodie
• Balkóny: 2 (orientácia na juh a západ)
• Podlaha: parketové drevo; kuchyňa, kúpeľňa a chodba obkladané dlažbou
• Kúpeľňa s denným svetlom, sprchou a vaňou
• Okná: vysoké, trojnásobne zasklené – veľmi svetlé
• Steny budú pred nasťahovaním čerstvo natreté
• Skladovacia izba k dispozícii
• Spoločná práčka a sušička
• Domáce zvieratá nie sú povolené
• Dlhodobý prenájom je žiadaný
Parametre nehnuteľnosti
| Vek | Nad 50 rokov |
|---|---|
| Stav | Po rekonštrukcii |
| Poschodie | 2. poschodie z 3 |
| PENB | E - Nehospodárne |
| Cena za jednotku | 13 € / m2 |
| Dostupné od | 1. 2. 2026 |
|---|---|
| Dispozícia | 3+1 |
| Číslo inzerátu | 969303 |
| Úžitková plocha | 94 m² |
Čo táto nehnuteľnosť ponúka?
| Balkón | |
| MHD 2 minúty pešo |
| Pivnica |
V okolí nehnuteľnosti nájdete
Stále hľadáte to pravé?
Nastavte si strážneho psa. Ponuky vybrané na mieru dostanete súhrnne 1× denne e-mailom. S Premium profilom máte po ruke rovno 5 strážcov a keď sa niečo objaví, informujú vás obratom.
























