
Prenájom bytu 2+1 • 70 m² bez realitkyNirmerstraße 61, , Severné Porýnie - Westfálsko
Nirmerstraße 61, , Severné Porýnie - WestfálskoMHD 1 minúta pešoVitajte vo vašom novom byte na adrese Nirmerstraße 61, 52080 Aachen – ideálnom domove pre nájomcov hľadajúcich pokoj, ktorí ocenia centrálnu polohu. Tento útulný 2-izbový byt na druhom poschodí ponúka ideálne spojenie komfortu a lokality.
Lokalita: Byt sa nachádza len 75 metrov od najbližšej autobusovej zastávky a ponúka pohodlné spojenie s verejnou dopravou. Železničná zastávka je asi 600 metrov ďaleko. Základná škola je dosiahnuteľná už za 300 metrov a nákupné možnosti nájdete v okruhu 700 metrov.
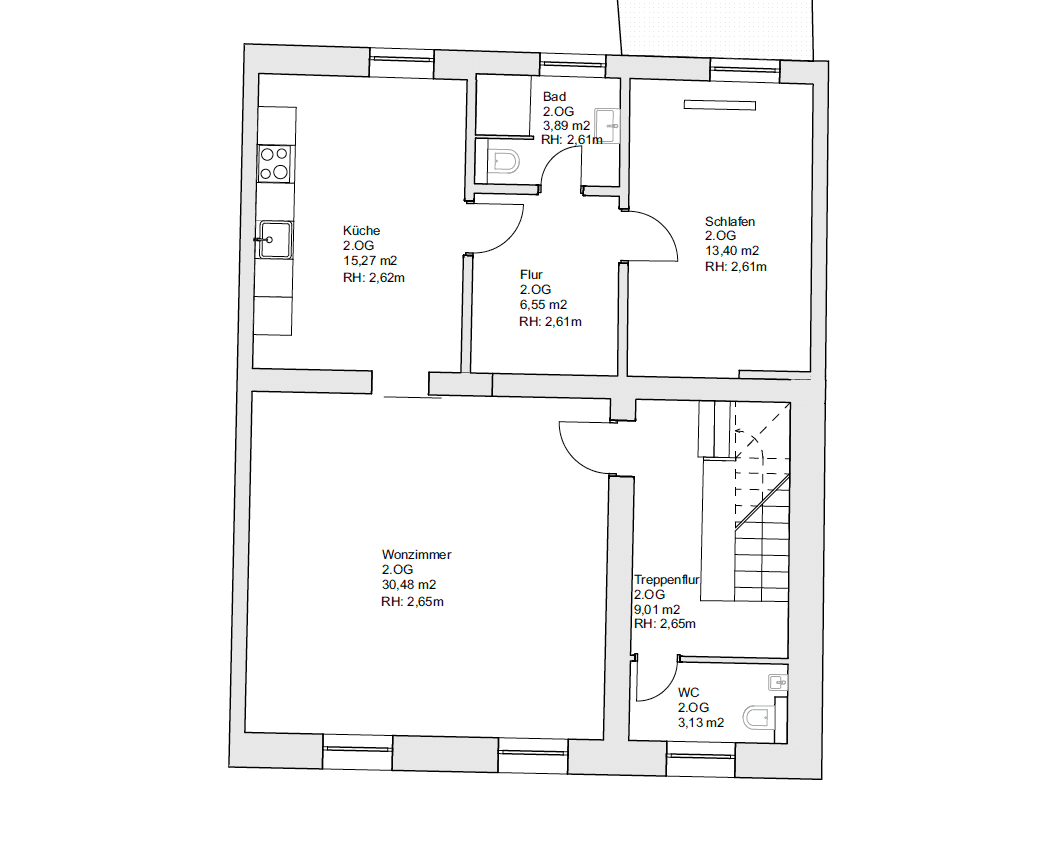
Popis bytu: Byt o rozlohe približne 69,69 štvorcových metrov disponuje spálňou, priestranným obývacím priestorom, kuchyňou a kúpeľňou so sprchou. Nachádza sa na druhom poschodí a je prístupný iba schodmi – výťah nie je k dispozícii. Byt sa prenajíma nezaľudnený a nenabízí balkón ani možnosť využitia záhrady. Existujúcu kuchyňu je možné prevziať.
Podmienky prenájmu: Základný nájom činí 650 € mesačne, plus 125 € poplatkov (topenie a elektrina nie sú zahrnuté). Kaucia je vo výške 1800 €. Byt je k dispozícii od 01.12 (podľa dohody prípadne aj skôr).
Vybavenie: Topenie je zabezpečené plynovým kotlom v byte. V kuchyni momentálne nie je zabudovaná kuchynská linka. V kúpeľni sa nachádza sprcha. Na chodbe druhého poschodia je malá miestnosť, kde je možné umiestniť práčku.
Energetická efektívnosť: Potrebné údaje o energetickom štítku sú k dispozícii a môžu byť poskytnuté na požiadanie.
Ďalšie informácie: Byt nie je vhodný pre domáce zvieratá a nie sú k dispozícii samostatné parkovacie miesta. Verejné parkovanie je zabezpečené priamo pred domom.
Pokiaľ je táto inzercia online, byt je k dispozícii. Po nájdení nájomcu bude inzerát odstránený. Preto sa tešíme na množstvo zaujímavých správ. Pri dopyte nám prosím poskytnite niekoľko informácií o sebe a o vašej aktuálnej situácii. Uprednostňujeme pokojných nájomcov, aby sa zachovala harmonická atmosféra v dome.
Zhrnutie:
Adresa bytu: Nirmerstraße 61, 52080 Aachen
Najbližšia autobusová zastávka: 75 m
Najbližšia železničná zastávka: 600 m
Najbližšia základná škola: 300 m
Najbližšie možnosti nakupovania: 700 m
Popis bytu:
Rozloha bytu: cca 69,69 m²
Poschodie: 2. poschodie, bez výťahu
Vybavenie bytu: nezaľudnený (nevybavený)
Balkón, terasa alebo záhrada: Žiadny balkón, bez možnosti využitia záhrady
Podmienky prenájmu:
Nájomné: 650 € základná cena
Poplatky: 125 € (bez zahrnutia topenia a elektriny)
Kaucia: 1800 €
Dostupnosť (dátum nastťahovania): 01.12
Vybavenie:
Topenie: Plynový kotol v byte
Vybavenie kuchyne: Zabudovaná kuchyňa je k dispozícii
Vybavenie kúpeľne: Sprcha
Suterén: k dispozícii
Energetická efektívnosť: Údaje o energetickom štítku (v prípade potreby)
Pohodlie pre domáce zvieratá: Domáce zvieratá nie sú vítané
Parkovanie: Nie sú k dispozícii samostatné parkovacie miesta; verejné parkovanie je priamo pred domom
Parametre nehnuteľnosti
| Vek | Nad 50 rokov |
|---|---|
| Stav | Dobrý |
| Poschodie | 2. poschodie |
| PENB | G - Mimoriadne nehospodárne |
| Cena za jednotku | 9 € / m2 |
| Dostupné od | 1. 12. 2025 |
|---|---|
| Dispozícia | 2+1 |
| Číslo inzerátu | 968979 |
| Úžitková plocha | 70 m² |
Čo táto nehnuteľnosť ponúka?
| Pivnica |
| MHD 1 minúta pešo |
V okolí nehnuteľnosti nájdete
Stále hľadáte to pravé?
Nastavte si strážneho psa. Ponuky vybrané na mieru dostanete súhrnne 1× denne e-mailom. S Premium profilom máte po ruke rovno 5 strážcov a keď sa niečo objaví, informujú vás obratom.













