Predaj domu 5+kk • 179 m² bez realitky, Bádensko-Wurttembersko
, Bádensko-WurttemberskoMHD 1 minúta pešo • GarážBez provízií – okamžite k dispozícii!
Ponúka sa kompaktný, priestranný a udržiavaný obytný a obchodný dom v strede Schönaichu.
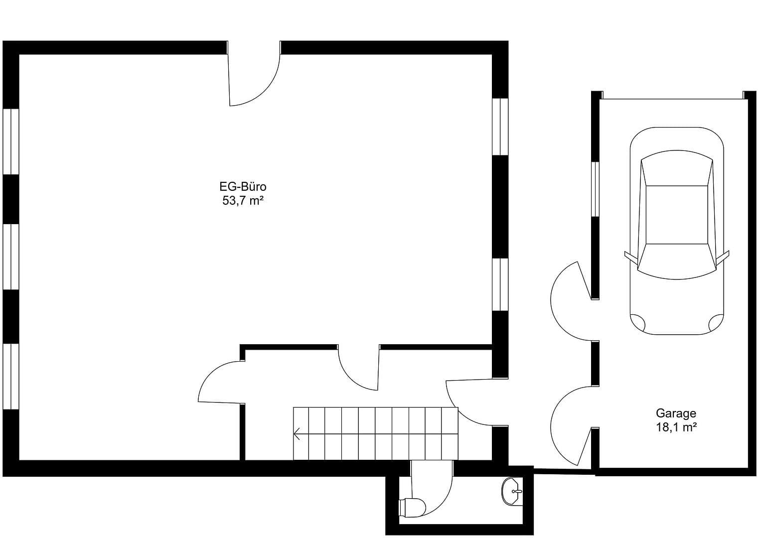
Prízemie vhodné ako obchod, ambulancia, kancelária, bistro a pod.
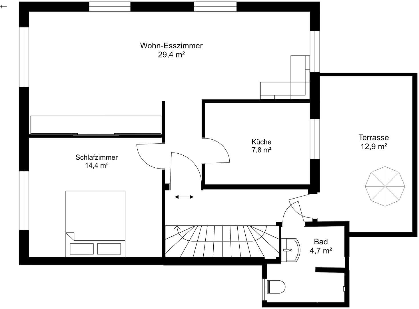
Obytná plocha 124 m². Prízemná kancelária 55 m².
Suterénny priestor 50 m² a garáž s 20 m².
Nápadná budova v centrálnej, dopravne upokojené lokalite.
Atraktívne umiestnená na okraji prírodného parku Schönbuch, s dobrou dostupnosťou do miest ako Stuttgart, Sindelfingen, Böblingen alebo Tübingen.
Schönaich je 750 rokov stará a prosperujúca obec v okrese Böblingen s viac ako 10 000 obyvateľmi.
Autobusová zastávka, komunitné centrum, radnica, kostoly, materské školy, školy, lekári, banky, reštaurácie, obchody s potravinami atď. sú ľahko dostupné pešo.
Obytné priestory sa nachádzajú v 1. a 2. poschodí. Navyše je izolované podkrovie útulne zariadené s prírodným drevom a vybavené svetlými strešnými oknami.
Svetlé prízemie (55 m², výška 2,90 m) sa odjakživa využíva ako atraktívny komerčný priestor.
Exteriérová fasáda je vybavená úplnou tepelnou ochranou. Obytné priestory majú kvalitné okná s protihlukovou ochranou. Vonkajšie obklady, odkvapové žľazy a zrazne sú vyrobené z nenáročnej na údržbu medi.
Energetická trieda C; energetická trieda D pre časť neobytných priestorov.
Priestranná garáž ponúka v medzi-poschodí ďalší úložný priestor a terasu o rozlohe cca 13 m². Budova má úplný suterén a disponuje oblúkovou pivnicou s rozmermi 5 m x 4 m.
Rozmery a rozlohy sú približné hodnoty.
Parametre nehnuteľnosti
| Vek | Nad 50 rokov |
|---|---|
| Stav | Dobrý |
| Číslo inzerátu | 968091 |
| Úžitková plocha | 179 m² |
| Celkové poschodia | 4 |
| Dostupné od | 5. 12. 2025 |
|---|---|
| Dispozícia | 5+kk |
| PENB | C - Hospodárne |
| Plocha pozemku | 133 m² |
| Cena za jednotku | 2 654 € / m2 |
Čo táto nehnuteľnosť ponúka?
| Pivnica | |
| MHD 1 minúta pešo |
| Garáž | |
| Terasa |
V okolí nehnuteľnosti nájdete
Stále hľadáte to pravé?
Nastavte si strážneho psa. Ponuky vybrané na mieru dostanete súhrnne 1× denne e-mailom. S Premium profilom máte po ruke rovno 5 strážcov a keď sa niečo objaví, informujú vás obratom.
































