Predaj domu 6+1 • 145 m² bez realitkyOstpreußenstrasse 34 Münster Angelmodde Nordrhein-Westfalen 48167
Ostpreußenstrasse 34 Münster Angelmodde Nordrhein-Westfalen 48167MHD 1 minúta pešo • ParkovaniePozor: Fotografie z pred rekonštrukciou!!!
V prírodnom a centrálnom prostredí bývania v Münster-Angelmodde sa nachádza táto polovica dvojdomu, ktorá zaujme veľkým priestorom, výhľadom na les a pokojnou, detsky prívetivou lokalitou. Dom bol postavený v roku 1961 na parcele s rozlohou približne 392 m² a ponúka okolo 145 m² obytného priestoru, čo otvára množstvo možností pre rodiny aj páry, ako aj pre bývanie a prácu pod jednou strechou.
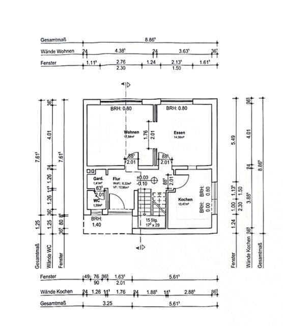
Už pri vstupe do domu upúta pozornosť príjemná atmosféra: Veľká predsieň ponúka dostatok priestoru a vďaka svojej svetlosti je veľmi lákavá.
Približne 50 m² veľký obývací a jedálenský priestor zapôsobí priestrannou okennou fasádou smerom do záhrady a sklenenými dverami, ktoré umožňujú priamy prístup do záhrady.
Kuchyňa sa priamo nadväzuje na jedálenský priestor. Prepojené okno spája kuchyňu s jedálňou, pričom podľa želania je tu možné odstrániť priečku a otvoriť kuchyňu úplne.
Dom je aktuálne v rekonštrukcii a ponúka priestor pre individuálne modernizačné alebo dizajnové nápady.
Na hornom poschodí máte k dispozícii tri dobre rozvrhnuté miestnosti, ktoré možno flexibilne využiť ako spálňu, detskú izbu alebo pracovňu. Z dvoch z týchto izieb je priamy výhľad do zelene a z jednej z nich je dokonca priamy prístup na balkón orientovaný na západ, kde si môžete naplno vychutnať večerné slnko. Okrem toho sa na hornom poschodí nachádza priestranná kúpeľňa so sprchou a samostatná toaleta.
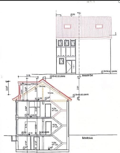
Pre tých, ktorí potrebujú ešte viac priestoru, je tu prepracované podkrovie vybavené svetlíkom – ideálne pre ďalšiu pracovňu, hobby miestnosť alebo samostatnú izbu pre deti či rodičov.
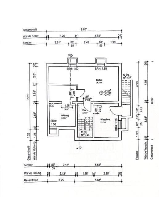
S úplne zariadeným suterénom má dom dostatok miest na úložné priestory a individuálne využitie pre záľuby – či už ide o zásoby, koníčky alebo malú dielňu.
Srdcom tohto domu je sauna v suteréne! So svojou vlastnou saunou si vo vlastných štyroch stenách vytvoríte osobné wellness zázemie. Po náročnom dni si tak môžete dopriať osviežujúci páru, nechať za sebou každodenný stres a načerpať nové sily.
V letných dňoch vás stredne veľká záhrada so záhradným domčekom pozýva na oddychové chvíle vonku. Či už pôjde o hranie, záhradkárčenie, spoločné grilovanie, alebo len relax pri čerstvom vzduchu – tu nájdete dostatok priestoru pre všetky aktivity. Pre ešte intenzívnejší kontakt s prírodou sa z záhrady priamo cez malý potok môžete dostať do susedného lesa.
Ďalším plusom je, že dom je momentálne prázdny a prebieha rekonštrukcia, čo umožňuje novému majiteľovi zapracovať svoje osobné nápady. Navyše sa predáva súkromne, čím ušetríte na maklérskych poplatkoch.
Náš záver: Táto polovica dvojdomu v Angelmodde zaujme priestranným rozložením, veľkým potenciálom pre individuálnu úpravu a rodinne prívetivou lokalitou s vynikajúcou infraštruktúrou. Nechajte sa presvedčiť o možnostiach tohto domu pri osobnej obhliadke – tešíme sa na vašu dopyt!
Münster-Angelmodde sa nachádza v juhozápadnej časti mesta a zaujme kombináciou vidieckeho charakteru a mestskej životnej kvality. Táto štvrť je zasadená do zelenej okolia s rozsiahlymi prírodnými plochami smerom k Albersloh. Príkladom je priamo susedný les, ktorý spája mestskú časť Angelmodde s Hiltrupom. Okrem toho sa z oblasti dostanete aj peknou, prírode priateľskou cyklistickou trasou ku kanálu a odtiaľ do centra mesta. Okolitý les vás pozýva na prechádzky alebo výlety do prírody, čím vzniká mnoho možností pre miestnu rekreáciu.
Spojenie so zvyškom mesta Münster je tiež veľmi dobré. Autobusové linky 6, 68 a od Gremmendorfer Weg linka 8 spájajú Angelmodde pravidelne s hlavným nádražím, centrom aj časťami ako Hiltrup, Gievenbeck a Wolbeck. Železničná stanica v Hiltrupe zlepšuje spojenie železničnou sieťou. V okruhu menej ako jedného kilometra nájdete supermarkety, špecializované obchody a pekárne, ktoré pokrývajú bežné denné potreby.
Pre rodiny ponúka Angelmodde pestrú škálu vzdelávacích a voľnočasových možností. Niekoľko materských škôl a doučovacie centrum na Albersloher Weg sú pripravené na starostlivosť o najmenších a na školskú podporu. Školská infraštruktúra je zabezpečená základnou školou a veľmi dobrou dostupnosťou stredných škôl. Voľnočasové možnosti zahŕňajú priamo susedné ihrisko, športový klub, stretávacie centrum pre mládež, ako aj jazdecké centrá, bowling a turistické chodníky. Kombinácia bývania v prírode, kvalitnej infraštruktúry a aktívnej susedskej komunity robí z Angelmodde atraktívnu lokalitu najmä pre rodiny a dojížďajúcich zamestnancov.
Krátky popis:
- Zrekonštruovaný s novými podlahami
- Skvelá poloha: priamo pri lese, pokojná ulica prístupná len obyvateľom, napriek tomu dobré spojenie do mesta
- Ihrisko priamo oproti
- Sauna v suteréne
- Podkrovie upravené
- Strecha zvýšená a nová v roku 2023, s taškami značky Jacobi
- Dom je kompletne rekonštruovaný a podľa plánu rekonštrukcie bude najneskôr koncom januára 2026 pripravený na nasťahovanie
- Možnosť realizácie ďalších úprav či dizajnových nápadov, prípadne s časovým omeškaním
- Energetický plán je už k dispozícii, čo umožňuje priamu žiadosť o dotácie na energeticky efektívne opatrenia
Opis vybavenia:
Dom je momentálne čerstvo rekonštruovaný, takže noví majitelia si môžu voľne rozvinúť svoje nápady a ešte v ňom zrealizovať vlastné predstavy. Či už ide o odstránenie priečky medzi kuchyňou a obývacou izbou, premenenie hostinského WC na malú kúpeľňu alebo o prípadné prístavby, všetko je možné ihneď zrealizovať. K tomu sa pridáva, že energetický plán je už vypracovaný, a preto je možné priamo žiadať o dotačné opatrenia. Ďalším plusom domu je, že stavebné práce prebiehajú priamo na mieste, čo umožňuje okamžité zapracovanie prípadných zmien. Podľa aktuálneho plánu rekonštrukcie bude dom pripravený na nasťahovanie koncom januára 2026.
Přízemie:
• Z foyeu sa dostanete do obývacej aj jedáleňovej miestnosti. Sú tu zabezpečené aj prístupy do kuchyne, na horné poschodie a do suteréna. Hostinské WC je priamo previazané s predsieňou.
• Obývacia izba disponuje veľkým oknom po celej dĺžke podlahy a prístupom na terasu, ktorá naväzuje na záhradu. Záhrada susedí s malým potokom, ktorý hraničí s lesom.
Horné poschodie:
• Nachádzajú sa tu tri spálňové/pracovné izby, jedna kúpeľňa a samostatná toaleta.
• Dve z týchto troch izieb ponúkajú veľmi pekný výhľad do zelene. Jedna z nich má malý balkón, ktorý je ideálny na oddych.
• Stredná izba je výborne vhodná na prácu a je vybavená množstvom zásuviek.
Podkrovie:
• Strecha bola v rokoch 2023/2024 kompletne obnovená, zvýšená a nová, pokrytá Iton-taškami. Súčasne bolo podkrovie zrekonštruované, novozateplené a vybavené svetlíkom. Vznikla tu nádherná, veľká a svetlá izba pre rodičov/pracovňu, ktorú je však možné aj rozdeliť na dve menšie izby pre deti alebo pracovné priestory. Otvorenie ďalšieho okna na východnej strane zvyšuje svetlosť miestnosti, čo je v súčasnosti v procese.
Záhrada:
• Zadná záhrada je stredne veľká, susedí s malým potokom a lesom a ponúka rodine priestor na oddych a relax na čerstvom vzduchu. Nachádza sa tu malý záhradný domček a carport, takže je dostatok miesta pre bicykle aj auto.
• Predná záhrada je momentálne pokrytá trávou a čaká na nové nápady.
Suterén:
• Dom je kompletný so suterénom. K tejto polovici dvojdomu patria celkovo tri suterénne miestnosti: práčovňa, úložný priestor na potraviny a veľká miestnosť pre hobby/dielňu/úložný priestor. V strednej miestnosti sa nachádza sauna.
Parametre nehnuteľnosti
| Vek | Nad 50 rokov |
|---|---|
| Stav | Po rekonštrukcii |
| Číslo inzerátu | 967999 |
| Úžitková plocha | 145 m² |
| Celkové poschodia | 2 |
| Dostupné od | 5. 12. 2025 |
|---|---|
| Dispozícia | 6+1 |
| PENB | D - Menej hospodárne |
| Plocha pozemku | 392 m² |
| Cena za jednotku | 4 483 € / m2 |
Čo táto nehnuteľnosť ponúka?
| Balkón | |
| Parkovanie | |
| Terasa |
| Pivnica | |
| MHD 1 minúta pešo |
V okolí nehnuteľnosti nájdete
Stále hľadáte to pravé?
Nastavte si strážneho psa. Ponuky vybrané na mieru dostanete súhrnne 1× denne e-mailom. S Premium profilom máte po ruke rovno 5 strážcov a keď sa niečo objaví, informujú vás obratom.



















