
Predaj bytu 3+1 • 62 m² bez realitkyJiřího Wolkera, Nymburk - Nymburk, Středočeský kraj
Jiřího Wolkera, Nymburk - Nymburk, Středočeský krajČiastočne vybavenéProdej bytu 3+1/L 62 (celková plocha) m 2, J. Wolkera, Nymburk 5 500 000 Kč
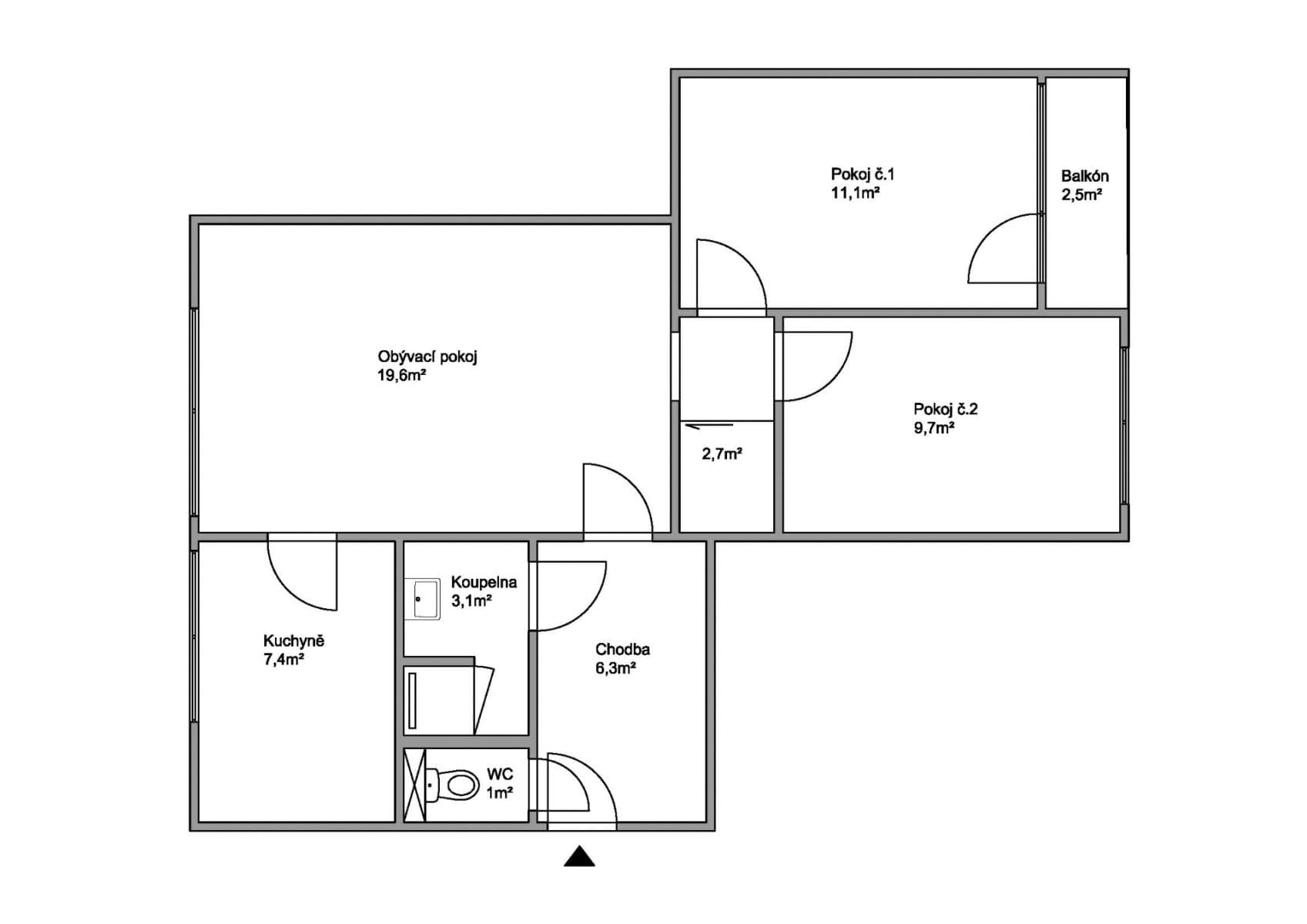
Parametry bytu:
dispozice: 3+1/L, sklepní kóje
plocha bytu: 62 m 2
umístění: 1. NP,
orientace: S/J
Nabízím k prodeji byt 3+1 v osobním vlastnictví o velikosti 62 m2 s lodžií v 1. NP třípodlažního domu.
Na vlastním odkoupeném pozemku.
Byt je orientovaný obývacím pokojem a kuchyní na sever, druhé dva pokoje na jih.
Byt prošel v průběhu let kompletními rekonstrukcemi, které dotvořily bytovou jednotku k dokonalému bydlení bez dalších potřebných úprav.
Kuchyně na míru z pevných materiálů MDF. Rozvody elektřiny, technická místnost. Vestavěné úložné prostory : tech. místnost, kóje a lodžie ( uzamykatelná). Koupelna a záchod komplet po rekonstrukci.
Dům disponuje zateplenou fasádou, novými stoupačkami. V poslední řadě nová výmalba společných prostor, nové venkovní schodiště, domácí telefony.
SVJ spravuje realitní kancelář s dobrým výsledkem hospodaření. Společná hypotéka na velké rekonstrukce splacena, tj. nynější náklady na bydlení bez energií cca 4.500 Kč.
V okolí najdete vše potřebné, školu, školku, obchody. Do Prahy vlakem 39 minut.
Prohlídky bytu dle osobní domluvy, vždy nejlépe víkend.
RK nevolat !
Parametre nehnuteľnosti
| Dostupné od | 24. 11. 2025 |
|---|---|
| Konštrukcia budovy | Panel |
| Vybavené | Čiastočne |
| Číslo inzerátu | 967849 |
| PENB | C - Hospodárne |
| Úžitková plocha | 62 m² |
| Stav | Dobrý |
|---|---|
| Dispozícia | 3+1 |
| Poschodie | 1. poschodie z 3 |
| Vlastníctvo | Osobné |
| Umiestnenie | Sídlisko |
| Cena za jednotku | 88 710 CZK / m2 |
Vyberáte byt?
Majte istotu, že máte všetky dôležité informácie!
V okolí nehnuteľnosti nájdete
Stále hľadáte to pravé?
Nastavte si strážneho psa. Ponuky vybrané na mieru dostanete súhrnne 1× denne e-mailom. S Premium profilom máte po ruke rovno 5 strážcov a keď sa niečo objaví, informujú vás obratom.





















