
Prenájom bytu 1+kk • 45 m² bez realitkyFriedrichsruher Str. 3 Berlin Steglitz Berlin 12169
Friedrichsruher Str. 3 Berlin Steglitz Berlin 12169MHD 3 minúty pešo • VybavenéSlnečný byt v historickej budove blízko ulice Schlossstraße
Čerstvo zrekonštruovaný 1,5-izbový byt v dobrej, pokojnej lokalite sa nachádza na 3. poschodí udržiavaného, zrekonštruovaného staršieho domu (z roku 1906) s priestranným a atraktívnym schodiskom.
Dom je obklopený rozkvitnutou spoločnou záhradou s grilovacím priestorom, ktorá láka na oddych. Budova disponuje centrálnym kúrením. Energetický preukaz je možné predložiť na požiadanie.
Byt sa nachádza v veľmi žiadanej a centrálnej lokalite v Steglitze. Len 10 minút pešo od neho sa nachádza známa ulica Schlosstrasse, ktorá patrí medzi najobľúbenejšie nákupné ulice na juhu Berlína a ponúka viacero moderných nákupných centier, ako napríklad „Das Schloss“ s prestížnou obchodnou štruktúrou. Okrem toho sa tu nachádza aj stanica metra Schlossstraße s linkou U9. Autobusové zastávky sú vzdialené približne 200 m od domu a aj diaľnica (napojenie na okružnú cestu Schöneberg A111) je dostupná za krátky čas.
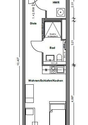
Otvorená chodba, slnečný obývací priestor, spálňa, kúpeľňa, kuchyňa, parkovacie miesto v suteréne
Izby sú orientované na stranu menej frekventovanej ulice. Z veľkých okien ponúka neprekážaný výhľad na starý stromový porast. Kúpeľňa a kuchyňa sú orientované k svetlému a priestrannému vnútornému dvoru.
Obývací priestor, zaplavený slnečným svetlom, je vybavený vinylovou podlahou a vkusne zariadený – napríklad s rozkladacou pohovkou, konferenčným stolíkom, skriňou, jedálenským stolom a nábytkom pre televízor.
Spálňa je zariadená pohodlnou boxspring posteľou, nočným stolíkom a veľkou skriňou.
V otvorenom priebehu chodby sa nachádza priestranný úložný kút (s dverovou výplňou), ktorý môže slúžiť ako šatník a ponúka úložný priestor až po strop.
Kuchyňa je obložená obkladom a vybavená vkusnou zabudovanou kuchynskou linkou so značkovými spotrebičmi (sporák, varná doska s glazurovanou keramikou, drez, chladnička, odsávač pary, práčka).
Kúpeľňa je svetlá, obložená dlažbou a disponuje vaňou.
Ďalšie elektrické spotrebiče sú všetky v novom stave: práčka, televízor, vysávač, varná kanvica, žehlička.
Byt je vybavený dverovým interkomom. Káblová televízia a telefónna sieť sú k dispozícii.
Elektrická inštalácia bola úplne obnovená a vybavená najmodernejšími ochrannými spínačmi. Všetky miestnosti sú omietnuté a natreté bielou farbou. Výška stropov je 3,30 m. Veľkorysá okná v obývacej izbe sú nové.
Optimálne pôsobiaci a krásne zariadený byt sa nachádza v obľúbenom mestskom obvode City West s vynikajúcou infraštruktúrou a dobrou dopravnou dostupnosťou. Pokojná ulica ponúka aj výhodnú parkovaciu situáciu.
Parametre nehnuteľnosti
| Vek | Nad 50 rokov |
|---|---|
| Vybavené | Vybavené |
| Číslo inzerátu | 967811 |
| Cena za jednotku | 24 € / m2 |
| Dispozícia | 1+kk |
|---|---|
| Poschodie | 3. poschodie z 4 |
| Úžitková plocha | 45 m² |
Čo táto nehnuteľnosť ponúka?
| Pivnica |
| MHD 3 minúty pešo |
V okolí nehnuteľnosti nájdete
Stále hľadáte to pravé?
Nastavte si strážneho psa. Ponuky vybrané na mieru dostanete súhrnne 1× denne e-mailom. S Premium profilom máte po ruke rovno 5 strážcov a keď sa niečo objaví, informujú vás obratom.













