Predaj domu 4+1 • 124 m² bez realitkyGüssing Krottendorf Burgenland 7540
Güssing Krottendorf Burgenland 7540MHD 2 minúty pešo • GarážKompaktné a premyslené – zázrak priestoru s malým pôdorysom.
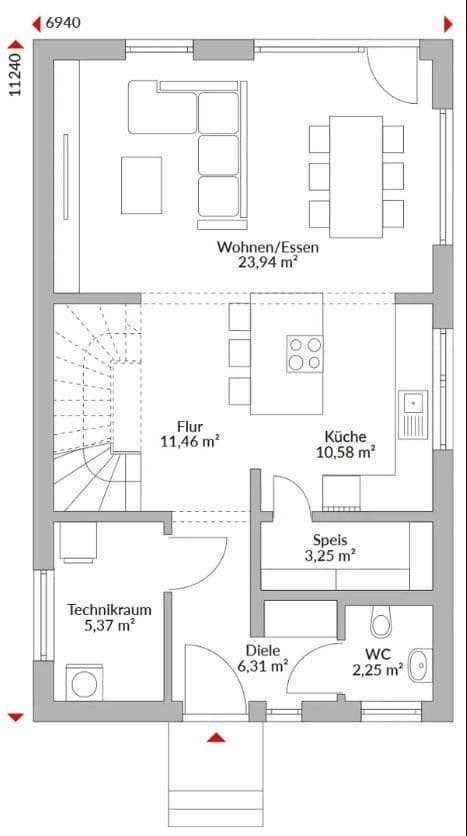
Napriek malej zastavanej ploche tento dom spĺňa všetky požiadavky moderného bývania. Kuchyňa je funkčne navrhnutá, technická miestnosť ponúka dostatočný priestor pre domovú techniku a skladovanie. Kúpeľňa je vybavená vaňou aj sprchou, navyše je k dispozícii hostinské WC. Predsieň poskytuje veľkorysý priestor na šatníky, detská izba a spálňa majú dobré možnosti usporiadania. Obývacia a jedálenská časť očaria veľkými oknami a otvorenými prechodmi, ktoré opticky zväčšujú priestor.
Ideálne pre všetkých, ktorí sa zameriavajú na podstatu – bez kompromisov v oblasti komfortu.
Na vašom pozemku alebo …
Nasledujúce pozemky momentálne ponúkame:
Güssing: Nádherný stavebný pozemok cca 2 600 m², situovaný na úplne rovnine, pozemkové plochy a orientácie voľne na výber. Rozmery od 500 m² do 1500 m².
Tu sú stavebné pozemky prvej triedy! V najlepšej lokalite – 600 m od centra Güssingu, 650 m od lekárskeho centra, cca 1200 m od nemocnice; 8 škôl vrátane gymnázia; kultúrne podujatia,
priamo v srdci termálnej oblasti a s ohromujúcim výhľadom na nádherný hrad Güssing!
----------------------------------------------------------------------------
8510 Pichling pri Stainze: cca 7 500 m² stavebný pozemok, pozemkové plochy a orientácie voľne na výber.
----------------------------------------------------------------------------
8524 Kraubath v Groß St. Florian: cca 5 000 m² stavebný pozemok, pozemkové plochy a orientácie voľne na výber.
----------------------------------------------------------------------------
8530 Deutschlandsberg: cca 2180 m² stavebný pozemok.
----------------------------------------------------------------------------
Medzi vlastníkom pozemku a staviteľom domu neexistuje žiadne hospodárske spojenie.
Rodinný dom so 4 izbami – exkluzívne vybavenie!
Kľúč odovzdania vrátane dodania a montáže od vrcholu základu.
• Zimovo zaťažená konštrukcia strechy
• Vzduch-voda tepelná pumpa a podlahové kúrenie
• Vetranie obytných priestorov s rekuperáciou tepla (letné chladenie)
• Eleketrické rolety v celom dome
• Podlahové krytiny a sanitárne zariadenia voľne na výber
• Príprava na fotovoltaiku
• Balíček „všetko pod kontrolou“
Pozemky od 500 m² do 1 500 m² sú podľa želania dostupné!
Možnosť vlastnej účasti na stavbe – úplne podľa vašich predstáv.
Poradenstvo a predaj:
Pani Tatjana Wyss
+43 676 553 77 47
tatjana.wyss@danwood.at
Zabezpečte si prvú konzultáciu už teraz!
Ďalšie ponuky
https://qr.scan.page/uploads/pdf/1752348182250_686ba1debcb60.pdf
Vyžiadajte si stavebný popis a katalógy!
Na to je potrebné uviesť telefónne číslo, e-mailovú adresu a adresu.
Ďakujeme!
Parametre nehnuteľnosti
| Stav | Novostavba |
|---|---|
| Číslo inzerátu | 967515 |
| Plocha pozemku | 1 m² |
| Cena za jednotku | 2 577 € / m2 |
| Dispozícia | 4+1 |
|---|---|
| Úžitková plocha | 124 m² |
| Celkové poschodia | 2 |
Čo táto nehnuteľnosť ponúka?
| Garáž |
| MHD 2 minúty pešo |
V okolí nehnuteľnosti nájdete
Stále hľadáte to pravé?
Nastavte si strážneho psa. Ponuky vybrané na mieru dostanete súhrnne 1× denne e-mailom. S Premium profilom máte po ruke rovno 5 strážcov a keď sa niečo objaví, informujú vás obratom.















