Predaj domu 5+1 • 111 m² bez realitkyWulmstorfer Ring Hamburg Neugraben-Fischbek Hamburg 21149
Wulmstorfer Ring Hamburg Neugraben-Fischbek Hamburg 21149MHD 5minút pešoDieses stilvolle und modernisierte Reihenhaus begeistert durch seine attraktive Lage und das pflegeleichte Grundstück mit Südausrichtung, auf dem Sie die Sonne im eigenen ruhigen Garten in vollen Zügen genießen können.
Tento štýlový a zmodernizovaný radový dom nadchne vďaka svojej atraktívnej polohe a nenáročnému pozemku orientovanému na juh, na ktorom si môžete v pokojnú záhradu vo svojom súkromí naplno vychutnať slnko.
Das Haus besitzt insgesamt fünf Zimmer und zwei Bäder im Erd- und Obergeschoss, ergänzt durch ein ausgebautes Dachgeschoss sowie wohnlich gestaltete Kellerräume.
Dom pozostáva celkovo z piatich izieb a dvoch kúpeľní v prízemí a nadzemí, pričom je doplnený o zrekonštruovaný podkrovný priestor a útulne zariadené pivnice.
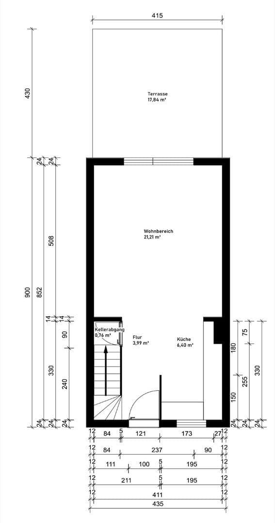
Beim Betreten des Hauses gelangt man in eine helle Diele, von der aus sowohl die moderne Küche als auch das gemütliche Wohnzimmer mit Zugang zur Terrasse erreichbar sind.
Pri vstupe do domu vstúpite do svetlej predsiene, z ktorej máte prístup ako do modernej kuchyne, tak aj do útulnej obývacej izby s prístupom na terasu.
Von der geschützten Terrasse aus eröffnet sich der Blick in den liebevoll eingewachsenen, nach Süden ausgerichteten Garten, der viel Sonnenlicht bietet.
Z tejto chránenej terasy sa otvára výhľad na starostlivo udržiavanú, na juh orientovanú záhradu, ktorá je naplnená množstvom slnečného svetla.
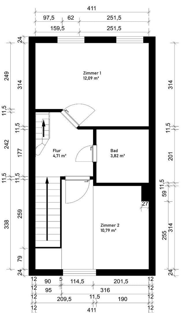
Im Obergeschoss befinden sich ein zeitgemäß ausgestattetes Badezimmer und zwei Schlafzimmer.
V nadzemnom podlaží nájdete moderné kúpeľne a dve spálne.
Das größere der Räume liegt ebenfalls zur Südseite mit Blick in den Garten.
Väčšia z izieb je taktiež orientovaná na juh s výhľadom do záhrady.
Das ausgebaute Dachgeschoss überzeugt mit zwei neuen Dachflächenfenstern, die den Raum großzügig mit Tageslicht versorgen.
Zrekonštruovaný podkrovný priestor zaujme dvoma novými strešnými oknami, ktoré priestor obohacujú hojným denným svetlom.
Dieser Bereich kann hervorragend als zusätzliches Schlafzimmer, Hobbyzimmer oder kreativer Rückzugsort genutzt werden.
Tento priestor je ideálne využiť ako ďalšiu spálňu, hobby izbu alebo kreatívne útočisko.
Der Vollkeller schafft zusätzlichen Raum für verschiedenste Bedürfnisse.
Celková pivnica ponúka dodatočný priestor pre rôzne potreby.
Hier befinden sich ein modernes Gäste-WC, eine separate Dusche sowie ein großer beheizter Raum mit Fenster, der perfekt für Gäste oder als Hobbybereich geeignet ist.
Tu nájdete moderné hosťovské WC, samostatnú sprchu a veľkú vykurovanú miestnosť s oknom, ktorá je ideálna pre hostí alebo ako hobby priestor.
Der Hauswirtschaftsraum bietet Platz für den neuen Stromkasten, Haushaltsgeräte und diverse Lagermöglichkeiten.
Práčovňa poskytuje miesto pre nový elektrický rozvod, domáce spotrebiče a rôzne skladovacie priestory.
Die Wohnfläche beläuft sich nach DIN 277 auf etwa 110 Quadratmeter.
Podľa normy DIN 277 má obytná plocha približne 110 metrov štvorcových.
Sämtliche Fenster des Hauses wurden kürzlich erneuert, sind dreifach verglast und mit neuen elektrischen Rollläden ausgestattet.
Všetky okná domu boli nedávno renovované, majú trojité zasklenie a sú vybavené novými elektrickými rolety.
Auch die gesamte Elektrik samt Sicherungskasten wurde modernisiert und fachgerecht geprüft.
Celá elektroinštalácia vrátane ističovej skrine bola zmodernizovaná a odborne skontrolovaná.
Der neue Bodenbelag – ein pflegeleichtes Vinyl in Eichenoptik mit Hamburger Leiste – wurde über die gesamte Fußbodenheizung hinweg einheitlich verlegt.
Nová podlaha – nenáročný vinyl v vzhľade dubového dreva s hamburger okrajom – bola jednotne položená cez celé podlahové kúrenie.
Drei neue Wärmepumpen ermöglichen eine individuelle Temperatursteuerung pro Etage, sodass jede Ebene unabhängig beheizt oder abgeschaltet werden kann.
Tri nové tepelné čerpadlá umožňujú individuálne riadenie teploty na každom podlaží, takže každá úroveň môže byť nezávisle vykurovaná alebo vypnutá.
In Kombination mit der hochwertigen Dreifachverglasung, der Wärmedämmfassade und der gut isolierten Dachkonstruktion entsteht ein äußerst energieeffizienter und zukunftssicherer Wohnkomfort.
V kombinácii s kvalitným trojsklom, tepelnoizolačnou fasádou a dobre izolovanou strešnou konštrukciou vzniká mimoriadne energeticky efektívny a budúcnosti odolný obytný komfort.
Das Reihenhaus liegt in einem ruhigen Teil von Neugraben-Fischbek, umgeben von gepflegten Gärten und einer familienfreundlichen Nachbarschaft.
Radový dom sa nachádza v pokojnej časti Neugraben-Fischbek, obklopený udržiavanými záhradami a rodinne priateľským susedstvom.
Die Anwohnerstraße bietet ausreichend Parkraum.
Ulica pre obyvateľov ponúka dostatok parkovacích miest.
In der näheren Umgebung stehen zahlreiche Einkaufsmöglichkeiten (Penny, Lidl, Aldi, Obi, etc.) sowie gastronomische Angebote zur Verfügung.
V bezprostrednom okolí je k dispozícii množstvo nákupných možností (Penny, Lidl, Aldi, Obi atď.) ako aj gastrónomické ponuky.
Dank der sehr guten Anbindung an den öffentlichen Nahverkehr gelangen Sie schnell und unkompliziert in die Hamburger Innenstadt ab der Bushaltestelle "Fischbeker Heuweg", die in 2 Minuten fußläufig erreichbar ist.
Vďaka vynikajúcej dostupnosti verejnej dopravy sa dostanete rýchlo a jednoducho do centra Hamburgu už od autobusovej zastávky "Fischbeker Heuweg", ktorá je vzdialená len 2 minúty pešo.
Auch Schulen, Kitas und medizinische Einrichtungen befinden sich in der Nähe.
V blízkosti sa nachádzajú aj školy, materské školy a zdravotnícke zariadenia.
Für längere Spaziergänge oder kurze Wanderungen ist die Fischbeker Heide in nur einer Minute zu Fuß erreichbar und begeistert mit viel Ruhe, frischer Luft und der farbenprächtigen Heideblüte im Sommer/Herbst.
Na dlhšie prechádzky alebo krátke túry je Fischbeker Heide vzdialená len minútu chôdze a očarí vás svojím pokojom, čerstvým vzduchom a farebnou kvitnúcou vŕbou v lete/jeseň.
- Fußbodenheizung auf alle Etagen mit Wärmepumpen
- podlahové kúrenie na všetkých podlažiach s tepelnými čerpadlami
- neue Elekttik: Steckdosen, Schalter und inklusive Stromkasten
- nová elektroinštalácia: zásuvky, vypínače a vrátane ističovej skrine
- 3-fachverglaste Fenster mit Kunststoffrahmen, elektr. Rollläden
- trojite zasklené okná s plastovým rámom, elektrické rolety
- neue BOSCH-Durchlauferhitzer der Energieklasse A
- nové BOSCH prietokové ohrievače vody triedy A
Parametre nehnuteľnosti
| Vek | Nad 50 rokov |
|---|---|
| Číslo inzerátu | 967280 |
| Úžitková plocha | 111 m² |
| Cena za jednotku | 4 054 € / m2 |
| Dispozícia | 5+1 |
|---|---|
| PENB | B - Veľmi úsporné |
| Plocha pozemku | 124 m² |
Čo táto nehnuteľnosť ponúka?
| Pivnica | |
| Terasa |
| MHD 5 minút pešo |
V okolí nehnuteľnosti nájdete
Stále hľadáte to pravé?
Nastavte si strážneho psa. Ponuky vybrané na mieru dostanete súhrnne 1× denne e-mailom. S Premium profilom máte po ruke rovno 5 strážcov a keď sa niečo objaví, informujú vás obratom.















